Apartament cu 2 camere la cheie 55 mp utili in Selimbar zona Brana

119.000 €

Aeroport, Sibiu

Nr. cam.:
2
Sup. utilă:
55 mp
Etaj:
3 / 3
An constr.:
2025 (Finalizată)
  • • Comision 0%
  • • Locație aproximativă
  • • Vizionare prin apel video

Descriere apartament

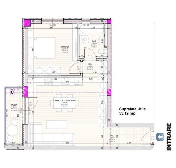
Va propunem spre vanzare un apartament modern cu 2 camere decomandate, situat la etajul 3 al unui imobil nou din cadrul unui ansamblu rezidential din Selimbar, pe strada Pictor Brana, ce va include parcari private, loc de joaca pentru copii, spatii verzi amenajate, zone comerciale si infrastructura completa cu strazi si trotuare asfaltate. Imobilul face parte dintr-un complex format din 9 cladiri cu regim redus de inaltime P+3E. Suprafata utila a locuintei este de 55.12 mp, acesta este compus din camera de zi cu bucatarie tip open space de 29.29 mp cu zona de dinning si depozitare, dormitorul de 13.96 mp, baia 5.23 mp cu geam de aerisire si un hol generos unde se poate amenaja zona de primire cu pantofar si cuier. Separat de suprafata utila acesta dispune de un balcon deschis placat cu gresie antiderapanta, in suprafata de 6 mp in care accesul se face din living si bucatarie. Apartamentul este la stadiul de cheie, fiind echipat cu usa metalica antiefractie placata cu panou MDF, centrala termica proprie Vaillant Ecotec de 24 kW cu incalzire in pardoseala marca Purmo si termostatare individuala pentru fiecare incapere, tamplarie PVC Kommerling cu 7 camere si geam tripan, instalatie electrica din cupru cu tablou general si sigurante separate, instalatii complete pentru utilitati cu contorizare individuala, interfon si instalatie pregatita pentru aer conditionat. Finisajele includ pereti tencuiti, gletuiti si zugraviti in lavabila, pardoseli din parchet SPC de 10 mm in camere si hol, gresie in bucatarie si bai, pereti placati cu faianta in bai, obiecte sanitare montate, usi interioare Naturen si prize si intrerupatoare Schneider. Spatiile comune ale imobilului sunt realizate la standarde moderne, casa scarii fiind finisata cu gresie antiderapanta, balustrade metalice si iluminat cu senzori, iar exteriorul complexului este complet amenajat cu alei pietonale, zone verzi cu gazon si arbusti decorativi si acces auto facil. In pretul de achizitie este inclus un loc de parcare privat amplasat in fata imobilului, iar proiectul ofera un cadru organizat si aerisit, cu distante generoase intre cladiri si acces rapid catre punctele de interes din oras. Pretul de vanzare este de 119.000 euro cu TVA de 21% inclus, iar achizitia se poate realiza si prin credit bancar cu un avans minim de 15%. ID intern: 3246.
Citește mai mult Citește mai puțin
Confort 1 Decomandat Nemobilat 1 Balcon / Terasă / Logie Centrală proprie Încălzire prin pardoseală 1 Parcare

Detalii apartament

ID anunț: XC741027P Copiat! 275431352 Copiat!
Actualizat în: 14 Aprilie 2026
Suprafață utilă totală: 55 mp
Suprafață construită: 72 mp
Nr. bucătării: 1
Nr. băi: 1
Structură rezistență: Altele
Tip imobil: Bloc de apartamente
Regim înălțime: P+3E

Utilități

Destinație
Rezidențial
Pereți
Faianță Vopsea lavabilă
Podele
Parchet Gresie
Ușă intrare
Metal
Izolații termice
Exterior
Ferestre cu geam termopan
PVC
Contorizare
Apometre Contor gaz
Utilități
Apă Curent Gaze Canalizare Telefon CATV
Amenajare străzi
Asfaltate Iluminat stradal
Comision
0%

Puncte de interes

Mijloace transport
bus-station
Sibiu-Triaj (Sud)
Stații autobuz aprox. 649 m
bus-station
Shopping City
Stații autobuz aprox. 721 m
bus-station
Mobexpert
Stații autobuz aprox. 868 m
bus-station
XXL
Stații autobuz aprox. 871 m
Școală
school
Scoala Generala Nr. 24
Școli aprox. 1249 m
school
Liceul Energetic
Școli aprox. 1324 m
kindergarten
Gradinita Nr. 14
Gradinițe aprox. 1327 m
school
Scoala generala nr. 21
Școli aprox. 1736 m
Recreere
sports-ground
Teren sportiv
Terenuri sport aprox. 615 m
supermarket
XXL
Supermarket aprox. 784 m
cafe
Coffe House
Cafenea aprox. 849 m
park
Parc
Parcuri aprox. 1171 m

Detalii despre preț și costuri

Prețul pe piață

Preț cerut: 119.000 €

Preț min. zonă
Preț max. zonă

71% dintre proprietățile similare ca zonă și nr. camere au prețul cerut mai mic. mai multe...

Bine de știut: prețul unei proprietăți este influențat și de alte caracteristici, cum ar fi: vechime, localizare, vecinătăți, suprafață, compartimentare, amenajări, dotări, etc. mai puțin...

Insight premium disponibil după login

Costuri cu achiziția

Fără credit
Credit ipotecar
Noua casă

i

Costuri adiționale mai puțin știute la achiziție: taxe notariale, comisioane etc.

Insight premium disponibil după login

Proprietăți similare

Apartament cu 2 camere decomandat, mobilat în Aeroport
122.500 €
Sibiu, Aeroport
2 camere
50 mp
Parter
Apartament cu 2 camere decomandat, mobilat în Aeroport
125.000 €
Sibiu, Aeroport
2 camere
53,8 mp
Etaj 2 / 4
Apartament cu 3 camere decomandat în Aeroport
120.000 €
Sibiu, Aeroport
3 camere
56 mp
Parter / 4

Detalii de contact

Atum Imobiliare

Marian Floricu Director General

Atum Imobiliare
PRO

Abonează-te la newsletter să fii primul care primește cele mai noi recomandări de proprietăți și sfaturi de la experți.

CONTACT

Creează alertă

Salvează căutarea ca să primești pe email ultimele anunțuri publicate

Apartamente noi cu 2 camere de vânzare în zona Aeroport, Sibiu