1

Apartament la cheie cu 2 camere balcon loc parcare zona Brana Selimbar

125.000 €

Aeroport, Sibiu

Nr. cam.:
2
Sup. utilă:
55 mp
Etaj:
2 / 2
An constr.:
2023 (Finalizată)
  • • Comision 0%
  • • Locație aproximativă
  • • Vizionare prin apel video

Descriere apartament

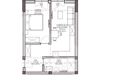
COMISION 0 ! De vanzare apartament decomandat cu 2 camere in suprafata utila de 55.28 mp care beneficiaza de balcon generos 6 mp, orientat spre SUD-EST, amplasat in zona strazii Pictor Brana din Selimbar. Apartamentul face parte dintr-un complex rezidential format din 3 imobile, cu regim redus de inaltime ( Parter + 2 Etaje ), edificat pe structura de beton cu zidarie din caramida Porotherm de 30 cm care va fi izolata cu izolatie termica din polistiren de 10 cm peste care se va aplica tencuiala decorativa siliconata. Locuinta propusa are 54.28 mp utili si este compusa camera de zi de 18 mp, bucataria separata de 8.73 mp, dormitorul de 12.64 mp, baia de 5.07 prevazuta pentru cada, holul de 7.34 mp unde se afla si un spatiu de 2.5 mp pentru amenajarea unui dresing si a cuierului cu pantofar. Separat de suprafata utila, apartamentul mai beneficiaza si de balcon cu suprafata 5.97 mp in care accesul se face din camera de zi si bucatarie. Locuinta se preda la stadiul de cheie cu urmatoarele finisaje: - Usa de metal la intrarea în apartamente placate cu panou MDF; - Pereti tencuiti ( tencuieli pe baza de var-ciment ) si gletuiti; - pardoseli amenajate cu sapa autonivelanta semiuscata elicopterizata pregatite pentru parchet-gresie; - tamplarie PVC pentacamerala de culoare alba cu 3 foi de sticla ( lowe-float-lowe solar ), si glafuri interior-exterior; - incalzire prin calorifere cu ajutorul unei centrale termice proprie in condensatie si detector gaz; - sisteme electrice din cupru trase prin copex cu tablou general si sigurante pentru consumatorii mari de putere; - Instalatii pentru curentii slabi Internet, Telefon, TV; - Racorduri apa-canal in bucatarie si baie; - Racord gaz metan la bucatarie; - Rupere termica intre balcon si placa din profil de 10 cm montat la tamplarie si polistirent extrudat; - Balcon inchis cu caramida si sticla, finisat si placat cu gresie antiderapanta; - Contorizari individuale la utilitati, racorduri si contoare montate pentru gaz, curent si apa; - Gresie, faianta, parchet laminat, intrerupatoare, prize, usi de interior, obiecte sanitare. Casa scarii dispune de acces securizat, scarile placate cu gresie antiderapanta, mana curenta din teava rectangulara, plafoniere cu senzori de miscare si zugraveli in lavabila alba. Spatile comune exterioare respectiv curtea complexului dispune de spații verzi amenajate cu gazon. In pretul de achizitie este inclus un loc de parcare suprateran, delimitat si pavat cu dale din beton. Valoarea de achizite a locuintei la plata unui avans de 25% este de 125.000 euro. ID intern: 1820.
Citește mai mult Citește mai puțin
Confort 1 Decomandat Nemobilat 1 Balcon / Terasă / Logie Centrală proprie

Detalii apartament

ID anunț: XC7410170 Copiat! 62132782 Copiat!
Actualizat în: 30 Martie 2026
Suprafață utilă totală: 55 mp
Suprafață construită: 65 mp
Nr. bucătării: 1
Nr. băi: 1
Structură rezistență: Beton
Tip imobil: Bloc de apartamente
Regim înălțime: P+2E

Utilități

Destinație
Rezidențial
Pereți
Faianță Vopsea lavabilă
Podele
Parchet Gresie
Ușă intrare
Metal
Izolații termice
Exterior
Ferestre cu geam termopan
PVC
Contorizare
Apometre Contor gaz
Utilități
Apă Curent Gaze Canalizare Telefon CATV
Amenajare străzi
Asfaltate Iluminat stradal
Comision
0%

Vecinătăți:

Restaurant/pub, Mall, Parc, Fastfood, Supermarket, Zona comerciala

Puncte de interes

Mijloace transport
bus-station
Sibiu-Triaj (Sud)
Stații autobuz aprox. 626 m
bus-station
Shopping City
Stații autobuz aprox. 673 m
bus-station
XXL
Stații autobuz aprox. 699 m
bus-station
Mobexpert
Stații autobuz aprox. 724 m
Școală
school
Scoala Generala Nr. 24
Școli aprox. 844 m
kindergarten
Gradinita Nr. 14
Gradinițe aprox. 914 m
school
Liceul Energetic
Școli aprox. 986 m
kindergarten
Gradinita Kristine
Gradinițe aprox. 1779 m
Recreere
sports-ground
Teren sportiv
Terenuri sport aprox. 489 m
supermarket
XXL
Supermarket aprox. 587 m
restaurant
El Gringo
Restaurant aprox. 716 m
park
Parc
Parcuri aprox. 795 m

Detalii despre preț și costuri

Prețul pe piață

Preț cerut: 125.000 €

Preț min. zonă 60.000 €
Preț max. zonă 135.000 €

81% dintre proprietățile similare ca zonă și nr. camere au prețul cerut mai mic. mai multe...

Bine de știut: prețul unei proprietăți este influențat și de alte caracteristici, cum ar fi: vechime, localizare, vecinătăți, suprafață, compartimentare, amenajări, dotări, etc. mai puțin...

Costuri cu achiziția

Fără credit
7.196 RON
Credit ipotecar
8.839 RON
Noua casă
777 RON+ taxe notariale

i

Costuri adiționale mai puțin știute la achiziție: taxe notariale, comisioane etc.

Proprietăți recomandate

Detalii de contact

Atum Imobiliare

Alexandru Luca Consultant imobiliar

5.00(4 review-uri)

Atum Imobiliare
PRO

Abonează-te la newsletter să fii primul care primește cele mai noi recomandări de proprietăți și sfaturi de la experți.

CONTACT

Creează alertă

Salvează căutarea ca să primești pe email ultimele anunțuri publicate

Apartamente noi cu 2 camere de vânzare în zona Aeroport, Sibiu