Apartament 3 camere balcon loc parcare zona Triajului Selimbar

105.000 €

Aeroport, Sibiu

Nr. cam.:
3
Sup. utilă:
64 mp
Etaj:
2 / 3
An constr.:
2025 (În construcție)
  • • Comision 0%
  • • Locație aproximativă
  • • Vizionare prin apel video

Descriere apartament

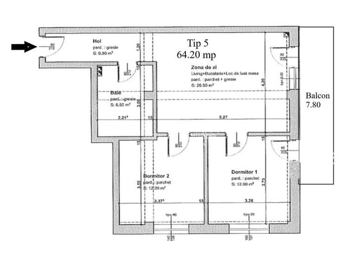
Comision 0 la achizitie! Va oferim spre vanzare un apartament cu 3 camere si balcon, pozitionat la etajul intermediar 2 din 3 al unui imobil constructie noua ce face parte dintr-un complex rezidential de doar 2 blocuri, situat in Selimbar zona Triajului. Locuinta are 64.20 mp utili si este compusa din living cu bucatarie de tip open-space de 26.50 mp, 2 dormitoare de 12.00 mp si 12.20 mp, baie de 6.50 mp, si un hol de 2.19 mp ce dispune de spatiu pentru pantofar si cuier. Separat de suprafata utila apartamentul dispune de un balcon deschis in suprafata de 7.80 mp. Predarea apartamentului se va face la stadiul de gri in decursul lunii Decembrie 2025 si cuprinde: Usa metalica antiefractie placata cu panou MDF; Tamplarie PVC marca Rehau 5 camere si 3 foi de sticla si glafuri interioare si exterioare, Instalatie termica cu centrala termica Bosch in condensatie si incalzire in pardoseala; Pereti interiori tencuiti, gletuiti si zugraviti in lavabila alba; Instalatii electrice cu tablou general individual si sigurante pentru consumatorii de putere, prize si intrerupatoare montate, instalatii pentru curenti slabi ( TV, Telefon, Internet ) si apartaje montate; acorduri apa-canal si gaz in bucatarie; Contorizari individuale si contoare montate pentru Gaz, Curent si Apa, Balcon inchis cu parapet de sticla securizata, finisat si placat cu gresie antiderapanta. Partile comune ale blocurilor precum accesul si casa scarilor vor dispune de placari din granit, mana curenta din teava rectangulara, zugraveli in lavabila alba si corpuri de iluminat cu senzori de miscare. Accesul rezidentilor in imobile este securizat si se va face pe baza cartelelor magnetice si aparatelor de interfon montate in fiecare apartament. Proiectul va dispune de numeroase spatii verzi amenajate cu gazon si arbusti ornamentali, trotuare ample, cai de acces auto asfaltate, iluminat stradal si un loc de joaca pentru copii amenajat de catre dezvoltator. In pretul de vanzare este inclus si un loc de parcare amenajat si delimitat, situat in fata imobilului. Constructia este realizata din caramida cu grosimea de 30 cm, avand izolatie termica din vata bazaltica, tencuiala de exterior si zugraveli decorative. Valoarea de achizitie a apartamentului este de 105.000 euro. Acesta se poate achizitiona si prin credit bancar cu avans minim de 20%. ID intern: 2634.
Citește mai mult Citește mai puțin
Confort 2 Semidecomandat 1 Balcon / Terasă / Logie Centrală proprie Încălzire prin pardoseală 1 Parcare

Detalii apartament

ID anunț: XC74101OB Copiat! 253920605 Copiat!
Actualizat în: 17 Martie 2026
Suprafață utilă totală: 64 mp
Suprafață construită: 85 mp
Nr. bucătării: 1
Nr. băi: 1
Structură rezistență: Altele
Tip imobil: Bloc de apartamente
Regim înălțime: P+3E

Utilități

Destinație
Rezidențial
Ușă intrare
Metal
Izolații termice
Exterior
Ferestre cu geam termopan
PVC
Contorizare
Apometre Contor gaz
Utilități
Apă Curent Gaze Canalizare Telefon CATV
Amenajare străzi
Asfaltate Iluminat stradal
Comision
0%

Puncte de interes

Mijloace transport
bus-station
Sibiu-Triaj (Sud)
Stații autobuz aprox. 987 m
bus-station
Statia Sibiu Grupa Selimbar
Stații autobuz aprox. 1178 m
bus-station
Shopping City
Stații autobuz aprox. 1252 m
bus-station
Mobexpert
Stații autobuz aprox. 1440 m
Școală
school
Scoala Generala Nr. 24
Școli aprox. 1916 m
school
Liceul Energetic
Școli aprox. 1977 m
kindergarten
Gradinita Nr. 14
Gradinițe aprox. 1991 m
Recreere
cafe
Coffe House
Cafenea aprox. 1208 m
sports-ground
Teren sportiv
Terenuri sport aprox. 1215 m
supermarket
Shopping City Sibiu
Supermarket aprox. 1253 m
park
Parc
Parcuri aprox. 1756 m

Detalii despre preț și costuri

Prețul pe piață

Preț cerut: 105.000 €

Preț min. zonă 79.000 €
Preț max. zonă 199.900 €

72% dintre proprietățile similare ca zonă și nr. camere au prețul cerut mai mare. mai multe...

Bine de știut: prețul unei proprietăți este influențat și de alte caracteristici, cum ar fi: vechime, localizare, vecinătăți, suprafață, compartimentare, amenajări, dotări, etc. mai puțin...

Costuri cu achiziția

Fără credit
6.348 RON
Credit ipotecar
7.907 RON
Noua casă
675 RON+ taxe notariale

i

Costuri adiționale mai puțin știute la achiziție: taxe notariale, comisioane etc.

Proprietăți recomandate

Detalii de contact

Atum Imobiliare

Alexandru Luca Consultant imobiliar

5.00(4 review-uri)

Atum Imobiliare
PRO

Abonează-te la newsletter să fii primul care primește cele mai noi recomandări de proprietăți și sfaturi de la experți.

CONTACT

Creează alertă

Salvează căutarea ca să primești pe email ultimele anunțuri publicate

Apartamente cu 3 camere de vânzare în zona Aeroport, Sibiu