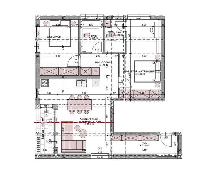
Apartament complet finisat la cheie cu 3 camere 2 bai si balcon de vanzare in zona Arhitectilor, in suprafata totala de 93.3 mp, pozitionat la etajul intermediar 1 din 2 al unui imobil modern care gazduieste doar 4 apartamente.
Suprafata utila a apartamentului este de 74.10 mp, acesta fiind compus dintr-un living open space cu bucataria de 25.33 mp, dormitorul matrimonial de 15,58 mp care dispune de propria baie de 3.60 mp si dormitorul secundar 12,08 mp destinat copilului sau oaspetilor, baia de 4,70 mp dotata cu cada si 2 holuri, unul de 5,44 cu loc special amenajat pentru masina de spalat rufe si un hol de acces 7.15 mp cu loc sepcial amenajat pentru cuier si pantofar..
Separat de suprafata utila a locuintei acesta detine si un balcon 4.50 mp in care accesul se face din camera de zi.
Parcarea se realizeaza pe propriul loc de parcare special amenajat si delimitat.
Apartamentul se preda complet finisat la cheie cu dotari si finisaje precum:
-Gresie si faianta in bucatarie, gresie si faianta in bai, obiecte sanitare ( cabina de dus cada, lavoar, vas wc, baterii cada lavoar ), parchet laminat, usi de interior, corpuri de iluminat, care pot fi alese chiar de dumenavoastra in limita unui buget.
-Scafe realizate pentru iluminat led modern;
- Usa de metal la intrarea in apartament placata cu panou MDF;
- Pereti tencuiti ( tencuieli pe baza de var-ciment), slefuiti si zugraviti in 3 maini de lavabila;
- Pardoseli amenajate cu sapa autonivelanta semiuscata elicopterizata pregatite pentru parchet-gresie;
- Tamplarie PVC marca Salamander cu 7 camere si 3 foi de sticla ( lowe-float-lowe solar ) si 3 garnituri, glafuri interior-exterior;
- Incalzire in pardoseala cu cablaj pentru termostatarea individuala a fiecarei incaperi, centrala termica proprie in condensatie marca Bosch si detector gaz;
- Sisteme elecrice din cupru trase prin copex cu tablou general si sigurante pentru consumatorii de putere marca Schneider;
- Instalatii pentru curentii slabi, Internet, Telefon, TV;
- Racorduri apa-canal in bucatarie si bai;
- Racord gaz metan in bucatarie;
- Rupere termica intre balcon si placa din profil de 10 cm montat la tamplarie si polistiren extrudat;
- Instalatii pentru gaz, curent electric si apa, contorizare individuala si contoare montate.
Din punct de vedere structural acesta este edificat pe structura portanta din beton si zidarie din caramida cu grosimea de 30 cm peste care este aplicat termosistemul exterior din vata bazaltica de 10 cm si tencuiala decorativa siliconata de exterior, acoperis terasat
Apartamentul face parte dintr-un complex rezidential modern, intim, compus din 2 imobile cu regimuri de inaltime Parter+Etaj+Etaj retras, totalizand 8 apartamente in tot complexul, unde apartamentul de la Parter si cel de la Etajul Retras sunt singure pe nivel iar la etajul 1 sunt doar 2 apartamente. Complexul detine si locuri de parcare private atribuite locatarilor, zona verde generoasa care inconjoara imobilul.
Valoarea de achizitie este de 179.300 euro cu TVA 21% inclus, acesta se poate achzitiona si prin accesarea unui credit bancar. ID intern: 2767.
87%dintre proprietățile similare ca zonă și nr. camere au prețul cerutmai mic.
mai multe...
Bine de știut: prețul unei proprietăți este influențat și de alte caracteristici, cum ar fi: vechime, localizare, vecinătăți, suprafață, compartimentare, amenajări, dotări, etc.
mai puțin...
Costuri cu achiziția
Fără credit
9.062 RON
Credit ipotecar
10.936 RON
Noua casă
1.054 RON+ taxe notariale
i
Costuri adiționale mai puțin știute la achiziție: taxe notariale, comisioane etc.
Calculul ipotecarului
Proprietăți recomandate
Pornind de la căutarea ta îți recomandăm următoarele anunțuri
157.000 € + TVA
Sibiu, Arhitecților - Calea Cisnădiei
3 camere
74,1 mp
Etaj 1 / 2
157.000 €
Județul Sibiu, Șelimbăr
4 camere
110 mp
Etaj 2
175.000 €
Județul Sibiu, Șelimbăr
3 camere
68 mp
Etaj 7 / 11
145.000 €
Sibiu, Aeroport
2 camere
60 mp
Etaj 6
163.000 €
Sibiu, Aeroport
3 camere
85 mp
Parter / 5
169.000 €
Sibiu, Vasile Aaron
3 camere
72 mp
Parter / 2
177.400 €
Sibiu, Aeroport
3 camere
74 mp
Etaj 1 / 2
150.000 €
Județul Sibiu, Șelimbăr
3 camere
72 mp
Etaj 3 / 3
169.000 €
Județul Sibiu, Șelimbăr
3 camere
75 mp
Etaj 2 / 4
Detalii de contact
Acestă agenție te poate ajuta să obții o soluție de finanțare potrivită nevoilor tale. Solicită-i informații suplimentare.
Sediul central - Timișoara
Bulevardul Victor Babeș nr. 2, 300230, Timișoara, România
Tel: +40.374.40.44.98 / Fax: +40.256.401.179
Email: suport@imobiliare.ro
Luni - Vineri 08:00 - 20:00
Punct de lucru - București: Iride Business Park, Bld. Dimitrie
Pompeiu 9-9A, Clădirea B2B,
020335, Sector 2, București, România
CONTACT
Sediul central - Timișoara
Bulevardul Victor Babeș nr. 2, 300230, Timișoara, România
Tel: +40.374.40.44.98 / Fax: +40.256.401.179
Email: suport@imobiliare.ro
Luni - Vineri 08:00 - 20:00
Punct de lucru - București: Iride Business Park, Bld. Dimitrie
Pompeiu 9-9A, Clădirea B2B,
020335, Sector 2, București, România
Asigurare de viață/lună Costul este variabil. În funcție de banca aleasă, procentul variază între 0.0259% și 0.035% din soldul creditului.
Costuri cu achiziția10.936 RON
Comision agenție Întreabă agenţia
Onorariu notarial7.691 RON
Taxă întabulare OCPI1.371 RON
Autentificare contract credit1.874 RON
Preț de achiziție914.232 RON
Preț locuință914.232 RON
TVA 0%Inclus în prețul cerut
Preț de achiziție914.232 RON
Preț locuință914.232 RON
TVA 0%
Inclus în prețul cerut
Avans minim307.464 RON
Credit pe 30 de ani606.769 RON
Cost achitat în prima lună
Taxa evaluare imobil(până la)
575 RON
Rata lunară (variabilă)4.263 RON
Depozit colateral12.789 RON
Comision de garantare FNGCIMM76 RON
Asigurare anuală imobil914 RON
Poliță PAD130 RON
Tarif arhivă electronică102 RON
Costuri adiționale1.054 RON + taxe notariale
Asigurare viață și complexă (opțională)Costul este variabil. În funcție de banca aleasă, procentul variază între 0.0259% și 0.035% din soldul creditului
Onorariu notarialconform tarif notarial
Taxă întabulare OCPI1.054 RON
i
Toate valorile de mai sus sunt estimative și nu reprezintă în mod obligatoriu costurile exacte pe care le veți primi de la companiile/instituțiile prin care veți încheia tranzacția.