Apartament 3 camere, complet renovat situat intr-o zona buna

130.000 €

Aeroport, Sibiu

Nr. cam.:
3
Sup. utilă:
64,5 mp
Etaj:
8 / 10
An constr.:
1985 (Finalizată)
  • • Locație aproximativă
  • • Vizionare prin apel video

Descriere apartament

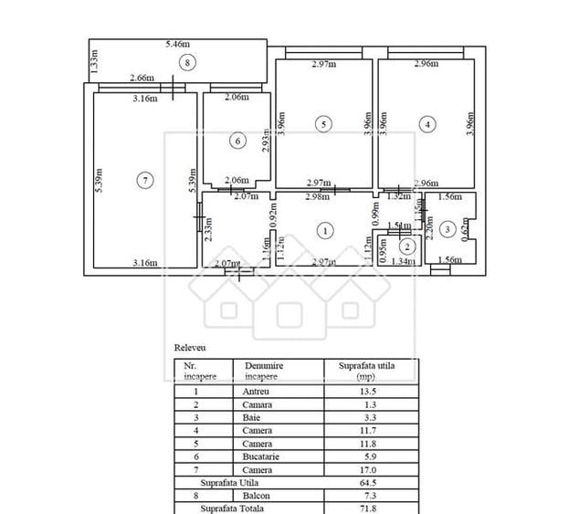
Apartament de vanzare in Sibiu – 3 camere - decomandat, complet renovat – B-dul Mihai Viteazu New Concept Living ofera spre vanzare un apartament cu 3 camere, decomandat, situat intr-una dintre cele mai cautate zone din Sibiu – Bulevardul Mihai Viteazu. Locuinta este complet renovata, iar bucataria si baia sunt mobilate si utilate modern. Avantaje apartament: decomandat complet renovat, finisat la cheie bucatarie si baie mobilate si utilate etaj intermediar (8 10) baie cu geam de aerisire zona foarte buna, aproape de puncte de interes Descriere apartament: suprafata utila: 64,5 mp balcon: 7,3 mp compartimentare: hol de acces (13,50 mp), 3 camere (17 mp, 11,80 mp, 11,70 mp), bucatarie separata (5,90 mp) + camara (1,30 mp), baie cu geam de aerisire, debara si balcon spatios. Stadiul de predare: Apartamentul este disponibil imediat si se preda finisat la cheie, exact ca in imagini. Instalatie electrica noua cu prize, internet si cablu TV in fiecare camera Coloana de apa schimbata Tamplarie PVC cu geam termopan (2 straturi) Usa metalica la intrare Lift nou, modern Locatie: Imobilul este amplasat pe Bulevardul Mihai Viteazu, cu acces rapid catre 3 artere principale: strada Nicolae Iorga, Calea Dumbravii si strada Rahovei. 15 minute de mers pe jos pana in Centrul Vechi 10 minute pana la Parcul Sub Arini 5 minute pana la Piata Agroalimentara Rahova acces rapid catre Centrul Comercial Selimbar ID intern: 18759
Citește mai mult Citește mai puțin
Confort 1 Decomandat 1 Balcon / Terasă / Logie Centrală proprie Bine întreținut (Bună)

Detalii apartament

ID anunț: X7IV102FO Copiat! 47887392 Copiat!
Actualizat în: 30 Ianuarie 2026
Suprafață utilă totală: 64.5 mp
Suprafață construită: 71.8 mp
Nr. bucătării: 1
Nr. băi: 1
Structură rezistență: Altele
Tip imobil: Bloc de apartamente
Regim înălțime: P+10E

Utilități

Destinație
Rezidențial
Pereți
Vopsea lavabilă
Ușă intrare
Metal
Izolații termice
Exterior
Utilități
Apă Curent Gaze Canalizare
Amenajare străzi
Asfaltate
Comision
2%

Puncte de interes

Mijloace transport
bus-station
Piata Rahova 1
Stații autobuz aprox. 502 m
bus-station
Piata Rahova 2
Stații autobuz aprox. 518 m
bus-station
Piata Rahova 3
Stații autobuz aprox. 566 m
bus-station
Interex
Stații autobuz aprox. 711 m
Școală
school
Scoala Generala Nr. 9
Școli aprox. 714 m
school
Scoala generala nr. 21
Școli aprox. 725 m
kindergarten
Gradinita Nr. 42
Gradinițe aprox. 1084 m
university
Facultatea de Stiinte Agroalimentare
Universități aprox. 1426 m
Recreere
supermarket
Lidl
Supermarket aprox. 300 m
sports-ground
Teren sportiv
Terenuri sport aprox. 508 m
restaurant
Pizzeria Insieme
Restaurant aprox. 555 m
park
Parc
Parcuri aprox. 1116 m

Detalii despre preț și costuri

Prețul pe piață

Preț cerut: 130.000 €

Preț min. zonă 78.000 €
Preț max. zonă 227.990 €

66% dintre proprietățile similare ca zonă și nr. camere au prețul cerut mai mic. mai multe...

Bine de știut: prețul unei proprietăți este influențat și de alte caracteristici, cum ar fi: vechime, localizare, vecinătăți, suprafață, compartimentare, amenajări, dotări, etc. mai puțin...

Costuri cu achiziția

Fără credit
20.616 RON
Credit ipotecar
22.281 RON
Noua casă
803 RON+ taxe notariale

i

Costuri adiționale mai puțin știute la achiziție: taxe notariale, comisioane etc.

Proprietăți recomandate

Detalii de contact

New Concept Living

Silviu Marin Senior Partner

New Concept Living
PRO

Abonează-te la newsletter să fii primul care primește cele mai noi recomandări de proprietăți și sfaturi de la experți.

CONTACT

Creează alertă

Salvează căutarea ca să primești pe email ultimele anunțuri publicate

Apartamente cu 3 camere de vânzare în zona Aeroport, Sibiu