De vanzare in zona Arhitectilor apartament complet finisat la cheie de 4 camere decomandate cu 3 bai, in suprafata totala de 138 mp, 2 locuri de parcare si gradina proprie de 200 mp.
Apartamentul este situat la parter inalt, singur pe nivel cu acces separat fata de ceilalti locatari, intr-un imobil modern, constructie 2025 cu termen de predare in luna Decembrie 2025. Imobilul dispune de regimul de inaltime Parter+ Etaj+Etaj Retras si gazduieste doar 4 apartamente.
Din punct de vedere structural acesta este edificat pe structura portanta din beton si zidarie din caramida cu grosimea de 30 cm peste care este aplicat termosistemul exterior din vata bazaltica de 10 cm si tencuiala decorativa siliconata de exterior.
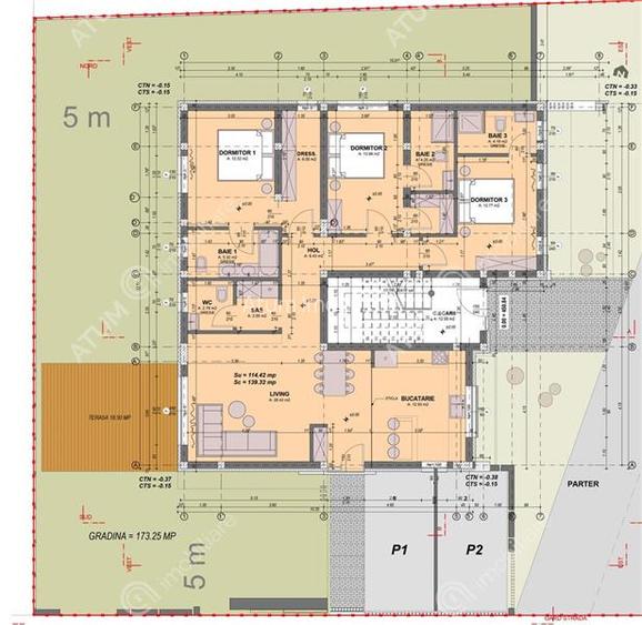
Apartamentul masoara suprafate de 114,42 mp, acesta fiind alcatuit din: camera de zi de 28.42 tip open space cu bucataria 12.93 mp care permit separarea, dormitorul matrimonial 12.52 mp care detine propria baie de 5.32 mp dotata cu geam si prevazuta cu cada si propriul dressing de 6.00 mp, al doilea dormitor de 13,92 mp care detine de asemenea dressing si propria baie de 4.25 mp dotata cu geam si prevazuta cu cada iar al treilea dormitor de 12.77 mp care dispune de baie proprie 4.18 mp dotata cu geam si cada si un hol generos de 9.43 mp.
Separat de suprafata utila a apartamentului acesta mai beneficiaza de o terasa 18.50 mp in care accesul se face din camera de zi si gradina generoasa de 200 mp cu retragere de 5 m de la imobil.
Parcarea se realizeaza pe cele 2 locuri de parcare proprii amenajate si delimitate.
Apartamentul se preda complet finisat la cheie cu dotari si finisaje precum:
-Gresie si faianta in bucatarie, gresie si faianta in bai, obiecte sanitare ( cabina de dus cada, lavoar, vas wc, baterii cada lavoar ), parchet laminat, usi de interior, corpuri de iluminat.
-Mobilier de bucatarie realizat pe comanda si electrocasnice incorporate.
-Scafe realizate pentru iluminat led modern;
- Usa de metal la intrarea in apartament placata cu panou MDF;
- Pereti tencuiti ( tencuieli pe baza de var-ciment), slefuiti si zugraviti in 3 maini de lavabila;
- Pardoseli amenajate cu sapa autonivelanta semiuscata elicopterizata pregatite pentru parchet-gresie;
- Tamplarie PVC marca Salamander cu 7 camere si 3 foi de sticla ( lowe-float-lowe solar ) si 3 garnituri, glafuri interior-exterior;
- Incalzire in pardoseala cu cablaj pentru termostatarea individuala a fiecarei incaperi, centrala termica proprie in condensatie marca Bosch si detector gaz;
- Sisteme elecrice din cupru trase prin copex cu tablou general si sigurante pentru consumatorii de putere marca Schneider;
- Instalatii pentru curentii slabi, Internet, Telefon, TV;
- Racorduri apa-canal in bucatarie si bai;
- Racord gaz metan in bucatarie;
- Rupere termica intre balcon si placa din profil de 10 cm montat la tamplarie si polistiren extrudat;
- Instalatii pentru gaz, curent electric si apa, contorizare individuala si contoare montate.
Apartamentul face parte dintr-un complex rezidential modern, intim, compus din 2 imobile cu regimuri de inaltime Parter+Etaj+Etaj retras, totalizand 8 apartamente in tot complexul, unde apartamentul de la Parter si cel de la Etajul Retras sunt singure pe nivel iar la etajul 1 sunt doar 2 apartamente. Complexul detine si locuri de parcare private atribuite locatarilor, zona verde generoasa care inconjoara imobilul.
Valoarea de achizitie este de 278.000 euro cu TVA 21% inclus, acesta se poate achzitiona si prin accesarea unui credit bancar. ID intern: 2767.
92%dintre proprietățile similare ca zonă și nr. camere au prețul cerutmai mic.
mai multe...
Bine de știut: prețul unei proprietăți este influențat și de alte caracteristici, cum ar fi: vechime, localizare, vecinătăți, suprafață, compartimentare, amenajări, dotări, etc.
mai puțin...
Costuri cu achiziția
Fără credit
12.443 RON
Credit ipotecar
14.735 RON
Noua casă
1.556 RON+ taxe notariale
i
Costuri adiționale mai puțin știute la achiziție: taxe notariale, comisioane etc.
Calculul ipotecarului
Proprietăți recomandate
Pornind de la căutarea ta îți recomandăm următoarele anunțuri
229.000 € + TVA
Sibiu, Arhitecților - Calea Cisnădiei
4 camere
115 mp
200 mp teren
209.500 €
Sibiu, Exterior Vest
4 camere
105,5 mp
Etaj 2
290.000 € + TVA
Sibiu, Arhitecților - Calea Cisnădiei
5 camere
149 mp
Parter
171.500 €
Sibiu, Periferie
5 camere
129 mp
Etaj 2 / 2
165.000 €
Sibiu, Exterior Sud
4 camere
91 mp
Etaj 5 / 6
141.000 €
Sibiu, Exterior Vest
3 camere
73,61 mp
Etaj 1
209.000 €
Sibiu, Arhitecților - Calea Cisnădiei
4 camere
104,5 mp
Etaj 2 / 2
238.000 €
Sibiu, Exterior Sud
4 camere
91 mp
Etaj 6 / 6
229.000 €
Sibiu, Exterior Vest
5 camere
131,17 mp
Etaj 2
Detalii de contact
Acestă agenție te poate ajuta să obții o soluție de finanțare potrivită nevoilor tale. Solicită-i informații suplimentare.
Sediul central - Timișoara
Bulevardul Victor Babeș nr. 2, 300230, Timișoara, România
Tel: +40.374.40.44.98 / Fax: +40.256.401.179
Email: suport@imobiliare.ro
Luni - Vineri 08:00 - 20:00
Punct de lucru - București: Iride Business Park, Bld. Dimitrie
Pompeiu 9-9A, Clădirea B2B,
020335, Sector 2, București, România
CONTACT
Sediul central - Timișoara
Bulevardul Victor Babeș nr. 2, 300230, Timișoara, România
Tel: +40.374.40.44.98 / Fax: +40.256.401.179
Email: suport@imobiliare.ro
Luni - Vineri 08:00 - 20:00
Punct de lucru - București: Iride Business Park, Bld. Dimitrie
Pompeiu 9-9A, Clădirea B2B,
020335, Sector 2, București, România
Asigurare de viață/lună Costul este variabil. În funcție de banca aleasă, procentul variază între 0.0259% și 0.035% din soldul creditului.
Costuri cu achiziția14.735 RON
Comision agenție Întreabă agenţia
Onorariu notarial10.319 RON
Taxă întabulare OCPI2.124 RON
Autentificare contract credit2.292 RON
Preț de achiziție1.416.215 RON
Preț locuință1.416.215 RON
TVA 0%Inclus în prețul cerut
Preț de achiziție1.416.215 RON
Preț locuință1.416.215 RON
TVA 0%
Inclus în prețul cerut
Avans minim809.994 RON
Credit pe 30 de ani606.222 RON
Cost achitat în prima lună
Taxa evaluare imobil(până la)
575 RON
Rata lunară (variabilă)4.260 RON
Depozit colateral12.780 RON
Comision de garantare FNGCIMM118 RON
Asigurare anuală imobil1.416 RON
Poliță PAD130 RON
Tarif arhivă electronică102 RON
Costuri adiționale1.556 RON + taxe notariale
Asigurare viață și complexă (opțională)Costul este variabil. În funcție de banca aleasă, procentul variază între 0.0259% și 0.035% din soldul creditului
Onorariu notarialconform tarif notarial
Taxă întabulare OCPI1.556 RON
i
Toate valorile de mai sus sunt estimative și nu reprezintă în mod obligatoriu costurile exacte pe care le veți primi de la companiile/instituțiile prin care veți încheia tranzacția.