Etajul integral al unei case, Padurea Dumbrava-Arhitectilor

184.500 €

Arhitecților - Calea Cisnădiei, Sibiu

Nr. cam.:
4
Sup. utilă:
122 mp
Etaj:
1 / 1
An constr.:
2018 (Finalizată)
  • • Comision 0%
  • • Locație aproximativă

Descriere apartament

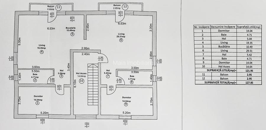
Doua apartamente de vanzare în Sibiu- 128 mp- cartierul Arhitectilor Va oferim spre vanzare etajul unei case, structurat in doua apartamente, care totalizeaza o suprafata totala de 128 mp, fiecare cu CF si contorizare separata. Imobilul este construit in anul 2018, structurat in parter si etaj. La parter este un spatiu pentru birouri, iar la etaj regasim cele doua apartamente: -apartamentul 1 este structurat in : living +bucatarie cu o suprafata de 29,94 mp; dormitor 14,04 mp; baie 4,71 mp; hol 5,04 mp; balcon 2,95 mp; -apartamentu 2 este structurat in: living+bucatarie 29,51 mp; dormitor 14,04 mp; baie 4,71 mp; hol acces 14,64 mp; hol secundar 5,42 mp; balcon 2,95 mp; Stadiul de predare si avantaje apartamente de vanzare in Sibiu: -Apartamentele se predau la stadiul de finisat la cheie; – locuri de parcare amenajate; –centrala termica proprie, care deserveste intreg nivelul; -constructie noua din caramida, cu izolatie in exterior; -doua balcoane; –supraveghere video, alarma; Locatia: -Accesul se face din str Grigore Ionescu; -la 400 m de Padurea Dumbrava; -la 2 minute de Gradinita Eri; -la 12 minute de Spitalul Judetean Sibiu si zona centrala; -zona linistita si accesibila cu constructii finalizate in jur; -in proximitate aveti supermarketul Lidl si Kaufland, Clinica Diamed, sala de fitness; Modalitate de plata: Se poate achizitiona atat din surse proprii cat si prin credit bancar, fiind libere de sarcini. Comision 0% pentru cumparator! Pentru informatii suplimentare, va stam la dispozitie.
Citește mai mult Citește mai puțin
Confort 1 Decomandat 2 Balcoane / Terase / Logii Centrală proprie 4 Parcări Renovat

Detalii apartament

ID anunț: X6590010I Copiat! 241215221 Copiat!
Actualizat în: 25 Iulie 2025
Suprafață utilă totală: 128 mp
Suprafață construită: 176 mp
Nr. bucătării: 2
Nr. băi: 2
Structură rezistență: Cărămidă
Tip imobil: Casă/Vilă
Regim înălțime: P+1E

Utilități

Destinație
Rezidențial Birouri
Pereți
Vopsea lavabilă
Podele
Gresie Parchet
Ușă intrare
Metal
Uși interior
Lemn
Izolații termice
Exterior
Ferestre cu geam termopan
PVC
Contorizare
Contor gaz Apometre
Facilități imobil
Interfon
Utilități
Curent Apă Canalizare
Internet
Fibră optică
Amenajare străzi
Asfaltate Iluminat stradal

Puncte de interes

Mijloace transport
bus-station
Cimitir 1
Stații autobuz aprox. 774 m
bus-station
Cimitir 2
Stații autobuz aprox. 819 m
bus-station
Siretului 2
Stații autobuz aprox. 853 m
bus-station
Siretului
Stații autobuz aprox. 856 m
Școală
kindergarten
Gradinita Nr. 5
Gradinițe aprox. 879 m
school
Gradinita cu program prelungit nr. 43
Școli aprox. 1074 m
school
Scoala Gimnaziala nr. 16
Școli aprox. 1335 m
kindergarten
FasTracKids
Gradinițe aprox. 1446 m
Recreere
bar
Bar Cesar
Bar aprox. 834 m
park
Parc
Parcuri aprox. 892 m
sports-ground
Teren sportiv
Terenuri sport aprox. 945 m
supermarket
Profi
Supermarket aprox. 959 m

Detalii despre preț și costuri

Prețul pe piață

Preț cerut: 184.500 €

Preț min. zonă
Preț max. zonă

73% dintre proprietățile similare ca zonă și nr. camere au prețul cerut mai mare. mai multe...

Bine de știut: prețul unei proprietăți este influențat și de alte caracteristici, cum ar fi: vechime, localizare, vecinătăți, suprafață, compartimentare, amenajări, dotări, etc. mai puțin...

Insight premium disponibil după login

Costuri cu achiziția

Fără credit
Credit ipotecar
Noua casă

i

Costuri adiționale mai puțin știute la achiziție: taxe notariale, comisioane etc.

Insight premium disponibil după login

Proprietăți recomandate

Detalii de contact

Maia Imobiliare

Amalia Mateica

4.67(3 review-uri)

Maia Imobiliare

Abonează-te la newsletter să fii primul care primește cele mai noi recomandări de proprietăți și sfaturi de la experți.

CONTACT

Creează alertă

Salvează căutarea ca să primești pe email ultimele anunțuri publicate

Apartamente cu 4+ camere de vânzare în zona Arhitecților - Calea Cisnădiei, Sibiu