Apartament decomandat cu 2 camere-s.utila 53.46 mp, balcon 6,14- loc de parcare

112.000 €

Hipodrom 3, Sibiu

Nr. cam.:
2
Sup. utilă:
53,46 mp
Etaj:
2 / 3
An constr.:
2025 (Finalizată)
  • • Locație aproximativă

Descriere apartament

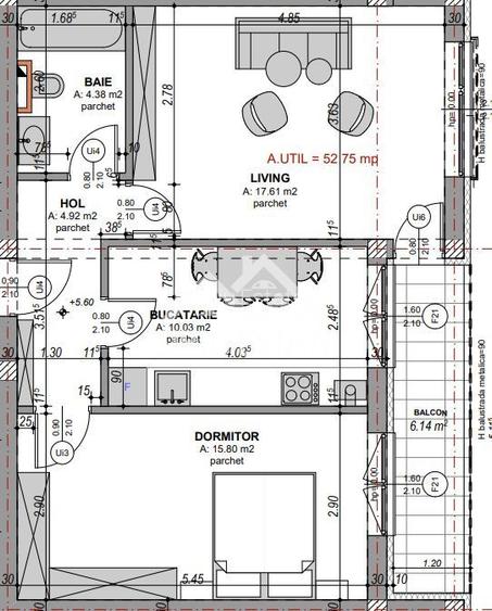
Apartament decomandat de vanzare cu 2 camere, incalzire prin pardoseala, loc de parcare Avantaje - accesul se fac pe un drum privat prevazut cu bariera - constructie noua -loc de parcare inclus in pret -incalzire prin pardoseala -bucatarie inchisa -decomandat Compartimentare -HOL s.u. 4.94 mp. -BAIE s.u. 4.55 mp. -LIVING s.u. 18.13 mp. - BUCATARIE s.u. 10.03 mp. -DORMITOR s.u. 15.80 mp. -BALCON s.u. 6.14 mp. Sibiu Estate- Casa ta, povestea noastra
Citește mai mult Citește mai puțin
Confort 1 Decomandat 1 Balcon / Terasă / Logie Centrală proprie Încălzire prin pardoseală 1 Parcare

Detalii apartament

ID anunț: XFOU0001D Copiat! 272995609 Copiat!
Actualizat în: 11 Decembrie 2025
Suprafață construită: 64 mp
Nr. bucătării: 1
Nr. băi: 1
Structură rezistență: Cărămidă
Tip imobil: Bloc de apartamente
Tip tranzacție: De vânzare prin agent
Regim înălțime: P+3E
Modalitate de plată: Cash sau Credit

Utilități

Destinație
Rezidențial
Ușă intrare
Metal
Ferestre cu geam termopan
PVC
Utilități
Curent Apă Canalizare Gaze

Disponibilitate proprietate:

Imediat

Puncte de interes

Mijloace transport
bus-station
Ciresica
Stații autobuz aprox. 499 m
bus-station
Ciresica 2
Stații autobuz aprox. 506 m
bus-station
Interex
Stații autobuz aprox. 542 m
bus-station
Calea Cisnadiei
Stații autobuz aprox. 611 m
Școală
school
Gradinita cu program prelungit nr. 43
Școli aprox. 427 m
school
Scoala Generala Nr. 9
Școli aprox. 826 m
kindergarten
Gradinita Nr. 5
Gradinițe aprox. 921 m
university
Universitatea Romano-Germana Sibiu
Universități aprox. 1524 m
Recreere
sports-ground
Teren sportiv
Terenuri sport aprox. 321 m
supermarket
InterEx
Supermarket aprox. 351 m
park
Parc
Parcuri aprox. 544 m
pub
No. 6
Pub aprox. 950 m

Detalii despre preț și costuri

Prețul pe piață

Preț cerut: 112.000 €

Preț min. zonă
Preț max. zonă

73% dintre proprietățile similare ca zonă și nr. camere au prețul cerut mai mic. mai multe...

Bine de știut: prețul unei proprietăți este influențat și de alte caracteristici, cum ar fi: vechime, localizare, vecinătăți, suprafață, compartimentare, amenajări, dotări, etc. mai puțin...

Acces la informații premium după autentificare
Login Gratuit

Costuri cu achiziția

Fără credit
Credit ipotecar
Noua casă

i

Costuri adiționale mai puțin știute la achiziție: taxe notariale, comisioane etc.

Acces la informații premium după autentificare
Login Gratuit

Proprietăți similare

Apartament cu 2 camere semidecomandat în Hipodrom 3
102.500 €
Sibiu, Hipodrom 3
2 camere
47 mp
Parter
Apartament cu 2 camere semidecomandat, mobilat în Hipodrom 3
101.200 €
Sibiu, Hipodrom 3
2 camere
54 mp
Parter
Apartament cu 3 camere în Hipodrom 3
104.000 €
Sibiu, Hipodrom 3
3 camere
60 mp
Parter / 4

Detalii de contact

Sibiu Estate

Nicoleta Petra Consilier Imobiliar

Sibiu Estate
PRO

Abonează-te la newsletter să fii primul care primește cele mai noi recomandări de proprietăți și sfaturi de la experți.

CONTACT

Creează alertă

Salvează căutarea ca să primești pe email ultimele anunțuri publicate

Apartamente noi cu 2 camere de vânzare în zona Hipodrom 3, Sibiu