Apartament 2 camere, 40 mp si balcon - la cheie

97.000 €

Hipodrom 3, Sibiu

Nr. cam.:
2
Sup. utilă:
38,8 mp
Etaj:
3 / 3
An constr.:
2023
  • • Locație aproximativă

Descriere apartament

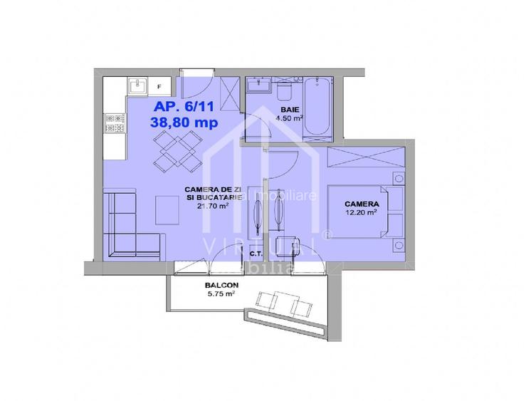
Va propunem spre vanzare un apartament cu 2 camere, 38.80 mp utili + balcon de 8 mp, amplasat in zona Doamna Stanca. Avantaje: - finisat la cheie; - centrala termica si incalzire in pardoseala; - constructie noua; - loc de parcare inclus in pret; - aproape de scoli, magazine, statii de autobuz. Compartimentare: - hol; - baie; - living cu bucatarie; - dormitor Apartamentul este finisat la cheie si se poate achizitiona atat din surse proprii, cat si cu credit. Iti doresti mai mult decat o simpla locuinta? Noi suntem aici pentru a-ți oferi cele mai bune soluții. Oferim servicii de DESIGN SI AMENAJARI INTERIOARE, PROPERTY MANAGEMENT, REGIM HOTELIER, HOME STAGING, VIRTUAL INVESTMENT, SERVICII DE CURATENIE.
Citește mai mult Citește mai puțin
Nedecomandat 1 Balcon / Terasă / Logie 1 Parcare

Detalii apartament

ID anunț: XDQ4102FB Copiat! 275392773 Copiat!
Actualizat în: 28 Aprilie 2026
Suprafață construită: 48 mp
Nr. bucătării: 1
Nr. băi: 1
Tip imobil: Bloc de apartamente
Tip tranzacție: De vânzare prin agent
Regim înălțime: P+3E
Modalitate de plată: Cash sau Credit

Utilități

Utilități
Curent Apă Canalizare CATV Gaze Telefon
Internet
Cablu
Amenajare străzi
Iluminat stradal Mijloace de transport în comun Asfaltate
Comision
standard

Disponibilitate proprietate:

Imediat

Puncte de interes

Mijloace transport
bus-station
Piata Rahova 1
Stații autobuz aprox. 847 m
bus-station
Interex
Stații autobuz aprox. 900 m
bus-station
Piata Rahova 2
Stații autobuz aprox. 922 m
bus-station
Piata Rahova 3
Stații autobuz aprox. 936 m
Școală
school
Scoala Generala Nr. 9
Școli aprox. 1016 m
school
Gradinita cu program prelungit nr. 43
Școli aprox. 1035 m
kindergarten
Gradinita Nr. 42
Gradinițe aprox. 1390 m
university
Facultatea de Stiinte Agroalimentare
Universități aprox. 1786 m
Recreere
restaurant
Yummi Yang
Restaurant aprox. 611 m
supermarket
Shopping City Sibiu
Supermarket aprox. 680 m
sports-ground
Teren sportiv
Terenuri sport aprox. 871 m
park
Kinderland
Parcuri aprox. 1289 m

Detalii despre preț și costuri

Prețul pe piață

Preț cerut: 97.000 €

Preț min. zonă
Preț max. zonă

98% dintre proprietățile similare ca zonă și nr. camere au prețul cerut mai mic. mai multe...

Bine de știut: prețul unei proprietăți este influențat și de alte caracteristici, cum ar fi: vechime, localizare, vecinătăți, suprafață, compartimentare, amenajări, dotări, etc. mai puțin...

Acces la informații premium după autentificare
Login Gratuit

Costuri cu achiziția

Fără credit
Credit ipotecar
Noua casă

i

Costuri adiționale mai puțin știute la achiziție: taxe notariale, comisioane etc.

Acces la informații premium după autentificare
Login Gratuit

Proprietăți similare

Apartament cu 2 camere decomandat în Hipodrom 3
97.500 €
Sibiu, Hipodrom 3
2 camere
49 mp
Etaj 1 / 6
Apartament cu 2 camere semidecomandat în Hipodrom 3
102.500 €
Sibiu, Hipodrom 3
2 camere
47 mp
Parter
Apartament cu 2 camere decomandat în Hipodrom 3
100.000 €
Sibiu, Hipodrom 3
2 camere
61 mp
Parter / 4

Detalii de contact

Virtual Imobiliare

Popa Sergiu Manager

Virtual Imobiliare

Abonează-te la newsletter să fii primul care primește cele mai noi recomandări de proprietăți și sfaturi de la experți.

CONTACT

Creează alertă

Salvează căutarea ca să primești pe email ultimele anunțuri publicate

Apartamente noi cu 2 camere de vânzare în zona Hipodrom 3, Sibiu