Apartament decomandat cu 2 camere-s.utila 52.57 mp, si gradina

124.500 €

Hipodrom 3, Sibiu

Nr. cam.:
2
Sup. utilă:
52,57 mp
Etaj:
Parter / 3
An constr.:
2025 (Finalizată)
  • • Locație aproximativă

Descriere apartament

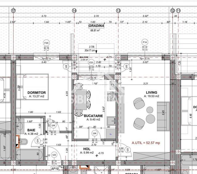
Apartament de vanzare cu 2 camere, gradina, loc de parcare - Compartimentare ideala Avantaje - accesul se fac pe un drum privat prevazut cu bariera - constructie noua -loc de parcare inclus in pret -incalzire prin pardoseala Compartimentare -HOL s.u. 5.99 mp. -BAIE s.u. 4.38 mp. -LIVING s.u 19.53 mp. -DORMITOR s.u. 13..27 mp. -BALCON s.u. 2.40mp. - GRADINA 68.81 💡 Dotări moderne: ✔️ Încălzire în pardoseală ✔️ Geamuri termopan cu 3 foi de sticlă – izolație excelentă ✔️ Centrală termică în condensare – eficiență ridicată și consum redus Localizare: Zona foarte buna, langa Dedeman si Shopping City Acces rapid la magazine, transport, scoli, farmacii Avantaje: Compartimentare ideala Bloc modern, linistit Perfect pentru familie sau investitie Comision 0 Sibiu Estate- Casa ta, povestea noastra
Citește mai mult Citește mai puțin
Confort 1 Semidecomandat 1 Balcon / Terasă / Logie Centrală proprie Încălzire prin pardoseală 1 Parcare

Detalii apartament

ID anunț: XFOU0008O Copiat! 275393350 Copiat!
Actualizat în: 06 Aprilie 2026
Suprafață construită: 63.04 mp
Nr. bucătării: 1
Nr. băi: 1
Structură rezistență: Cărămidă
Tip imobil: Bloc de apartamente
Tip tranzacție: De vânzare prin agent
Regim înălțime: P+3E
Modalitate de plată: Cash sau Credit

Utilități

Destinație
Rezidențial
Podele
Dușumea
Ușă intrare
Metal
Ferestre cu geam termopan
PVC
Contorizare
Apometre Contor gaz
Facilități imobil
Interfon
Utilități
Curent Apă Canalizare Gaze
Amenajare străzi
Iluminat stradal Mijloace de transport în comun Asfaltate

Disponibilitate proprietate:

Imediat

Puncte de interes

Mijloace transport
bus-station
Interex
Stații autobuz aprox. 765 m
bus-station
Piata Rahova 1
Stații autobuz aprox. 877 m
bus-station
Ciresica
Stații autobuz aprox. 978 m
bus-station
Ciresica 2
Stații autobuz aprox. 982 m
Școală
school
Gradinita cu program prelungit nr. 43
Școli aprox. 812 m
school
Scoala Generala Nr. 9
Școli aprox. 974 m
kindergarten
Gradinita Nr. 42
Gradinițe aprox. 1316 m
university
Facultatea de Stiinte Agroalimentare
Universități aprox. 1766 m
Recreere
supermarket
InterEx
Supermarket aprox. 668 m
sports-ground
Teren sportiv
Terenuri sport aprox. 763 m
restaurant
Pizzeria Insieme
Restaurant aprox. 977 m
park
Parc
Parcuri aprox. 1022 m

Istoricul prețurilor

Acces la informații premium după autentificare
Login Gratuit

Detalii despre preț și costuri

Prețul pe piață

Preț cerut: 124.500 €

Preț min. zonă
Preț max. zonă

93% dintre proprietățile similare ca zonă și nr. camere au prețul cerut mai mic. mai multe...

Bine de știut: prețul unei proprietăți este influențat și de alte caracteristici, cum ar fi: vechime, localizare, vecinătăți, suprafață, compartimentare, amenajări, dotări, etc. mai puțin...

Acces la informații premium după autentificare
Login Gratuit

Costuri cu achiziția

Fără credit
Credit ipotecar
Noua casă

i

Costuri adiționale mai puțin știute la achiziție: taxe notariale, comisioane etc.

Acces la informații premium după autentificare
Login Gratuit

Proprietăți similare

Apartament cu 2 camere, mobilat în Hipodrom 3
119.999 €
Sibiu, Hipodrom 3
2 camere
54 mp
Etaj 3
Apartament cu 3 camere semidecomandat, mobilat în Hipodrom 3
131.500 €
Sibiu, Hipodrom 3
3 camere
77 mp
Parter
Apartament cu 3 camere decomandat în Hipodrom 3
122.000 €
Sibiu, Hipodrom 3
3 camere
61 mp
Etaj 1

Detalii de contact

Sibiu Estate

Nicoleta Petra Consilier Imobiliar

Sibiu Estate
PRO

Abonează-te la newsletter să fii primul care primește cele mai noi recomandări de proprietăți și sfaturi de la experți.

CONTACT

Creează alertă

Salvează căutarea ca să primești pe email ultimele anunțuri publicate

Apartamente noi cu 2 camere de vânzare în zona Hipodrom 3, Sibiu