Apartament cu 3 camere 2 bai si 2 balcoane etaj 1 zona Doamna Stanca

149.435 €

Hipodrom 3, Sibiu

Nr. cam.:
3
Sup. utilă:
78 mp
Etaj:
1 / 3
An constr.:
2025 (În construcție)
  • • Comision 0%
  • • Locație aproximativă
  • • Vizionare prin apel video

Descriere apartament

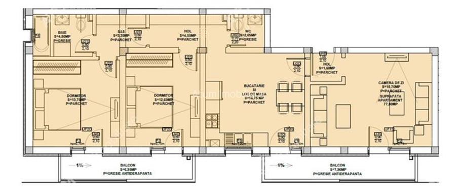
De vanzare in zona Doamna Stanca din Selimbar apartament cu 3 camere decomandate, 2 bai, 2 balcoane si loc propriu de parcare, situat la etajul intermediar 1 din 3 al unui imobil constructie noua 2025 care face parte dintr-un ansamblu rezidential format din 8 blocuri cu regim de inaltime Parter+3 Etaje+Pod care dispune de locuri de parcare atat pentru locatari cat si pentru vizitatori, spatii verzi comune si gradini proprii dedicate apartamentelor de la parter, loc de joaca pentru copii si spatii comerciale situate in imobilele pozitionate la strada Doamna Stanca. Din punct de vedere structural imobilele sunt edificate pe structura din beton si zidarie din caramida cu grosimea de 30 cm, anvelopare termica exterioara realizata din polistiren expandat de 10 cm cu densitatea EPS 80 si zugravit cu decorativa siliconata de exterior, usa de acces din PVC cu inchidere electro-magnetica si interfon, acoperis tip sarpanta cu invelitoare din tigla marca Bramac, plansee din beton intre etaje inclusiv intre etajul 3 si pod. Apartamentul are 77,80 mp utili, acesta fiind compus din camera de zi 18.70 mp, cele doua dormitoare dintre care cel matrimonial de 13,70 mp iar cel secundar 12,60 mp, bucataria separata cu dinning de 16,75 mp, 2 bai iar cea principala de 4.50 mp dotata cu geam pentru aerisirea naturala si cada si o toaleta de serviciu 2.05 mp, hol de acces 1,60 mp si un alt hol de 7,90 mp prin intermediul caruia se face accesul in camere si unde poate fi pozitionat un dressing generos. Separat de suprafata utila a apartamentului acesta dispune si de 2 balcoane, unul de 7.90 mp in care accesul se face din camera de zi si bucatarie si un altul de 6,95 in care se face accesul din dormitoare. Parcarea se realizeaza pe propriul loc de parcare situat in fata blocului. Apartamentul se preda la stadiul de alb si dispune de urmatoarele dotari si finisaje: -Usa de metal anti-efractie la intrarea in apartament placata cu MDF; -Pereti tencuiti ( tencuiala pe baza de var-ciment ), gletuiti si zugraviti cu lavabila alba in 2 straturi; -Pardoseli amenajate cu sapa autonivelanta semiuscata elicopterizata pregatite pentru parchet-gresie; -Tamplarie PVC marca Sallamander cu 5 camere si 3 foi de sticla cu Low-E, glafuri exterioare de aluminiu si PVC interior; -Centrala proprie pe gaz marca Bosch in condensare si incalzire in pardoseala; -Distribuitor pentru instalatia de incalzire; - Racorduri apa-canal in bucatarie si bai; - Racord gaz metan la bucatarie; -Instalatii electrice trase pe pozitie cu tablou general si sigurante pentru consumatorii de putere; -Instalatii pentru TV si internet trase pe pozitie. Valoarea apartamentului la plata unui avans de 15% este de 149.435 TVA Inclus, se poate achizitiona si prin credit ipotecarID intern: 3007.
Citește mai mult Citește mai puțin
Confort 1 Decomandat 2 Balcoane / Terase / Logii Centrală proprie Încălzire prin pardoseală 1 Parcare

Detalii apartament

ID anunț: XC74101V8 Copiat! 270664364 Copiat!
Actualizat în: 22 Aprilie 2026
Suprafață utilă totală: 78 mp
Suprafață construită: 108 mp
Nr. bucătării: 1
Nr. băi: 2
Structură rezistență: Beton
Tip imobil: Bloc de apartamente
Regim înălțime: P+3E

Utilități

Destinație
Rezidențial
Pereți
Vopsea lavabilă
Ușă intrare
Metal
Izolații termice
Exterior
Ferestre cu geam termopan
PVC
Contorizare
Apometre Contor gaz
Utilități
Apă Curent Gaze Canalizare Telefon CATV
Amenajare străzi
Asfaltate Iluminat stradal
Comision
0%

Puncte de interes

Mijloace transport
bus-station
Interex
Stații autobuz aprox. 288 m
bus-station
Piata Rahova 1
Stații autobuz aprox. 455 m
bus-station
Piata Rahova 3
Stații autobuz aprox. 565 m
bus-station
Calea Cisnadiei
Stații autobuz aprox. 605 m
Școală
school
Gradinita cu program prelungit nr. 43
Școli aprox. 419 m
school
Scoala Generala Nr. 9
Școli aprox. 498 m
kindergarten
Gradinita Nr. 42
Gradinițe aprox. 833 m
university
Facultatea de Stiinte Agroalimentare
Universități aprox. 1286 m
Recreere
supermarket
InterEx
Supermarket aprox. 268 m
sports-ground
Teren sportiv
Terenuri sport aprox. 445 m
park
Kinderland
Parcuri aprox. 664 m
pub
No. 6
Pub aprox. 897 m

Detalii despre preț și costuri

Prețul pe piață

Preț cerut: 149.435 €

Preț min. zonă
Preț max. zonă

60% dintre proprietățile similare ca zonă și nr. camere au prețul cerut mai mic. mai multe...

Bine de știut: prețul unei proprietăți este influențat și de alte caracteristici, cum ar fi: vechime, localizare, vecinătăți, suprafață, compartimentare, amenajări, dotări, etc. mai puțin...

Insight premium disponibil după login

Costuri cu achiziția

Fără credit
Credit ipotecar
Noua casă

i

Costuri adiționale mai puțin știute la achiziție: taxe notariale, comisioane etc.

Insight premium disponibil după login

Proprietăți similare

Apartament cu 3 camere în Hipodrom 3
162.500 €
Sibiu, Hipodrom 3
3 camere
60 mp
Etaj 2
Apartament cu 3 camere semidecomandat, mobilat în Hipodrom 3
162.500 €
Sibiu, Hipodrom 3
3 camere
60 mp
Etaj 2
Apartament cu 3 camere semidecomandat în Hipodrom 3
134.900 €
Sibiu, Hipodrom 3
3 camere
77 mp
Parter / 4

Detalii de contact

Atum Imobiliare

Ureche Pavel Director Vanzari

Atum Imobiliare
PRO

Abonează-te la newsletter să fii primul care primește cele mai noi recomandări de proprietăți și sfaturi de la experți.

CONTACT

Creează alertă

Salvează căutarea ca să primești pe email ultimele anunțuri publicate

Apartamente cu 3 camere de vânzare în zona Hipodrom 3, Sibiu