Apartament tip penthouse cu 3 camere in Turnisor Sibiu

188.500 €

Industrial Vest, Sibiu

Nr. cam.:
3
Sup. utilă:
100 mp
Etaj:
2 / 2
An constr.:
2024 (Finalizată)
  • • Locație aproximativă
  • • Vizionare prin apel video

Descriere apartament

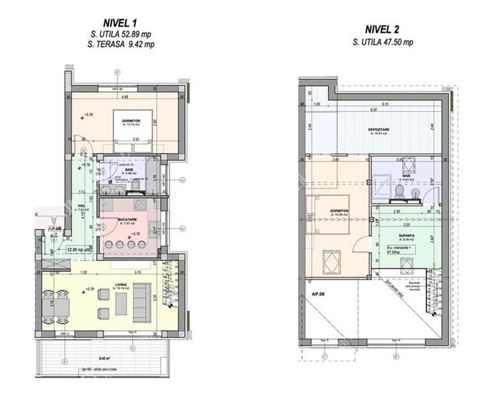
Apartament tip penthouse cu 3 camere decomandate, acesta este situat intr-un ansamblu rezidential nou din Turnisor, Sibiu. Complexul este format din blocuri tip vila, cu regim de inaltime P+2, avand doar 2 apartamente pe nivel, ceea ce asigura un ambient linistit si exclusivist. Locuinta are o suprafata utila de 100.4 mp si este compartimentat eficient: Living – 19.19 mp, Dormitor – 13.72 mp, Bucatarie separata – 7.57 mp, Baie (cu geam pentru aerisire) – 4.98 mp, Hol (spatiu pentru cuier si pantofar) – 7.43 mp, la etaj avem al doilea dormitor 15.58 mp, care beneficiaza de dressing 15.81 mp, baie 6.62 mp si hol 9.09 mp. Pe langa suprafata utila, acesta mai beneficiaza si de o Terasa – 9.42 mp. ln plus, apartamentul dispune de loc de parcare propriu, marcat si delimitat. Predarea apartamentelor se face la cheie sau bineinteles contra cost se pot preda si mobilate utilate, la stadiul de cheie beneficiaza de urmatoarele dotari premium: ✔ Incalzire în pardoseala ✔ Izolatie termica cu vata bazaltica ✔ Fatada decorativa cu sistem complet de la Caparol ✔ Granit pe casa scarii ✔ Balcoane generoase, hidroizolate si finisate cu granit ✔ Tamplarie PVC (5 camere, 3 foi de sticla) ✔ Jaluzele exterioare electrice pentru toate apartamentele ✔ Sistem de iluminat exterior montat la fiecare balcon ✔ Gresie, faianta, parchet și obiecte sanitare montate ✔ Usa metalica antiefractie la intrare Apartamentul este situat intr-o zona cu acces rapid catre centrul orasului Sibiu, oferind în acelasi timp o priveliste incantatoare asupra imprejurimilor. Valoarea de achizitie, la cheie, al acestui apartament este de 156.000 euro la care se adauga TVA acceptandu-se si credit ipotecar. ID intern: 2637
Citește mai mult Citește mai puțin
Confort 1 Decomandat 1 Balcon / Terasă / Logie Centrală proprie Încălzire prin pardoseală 1 Parcare

Detalii apartament

ID anunț: XC74101O0 Copiat! 253197214 Copiat!
Actualizat în: 09 Aprilie 2026
Suprafață utilă totală: 100 mp
Suprafață construită: 120 mp
Nr. bucătării: 1
Nr. băi: 2
Structură rezistență: Beton
Tip imobil: Casă/Vilă
Regim înălțime: P+2E

Utilități

Destinație
Rezidențial
Pereți
Faianță Vopsea lavabilă
Podele
Parchet Gresie
Ușă intrare
Metal
Izolații termice
Exterior
Ferestre cu geam termopan
PVC
Contorizare
Apometre Contor gaz
Facilități imobil
Videointerfon
Utilități
Apă Curent Gaze Canalizare CATV
Amenajare străzi
Asfaltate Iluminat stradal

Vecinătăți:

Scoala/gradinita, Supermarket, Zona comerciala, Autobuz

Puncte de interes

Mijloace transport
bus-station
Ambient 1
Stații autobuz aprox. 340 m
bus-station
Metro
Stații autobuz aprox. 342 m
bus-station
Brandl 2
Stații autobuz aprox. 450 m
bus-station
Brandl 1
Stații autobuz aprox. 456 m
Școală
school
Scoala Gimnaziala Turnisor
Școli aprox. 508 m
kindergarten
Hermania
Gradinițe aprox. 541 m
school
Scoala Nr. 1
Școli aprox. 1759 m
Recreere
supermarket
Metro
Supermarket aprox. 354 m
restaurant
La Sepp
Restaurant aprox. 446 m
park
Parc
Parcuri aprox. 455 m
sports-ground
Teren sportiv
Terenuri sport aprox. 1420 m

Detalii despre preț și costuri

Prețul pe piață

Preț cerut: 188.500 €

Preț min. zonă
Preț max. zonă

52% dintre proprietățile similare ca zonă și nr. camere au prețul cerut mai mare. mai multe...

Bine de știut: prețul unei proprietăți este influențat și de alte caracteristici, cum ar fi: vechime, localizare, vecinătăți, suprafață, compartimentare, amenajări, dotări, etc. mai puțin...

Insight premium disponibil după login

Costuri cu achiziția

Fără credit
Credit ipotecar
Noua casă

i

Costuri adiționale mai puțin știute la achiziție: taxe notariale, comisioane etc.

Insight premium disponibil după login

Proprietăți recomandate

Detalii de contact

Atum Imobiliare

George Cumpanasoiu Consultant imobiliar

Atum Imobiliare
PRO

Abonează-te la newsletter să fii primul care primește cele mai noi recomandări de proprietăți și sfaturi de la experți.

CONTACT

Creează alertă

Salvează căutarea ca să primești pe email ultimele anunțuri publicate

Apartamente noi cu 3 camere de vânzare în zona Industrial Vest, Sibiu