Apartamente 2 camere \ Selimbar \ Sibiu

98.500 €

Mihai Viteazul, Sibiu

Nr. cam.:
2
Sup. utilă:
49,05 mp
Etaj:
6 / 6
An constr.:
2024 (În construcție)
  • • Comision 0%
  • • Locație aproximativă

Descriere apartament

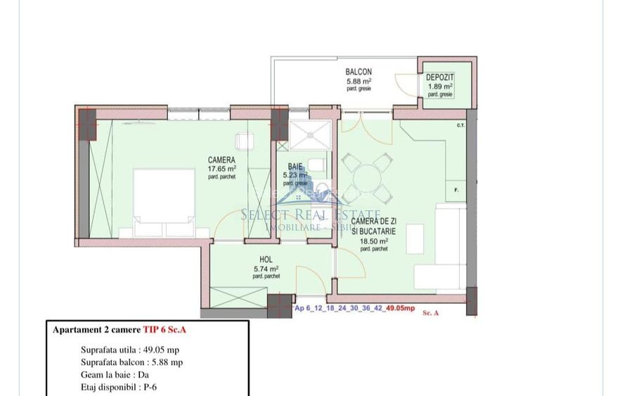
Select imobiliare are placerea de a va propune un nou proiect de apartamente situat in Selimbar Strada Doamna Stanca zona magazinului Dedeman. Imobilele sunt situate la 5 minute de Centrele Comerciale de la Shopping City Sibiu magazinul Lidl, Mega Image si nu departe de Piata Rahovei. Acest ansamblu rezidential reprezinta o oportunitate oferita pentru a locui intr o zona buna care asigura in acelasi timp atat linistea si accesul facil catre mijloacele de transport in comun cat si un pret foarte competitiv cu un randament investitional foarte bun. Blocul de locuinte este edificat in regim de inaltime P+6 avand in componenta sa garsoniere si apartamente de 2 si 3 camere cu balcoane terase (chiar si apartamentele situate la parter) si parcare supraterana/subterana. Fiecare apartament din acest proiect se va preda finisat la cheie si va beneficia de usa metalica la intrare toate utilitatile sapa autonivelanta si elicopterizata centrala proprie in condensatie incalzire in pardoseala geamuri termopan in 6 camere cu 3 foi de sticla gresie faianta parchet usi de interior obiecte sanitare prize si intrerupatoare Standard. Acest Complex Rezidential este ideal atat pentru clientii care vor sa investeasca in Sibiu cu un randament bun si sigur dar mai ales si pentru clientii care doresc sa locuiasca acolo impreuna cu familia. Tipul de apartament propus spre vanzare este cu 2 camere total decomandat cu predare la alb si un loc de parcare inclus in pret avand o suprafata utila de 49.05 mp. Disponibilitate [ Parter si la Etajul 6 ] Este compus astfel: - hol de acces 5.74 mp,  living + bucatarie 18.50 mp, dormitor 17.65 mp, baie 5.23 mp, balcon 5.88 mp, spatiu depozitare din balcon 1.89 mp. Pret apartament La Alb: 98.500 euro \ TVA inclus Daca sunteti interesati de anumite tipuri de imobile cum ar fi: apartamente case terenuri spatii comerciale \ industriale \ birouri in diferite zone ale orasului  ( fie vanzari sau inchirieri ) si ofertele noastre vi se par interesante; nu ezitati sa ne contactati \ scrieti pe urmatorul nr. de telefon \ whatsapp:
0758 **** Vezi tot numărul
 sau pe site-ul oficial al agentiei      ; doar in acest fel puteti vedea toate ofertele noastre din portofoliul agentiei sau pe care vi le putem procura in urma colaborarii pe care o avem cu alti colegi de breasla si dezvoltatori imobiliari. Departament Marketing si Secretariat pentru vizionari imobiliare:
0758 **** Vezi tot numărul
  Departament Financiar Credite si Asigurari - consultanta gratuita. Va multumim ca alegeti Select imobiliare Sibiu !
Citește mai mult Citește mai puțin
Confort 1 Decomandat Nemobilat 1 Balcon / Terasă / Logie Centrală proprie Încălzire prin pardoseală 1 Parcare 1 Parcare / Garaj / Parcare subterană

Detalii apartament

ID anunț: XB8V10069 Copiat! 266315982 Copiat!
Actualizat în: 21 Februarie 2026
Suprafață construită: 58.86 mp
Nr. bucătării: 1
Nr. băi: 1
Structură rezistență: Cărămidă
Tip imobil: Bloc de apartamente
Regim înălțime: P+6E

Utilități

Destinație
Rezidențial
Pereți
Vopsea lavabilă Faianță
Podele
Parchet Gresie
Ușă intrare
Metal
Uși interior
Celulare
Izolații termice
Exterior Bloc izolat termic
Ferestre cu geam termopan
PVC
Contorizare
Apometre
Alte spații utile
Debara
Facilități imobil
Interfon Lift
Utilități
Curent Apă Canalizare Gaze CATV
Amenajare străzi
Asfaltate Iluminat stradal

Certificat energetic:

Clasa energetică: A
Consumul total specific de energie primară: 126 kWh
Indicele de emisii echivalent CO2: 26

Disponibilitate proprietate:

imediat

Puncte de interes

Mijloace transport
bus-station
Ciresica
Stații autobuz aprox. 676 m
bus-station
Ciresica 2
Stații autobuz aprox. 687 m
bus-station
Cimitir 1
Stații autobuz aprox. 781 m
bus-station
Siretului 2
Stații autobuz aprox. 789 m
Școală
kindergarten
Gradinita Nr. 5
Gradinițe aprox. 786 m
school
Gradinita cu program prelungit nr. 43
Școli aprox. 844 m
kindergarten
FasTracKids
Gradinițe aprox. 1443 m
university
Universitatea Romano-Germana Sibiu
Universități aprox. 1865 m
Recreere
park
Parc
Parcuri aprox. 696 m
sports-ground
Teren sportiv
Terenuri sport aprox. 711 m
supermarket
Profi
Supermarket aprox. 749 m
bar
Bar Cesar
Bar aprox. 844 m

Detalii despre preț și costuri

Prețul pe piață

Preț cerut: 98.500 €

Preț min. zonă 64.000 €
Preț max. zonă 126.500 €

62% dintre proprietățile similare ca zonă și nr. camere au prețul cerut mai mic. mai multe...

Bine de știut: prețul unei proprietăți este influențat și de alte caracteristici, cum ar fi: vechime, localizare, vecinătăți, suprafață, compartimentare, amenajări, dotări, etc. mai puțin...

Costuri cu achiziția

Fără credit
6.038 RON
Credit ipotecar
7.569 RON
Noua casă
642 RON+ taxe notariale

i

Costuri adiționale mai puțin știute la achiziție: taxe notariale, comisioane etc.

Proprietăți recomandate

Detalii de contact

Select Real Estate

Remus Nan Broker imobiliar

Select Real Estate
PRO

Abonează-te la newsletter să fii primul care primește cele mai noi recomandări de proprietăți și sfaturi de la experți.

CONTACT

Creează alertă

Salvează căutarea ca să primești pe email ultimele anunțuri publicate

Apartamente cu 2 camere de vânzare în zona Mihai Viteazul, Sibiu