3

Apartament 2 camere etaj 3 cu balcon zona bd. Mihai Viteazu

97.490 €

Mihai Viteazul, Sibiu

Nr. cam.:
2
Sup. utilă:
58 mp
Etaj:
3 / 17
An constr.:
2000 (Finalizată)
  • • Locație aproximativă
  • • Vizionare prin apel video

Descriere apartament

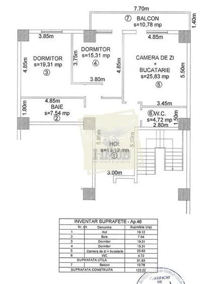
Agentia Imobiliara I-Imob va propune spre vanzare un apartament decomandat cu 2 camere, cu o suprafata utila de 58 mp utili cu balcon de 7 mp, situat pe Bd. Mihai Viteazu, pretabil atat locuinta cat si investitie. Imobilul este situat intr-o zona foarte bine cotata pe piata imobiliara, avand in apropiere toate punctele de interes socilal, precum: Shopping City Mall, banci, scoli,gradinite,piata Rahovei etc. Imobilul este finisat la cheie, dupa cum reiese din poze, bucataria mobilata si utilata, perdele si draperii in camere. Suprafata totala de 58 mp utili distribuiti astfel: - dormitor - living foarte luminos - bucatarie mobilata - baie - balcon 7 mp, cu iesire din living - hol Locuința beneficiază de o compartimentare practică, spații luminoase și o atmosferă primitoare, oferind confort și funcționalitate. Poziționarea asigură acces rapid către puncte de interes. Apartamentul reprezintă o oportunitate excelentă pentru cei care își doresc un cămin echilibrat sau o investiție sigură pe termen lung. Pentru mai multe informații și programarea unei vizionări, contactați agenția I-Imob. Pret 97.500 Euro TVA inclus
Citește mai mult Citește mai puțin
Confort 1 Decomandat Parțial mobilat 1 Balcon / Terasă / Logie Centrală proprie

Detalii apartament

ID anunț: XC3N1046G Copiat! 274917613 Copiat!
Actualizat în: 22 Mai 2026
Suprafață utilă totală: 58 mp
Suprafață construită: 70 mp
Nr. bucătării: 1
Nr. băi: 1
Structură rezistență: Altele
Tip imobil: Bloc de apartamente
Tip tranzacție: De vânzare prin agent
Regim înălțime: P+17E
Modalitate de plată: Cash sau Credit

Utilități

Destinație
Rezidențial
Pereți
Faianță Vopsea lavabilă
Podele
Parchet Gresie
Ușă intrare
Metal
Uși interior
Lemn
Izolații termice
Exterior
Ferestre cu geam termopan
Lemn
Contorizare
Apometre Contor gaz
Bucătărie
Mobilată
Electrocasnice
Aragaz Hotă Hotă
Facilități imobil
Lift Interfon
Utilități
Curent Gaze
Internet
Fibră optică
Amenajare străzi
Asfaltate

Certificat energetic:

Clasa energetică: A

Vecinătăți:

Scoala/gradinita, Mall, Supermarket, Banca, Zona comerciala

Puncte de interes

Mijloace transport
bus-station
Piata Rahova 2
Stații autobuz aprox. 136 m
bus-station
Piata Rahova 1
Stații autobuz aprox. 200 m
bus-station
Piata Rahova 3
Stații autobuz aprox. 203 m
bus-station
Mihai Viteazu
Stații autobuz aprox. 388 m
Școală
school
Scoala generala nr. 21
Școli aprox. 357 m
school
Scoala Generala Nr. 9
Școli aprox. 421 m
kindergarten
Gradinita Nr. 42
Gradinițe aprox. 752 m
university
Facultatea de Stiinte Agroalimentare
Universități aprox. 1046 m
Recreere
supermarket
Lidl
Supermarket aprox. 90 m
sports-ground
Teren sportiv
Terenuri sport aprox. 333 m
restaurant
Korona
Restaurant aprox. 569 m
park
Parc
Parcuri aprox. 752 m

Istoricul prețurilor

Acces la informații premium după autentificare
Login Gratuit

Detalii despre preț și costuri

Prețul pe piață

Preț cerut: 97.490 €

Preț min. zonă
Preț max. zonă

74% dintre proprietățile similare ca zonă și nr. camere au prețul cerut mai mare. mai multe...

Bine de știut: prețul unei proprietăți este influențat și de alte caracteristici, cum ar fi: vechime, localizare, vecinătăți, suprafață, compartimentare, amenajări, dotări, etc. mai puțin...

Acces la informații premium după autentificare
Login Gratuit

Costuri cu achiziția

Fără credit
Credit ipotecar
Noua casă

i

Costuri adiționale mai puțin știute la achiziție: taxe notariale, comisioane etc.

Acces la informații premium după autentificare
Login Gratuit

Proprietăți similare

Apartament cu 2 camere semidecomandat, mobilat în Mihai Viteazul
89.000 €
Sibiu, Mihai Viteazul
2 camere
39 mp
Etaj 3
Apartament cu 3 camere decomandat, mobilat în Mihai Viteazul
93.500 €
Sibiu, Mihai Viteazul
3 camere
70 mp
Mansardă / 5
Apartament cu 2 camere decomandat, mobilat în Mihai Viteazul
94.900 €
Sibiu, Mihai Viteazul
2 camere
47 mp
Etaj 10

Detalii de contact

I-IMOB SIB SRL

Adrian Nedescu

I-IMOB SIB SRL
PRO

Abonează-te la newsletter să fii primul care primește cele mai noi recomandări de proprietăți și sfaturi de la experți.

CONTACT

Creează alertă

Salvează căutarea ca să primești pe email ultimele anunțuri publicate

Apartamente cu 2 camere de vânzare în zona Mihai Viteazul, Sibiu