1

Penthouse la cheie de 3 camere cu 2 bai si terasa 76 mp zona Veterani

200.000 €

Terezian, Sibiu

Nr. cam.:
3
Sup. utilă:
108,2 mp
Etaj:
3 / 3
An constr.:
2024 (În construcție)
  • • Comision 0%
  • • Locație aproximativă
  • • Vizionare prin apel video

Descriere apartament

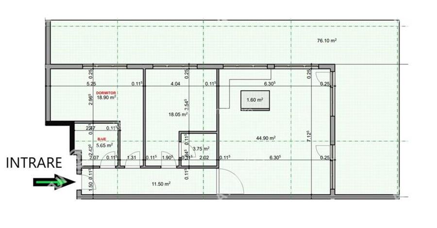
Comision 0 la achizitie! De vanzare in zona Veterani din Sibiu, penthouse finisat la cheie cu 3 camere decomandate, 2 bai in suprafata totala de 207 mp si terasa generoasa de 76.10 mp, pozitionat la Etajul Retras cu doar 4 apartamente pe palier al unui imobil constructie noua 2024. Imobilul in care se afla acest apartament face parte dintr-un complex rezidential nou unde toate imobilele au regimul de inaltime S+P+2 Etaje+ER, edificarea acestora va fi pe o structura de cadre tip dala din beton armat, zidarie din caramida de 30 cm, termoizolatie exterioara zugravita cu vopsea decorativa siliconata. Toate imobilele cuprinse in acest complex detin ascensoare electrice siletioase de ultima generatie, propriile locuri de parcare supraterane si subterane, spatii verzi care inconjoara imobilele iar in centrul ansamblului va fi amenajata o piateta amenajata cu zona verde si un loc de joaca pentru copii. Apartamentul detine suprafata utila de 108.20 mp utili, acesta fiind compus din camera de zi tip open-space cu bucataria de 44.90 mp care pot fi separate, dormitorul matrimonial de 18.05 care detine propria baie 3.75 mp, dormitorul secundar de 18.90 mp, baia principala de 5,65 mp si holul de 11.50 mp unde poate fi amenajata zona de primire cu pantofar si cuier. Separat de suprafata utila a apartamentului acesta detine si terasa de 76.10 mp in care accesul se poate face din camera de zi si bucatarie. Parcarea se realizeaza pe propriul loc de parcare subteran. Parcarea se realizeaza pe locurile de parcare supraterane disponibile la costul suplimentar de 4.000 euro sau locuri de parcare subterane disponibile la 8.000 euro. Apartamentul se preda la stadiul de cheie, iar daca alegeti sa achizitionati in stadiul actual de constructie aveti posibilitatea de a va personaliza finisajele interioare, conform gusturilor dumneavoastra, intr-un buget convenit. Finisaje standard: - Usa de metal la intrarea în apartamente placate cu panou MDF; - Pereti tencuiti ( tencuieli pe baza de var-ciment ), gletuiti si zugraviti in lavabila alba; - tamplarie PVC cu 5 camere si 3 foi de sticla ( lowe-float-lowe solar ), feronerie Maco Multimatic si glafuri interior-exterior; - incalzire prin pardoseală ( sistem Innoflow cu distribuitor Inoflou, placa termoizolatoare innotack si banda perimetrala ), centrala termica proprie in condensatie si detector gaz. - sisteme elecrice din cupru trase prin copex cu tablou general si sigurante pentru consumatorii de putere marca Schneider. - Instalatii pentru curentii slabi Internet, Telefon, TV. - Racorduri apa-canal in bucatarie si bai. - Racord gaz metan la bucatarie; - Rupere termica intre balcon si placa din profil de 10 cm montat la tamplarie si polistirent extrudat. - Instalații pentru gaz, curent electric si apa, contorizare individuala si contoare montate. Finisaje la alegerea dumneavoastra: gresie și faianță în bucătărie, gresie și faianță în băi, obiecte sanitare ( cabina de dus cada, lavoar, vas wc, baterii cada lavoar ), parchet laminat, uși de interior, prize si intrerupatoare. Casa scarii dispune de: lift, acces securizat, scarile placate cu gresie antiderapanta, mana curenta din teava rectangulara, plafoniere cu senzori de miscare si zugraveli in lavabila alba. Spatile comune exterioare respectiv curtea complexului dispune de spații verzi amenajate cu gazon, arbuști și plante decorative .Locurile de parcare sunt supraterane si subterane, delimitate si pavate cu dale din beton. Aleile pietonale sunt pavate cu dale din beton si delimitate de spatii verzi. In curtea interioara va fi amenajat un loc privat de joaca pentru copii, amenajat cu nisip, topogan, leagane si banci. Pretul de achizitie a locuintei la un avans de 15% din suma este de 200.000 euro, se poate achizitiona si prin credit ipotecar ID intern: 2236.
Citește mai mult Citește mai puțin
Confort 1 Decomandat Nemobilat Centrală proprie Încălzire prin pardoseală

Detalii apartament

ID anunț: XC74101FK Copiat! 213899347 Copiat!
Actualizat în: 11 Mai 2026
Suprafață utilă totală: 108.2 mp
Suprafață construită: 207 mp
Nr. bucătării: 1
Nr. băi: 2
Structură rezistență: Altele
Tip imobil: Bloc de apartamente
Tip tranzacție: De vânzare prin agent
Regim înălțime: P+3E
Modalitate de plată: Cash sau Credit

Utilități

Destinație
Rezidențial
Pereți
Faianță Vopsea lavabilă
Podele
Parchet Gresie
Ușă intrare
Metal
Izolații termice
Exterior
Ferestre cu geam termopan
PVC
Contorizare
Apometre Contor gaz
Alte spații utile
Terasă
Facilități imobil
Lift
Utilități
Apă Curent Gaze Canalizare Telefon CATV
Amenajare străzi
Asfaltate Iluminat stradal
Comision
0%

Puncte de interes

Mijloace transport
bus-station
Klagenfurt
Stații autobuz aprox. 494 m
bus-station
Landshut
Stații autobuz aprox. 505 m
bus-station
Piata Tiglari 1
Stații autobuz aprox. 701 m
bus-station
Piata Tiglari 2
Stații autobuz aprox. 712 m
Școală
school
Scoala Generala Nr. 23
Școli aprox. 658 m
school
Scoala Generala Nr. 18
Școli aprox. 1427 m
kindergarten
Gradinita Nr. 18
Gradinițe aprox. 1861 m
kindergarten
Gradinita Nr. 19
Gradinițe aprox. 1947 m
Recreere
park
Parc
Parcuri aprox. 1163 m
supermarket
PLUS Terezian
Supermarket aprox. 1298 m
restaurant
Pasha Kebab
Restaurant aprox. 1357 m
bar
Capital
Bar aprox. 1839 m

Istoricul prețurilor

Acces la informații premium după autentificare
Login Gratuit

Detalii despre preț și costuri

Prețul pe piață

Preț cerut: 200.000 €

Preț min. zonă
Preț max. zonă

i

Proprietate cu prețul cerut în afara intervalului mai multe...

Posibile explicații pentru faptul că prețul proprietății este peste cel maxim: imobil nou cu suprafață mare, are dotări și finisaje de lux.
Bine de știut: prețul unei proprietăți este influențat și de alte caracteristici, cum ar fi: vechime, localizare, vecinătăți, suprafață, compartimentare, amenajări, dotări, etc.
Acces la informații premium după autentificare
Login Gratuit

Costuri cu achiziția

Fără credit
Credit ipotecar
Noua casă

i

Costuri adiționale mai puțin știute la achiziție: taxe notariale, comisioane etc.

Acces la informații premium după autentificare
Login Gratuit

Proprietăți similare

Apartament cu 3 camere semidecomandat, mobilat în Ultracentral
210.000 €
Sibiu, Ultracentral
3 camere
95 mp
Etaj 1 / 1
Apartament cu 3 camere semidecomandat, mobilat în Vasile Aaron
215.000 €
Sibiu, Vasile Aaron
3 camere
112 mp
Etaj 1 / 1
Apartament cu 2 camere decomandat, mobilat în Ultracentral
200.000 €
Sibiu, Ultracentral
2 camere
93 mp
Parter / 1

Detalii de contact

Atum Imobiliare

Ureche Pavel Director Vanzari

Atum Imobiliare
PRO

Abonează-te la newsletter să fii primul care primește cele mai noi recomandări de proprietăți și sfaturi de la experți.

CONTACT

Creează alertă

Salvează căutarea ca să primești pe email ultimele anunțuri publicate

Apartamente cu 3 camere de vânzare în zona Terezian, Sibiu