1

Apartament 3 camere | Parter înalt | Pivnita | Terezian

122.000 €

Terezian, Sibiu

Nr. cam.:
3
Sup. utilă:
66 mp
Etaj:
Parter / 4
An constr.:
1982 (Finalizată)
  • • Locație aproximativă
  • • Vizionare prin apel video

Descriere apartament

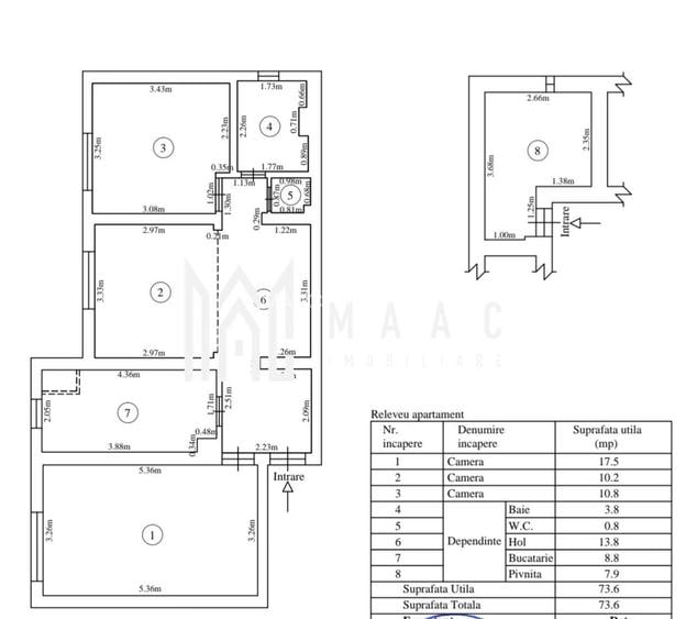
MAAC Imobiliare vă propune spre vânzare un apartament bine întreținut, situat în cartierul Terezian din Sibiu, o zonă apreciată pentru liniște, accesibilitate și facilitățile din proximitate, potrivită atât pentru locuire, cât și pentru investiție. Apartamentul cu 3 camere este amplasat la parter înalt într-un imobil cu 4 etaje, construit în 1982 și termoizolat, oferind confort termic sporit pe tot parcursul anului. Suprafața utilă este de 66 mp, la care se adaugă o pivniță de 8 mp, ideală pentru depozitare suplimentară. Compartimentarea inteligentă include: -living luminos și primitor -2 dormitoare bine proporționate -bucătărie complet utilată -2 băi -pivniță uscată și accesibilă Proprietatea se vinde complet mobilată și utilată, fiind pregătită pentru mutare imediată, fără necesitatea unor investiții suplimentare. Instalația electrică este refăcută recent, iar întreținerea apartamentului a fost realizată exemplar. Imobilul este poziționat aproape de puncte de interes precum magazine, transport public, școli și zone verzi, oferind un echilibru optim între confort, funcționalitate și acces rapid către facilitățile urbane. Pentru mai multe detalii sau programarea unei vizionări vă rugăm să menționați la telefon numărul CP2837384.
Citește mai mult Citește mai puțin
Decomandat Mobilat Calorifere Centrală proprie

Detalii apartament

ID anunț: XCSI105ST Copiat! 272801629 Copiat!
Actualizat în: 12 Mai 2026
Suprafață construită: 80 mp
Nr. bucătării: 1
Nr. băi: 2
Structură rezistență: Cărămidă
Tip imobil: Bloc de apartamente
Tip tranzacție: De vânzare prin agent
Regim înălțime: P+4E
Modalitate de plată: Cash sau Credit

Utilități

Destinație
Rezidențial
Pereți
Faianță Vopsea lavabilă
Podele
Gresie Parchet
Ușă intrare
Metal
Uși interior
Lemn
Izolații termice
Exterior
Contorizare
Apometre Contor gaz
Bucătărie
Mobilată Utilată
Electrocasnice
Aragaz Frigider Hotă Mașină de spălat Mașină spălat vase
Facilități imobil
Acoperiș Interfon
Utilități
Curent Apă Canalizare CATV Gaze Telefon
Internet
Cablu
Amenajare străzi
Iluminat stradal Mijloace de transport în comun Asfaltate
Comision
standard

Disponibilitate proprietate:

Imediat

Puncte de interes

Mijloace transport
bus-station
Strada Lunga
Stații autobuz aprox. 159 m
bus-station
Gladiolelor
Stații autobuz aprox. 250 m
bus-station
Terezian
Stații autobuz aprox. 286 m
bus-station
Flaro
Stații autobuz aprox. 315 m
Școală
school
Scoala Generala Nr. 13
Școli aprox. 59 m
school
Scoala Generala Nr. 18
Școli aprox. 260 m
kindergarten
Gradinita Nr. 18
Gradinițe aprox. 650 m
university
Facultatea de Jurnalistica
Universități aprox. 789 m
Recreere
park
Parc Tiglari
Parcuri aprox. 179 m
bar
Capital
Bar aprox. 234 m
supermarket
Profi
Supermarket aprox. 378 m
sports-ground
Teren sportiv
Terenuri sport aprox. 1161 m

Detalii despre preț și costuri

Prețul pe piață

Preț cerut: 122.000 €

Preț min. zonă
Preț max. zonă

53% dintre proprietățile similare ca zonă și nr. camere au prețul cerut mai mic. mai multe...

Bine de știut: prețul unei proprietăți este influențat și de alte caracteristici, cum ar fi: vechime, localizare, vecinătăți, suprafață, compartimentare, amenajări, dotări, etc. mai puțin...

Acces la informații premium după autentificare
Login Gratuit

Costuri cu achiziția

Fără credit
Credit ipotecar
Noua casă

i

Costuri adiționale mai puțin știute la achiziție: taxe notariale, comisioane etc.

Acces la informații premium după autentificare
Login Gratuit

Proprietăți similare

Apartament cu 3 camere decomandat, mobilat în Terezian
123.600 €
Sibiu, Terezian
3 camere
73 mp
Etaj 5
Apartament cu 3 camere decomandat, mobilat în Terezian
123.600 €
Sibiu, Terezian
3 camere
73 mp
Etaj 5
Apartament cu 3 camere decomandat, mobilat în Terezian
123.600 €
Sibiu, Terezian
3 camere
73 mp
Etaj 5 / 7

Detalii de contact

MAAC Imobiliare

Darius Mihu Consultant Imobiliar

MAAC Imobiliare
PRO

Abonează-te la newsletter să fii primul care primește cele mai noi recomandări de proprietăți și sfaturi de la experți.

CONTACT

Creează alertă

Salvează căutarea ca să primești pe email ultimele anunțuri publicate

Apartamente cu 3 camere de vânzare în zona Terezian, Sibiu