Apartament decomandat cu 3 camere 2 bai in Terezian

121.999 €

Terezian, Sibiu

Nr. cam.:
3
Sup. utilă:
66 mp
Etaj:
Parter / 4
An constr.:
1975 (Finalizată)
  • • Locație aproximativă
  • • Vizionare prin apel video

Descriere apartament

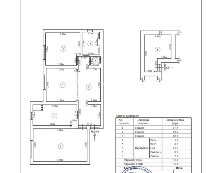
Agenția GRN TOP Invest vă propune spre vânzare un apartament decomandat cu 3 camere, 2 băi și pivniță generoasă de 8 mp, situat în Sibiu – zona Terezian. Proprietatea are o suprafață construită de 80 mp, din care 66 mp suprafață utilă. Apartamentul este situat la parter înalt, într-un imobil cu 4 etaje, construit în 1975, din cadre de beton, izolat termic exterior și dotat cu interfon. Compartimentarea este practică și eficientă: hol generos la intrare de 13,8 mp living spațios și luminos de 17,5 mp primul dormitor de 10,2 mp al doilea dormitor de 10,8 mp bucătărie separată, complet mobilată și utilată, de 8,8 mp baie de serviciu de 0,8 mp pivniță generoasă de 8 mp Finisaje și dotări: gresie și faianță de calitate geamuri termopan centrală termică instalația electrică refăcută electrocasnice incluse: plită pe gaz, cuptor electric, hotă, combină frigorifică etc. Localizare excelentă – zona Terezian, cu acces rapid către: magazine și supermarketuri școli și grădinițe parcuri mijloace de transport în comun Preț de vânzare: 121.999 euro – negociabil. Apartamentul se vinde parțial mobilat. Se acceptă plată cash sau credit ipotecar. ID ofertă: GRN1875.
Citește mai mult Citește mai puțin
Decomandat Parțial mobilat Centrală proprie

Detalii apartament

ID anunț: XDQH101A8 Copiat! 274158296 Copiat!
Actualizat în: 11 Martie 2026
Suprafață utilă totală: 66 mp
Suprafață construită: 79 mp
Nr. bucătării: 1
Nr. băi: 2
Structură rezistență: Cărămidă
Tip imobil: Bloc de apartamente
Regim înălțime: P+4E

Utilități

Destinație
Rezidențial
Pereți
Faianță Vopsea lavabilă
Podele
Parchet Gresie
Ușă intrare
Metal
Uși interior
Lemn
Izolații termice
Exterior
Ferestre cu geam termopan
PVC
Contorizare
Apometre Contor gaz
Bucătărie
Utilată Mobilată
Electrocasnice
Aragaz Hotă Frigider Hotă Mașină de spălat
Facilități imobil
Interfon
Utilități
Curent
Internet
Fibră optică Wireless
Amenajare străzi
Asfaltate
Comision
2%

Certificat energetic:

Clasa energetică: B

Vecinătăți:

Scoala/gradinita, Parc, Supermarket, Banca, Zona comerciala, Autobuz

Puncte de interes

Mijloace transport
bus-station
Terezian
Stații autobuz aprox. 185 m
bus-station
Strada Lunga
Stații autobuz aprox. 284 m
bus-station
Alimentara Tiglari 2
Stații autobuz aprox. 350 m
bus-station
Alimentara Tiglari 1
Stații autobuz aprox. 358 m
Școală
school
Scoala Generala Nr. 18
Școli aprox. 179 m
school
Scoala Generala Nr. 13
Școli aprox. 381 m
kindergarten
Gradinita Nr. 18
Gradinițe aprox. 706 m
university
Facultatea de Jurnalistica
Universități aprox. 1178 m
Recreere
supermarket
PLUS Terezian
Supermarket aprox. 103 m
restaurant
Pasha Kebab
Restaurant aprox. 141 m
park
Parcul Terezian
Parcuri aprox. 222 m
sports-ground
Teren sportiv
Terenuri sport aprox. 1511 m

Detalii despre preț și costuri

Prețul pe piață

Preț cerut: 121.999 €

Preț min. zonă
Preț max. zonă

53% dintre proprietățile similare ca zonă și nr. camere au prețul cerut mai mic. mai multe...

Bine de știut: prețul unei proprietăți este influențat și de alte caracteristici, cum ar fi: vechime, localizare, vecinătăți, suprafață, compartimentare, amenajări, dotări, etc. mai puțin...

Insight premium disponibil după login

Costuri cu achiziția

Fără credit
Credit ipotecar
Noua casă

i

Costuri adiționale mai puțin știute la achiziție: taxe notariale, comisioane etc.

Insight premium disponibil după login

Proprietăți recomandate

Detalii de contact

GRN TOP INVEST

Alexandra Jiman

GRN TOP INVEST
PRO

Abonează-te la newsletter să fii primul care primește cele mai noi recomandări de proprietăți și sfaturi de la experți.

CONTACT

Creează alertă

Salvează căutarea ca să primești pe email ultimele anunțuri publicate

Apartamente cu 3 camere de vânzare în zona Terezian, Sibiu