Studio in Sibiu, Lacul lui Binder

80.000 €

Țiglari, Sibiu

Nr. cam.:
2
Sup. utilă:
36,4 mp
Etaj:
1 / 4
An constr.:
2025 (Finalizată)
  • • Comision 0%
  • • Locație aproximativă

Descriere apartament

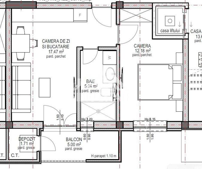
🏠 Studio Modern lângă Lacul lui Binder | Comision 0% | Predare 2026 ​Ești în căutarea unei locuințe care îmbină relaxarea de lângă apă cu confortul unui bloc nou? Sibiu Estate îți prezintă un apartament tip studio, ideal pentru tineri dinamici sau ca investiție smart cu randament excelent! ​📍 Locație de Top: Zona Lacul lui Binder, Sibiu ​Apartamentul este situat într-un imobil nou (P+4), dotat cu lift de ultimă generație, într-o zonă liniștită, cu acces complet asfaltat și rapid către punctele de interes ale orașului. ​📐 Compartimentare Eficientă (36,4 mp utili + Balcon): ​Fiecare metru pătrat a fost gândit pentru confortul tău: ​Living + Bucătărie open-space: 17,47 mp ​Dormitor primitor: 12,18 mp ​Baie spațioasă: 5,04 mp ​Spațiu depozitare interior: 1,71 mp ​Balcon: 5,00 mp (perfect pentru cafeaua de dimineață) ​✨ Avantaje care fac diferența: ​🌡️ Confort termic: Încălzire în pardoseală pentru eficiență și estetică. ​📦 Depozitare extra: Spațiu de depozitare exterior, închis. ​🚗 Loc de parcare propriu: Inclus în preț, pentru a scăpa de grija parcării. ​🌊 Lifestyle: Chiar lângă Complexul Lacul lui Binder (bază sportivă, sporturi nautice și zone de relaxare). ​🔑 Stadiu și Predare: ​Predare: Vara anului 2026. ​Stadiu: Apartamentul se predă la stadiul de ALB, oferindu-ți libertatea de a-l personaliza. ​Opțional: Putem asigura finisarea la cheie, conform gusturilor tale! ​💰 Preț: 80.000 EUR (TVA inclus) ​✅ Comision 0% la achiziție! ​📞 Contactează-ne pentru detalii sau vizionare: Sibiu Estate – Casa ta, povestea noastră!
Citește mai mult Citește mai puțin
Confort 1 Decomandat 1 Balcon / Terasă / Logie Centrală proprie Încălzire prin pardoseală

Detalii apartament

ID anunț: XFOU00050 Copiat! 273828425 Copiat!
Actualizat în: 18 Februarie 2026
Suprafață construită: 45.5 mp
Nr. bucătării: 1
Nr. băi: 1
Tip imobil: Bloc de apartamente
Regim înălțime: P+4E

Utilități

Destinație
Rezidențial
Pereți
Vopsea lavabilă
Izolații termice
Exterior
Ferestre cu geam termopan
PVC
Utilități
Curent Apă Canalizare CATV Gaze
Internet
Cablu
Comision
0%

Disponibilitate proprietate:

Imediat

Puncte de interes

Mijloace transport
bus-station
Lisabona
Stații autobuz aprox. 88 m
bus-station
Lisabona
Stații autobuz aprox. 95 m
bus-station
Klagenfurt
Stații autobuz aprox. 306 m
bus-station
Landshut
Stații autobuz aprox. 312 m
Școală
school
Scoala Generala Nr. 23
Școli aprox. 401 m
school
Scoala Generala Nr. 18
Școli aprox. 1288 m
kindergarten
Gradinita Nr. 19
Gradinițe aprox. 1405 m
kindergarten
Gradinita Nr. 18
Gradinițe aprox. 1897 m
Recreere
park
Parc
Parcuri aprox. 830 m
supermarket
PLUS Terezian
Supermarket aprox. 1278 m
restaurant
Pasha Kebab
Restaurant aprox. 1329 m
sports-ground
Teren sportiv
Terenuri sport aprox. 1868 m

Detalii despre preț și costuri

Prețul pe piață

Preț cerut: 80.000 €

Preț min. zonă
Preț max. zonă

77% dintre proprietățile similare ca zonă și nr. camere au prețul cerut mai mic. mai multe...

Bine de știut: prețul unei proprietăți este influențat și de alte caracteristici, cum ar fi: vechime, localizare, vecinătăți, suprafață, compartimentare, amenajări, dotări, etc. mai puțin...

Insight premium disponibil după login

Costuri cu achiziția

Fără credit
Credit ipotecar
Noua casă

i

Costuri adiționale mai puțin știute la achiziție: taxe notariale, comisioane etc.

Insight premium disponibil după login

Proprietăți recomandate

Detalii de contact

Sibiu Estate

Florin Imre Consilier Imobiliar

Sibiu Estate
PRO

Abonează-te la newsletter să fii primul care primește cele mai noi recomandări de proprietăți și sfaturi de la experți.

CONTACT

Creează alertă

Salvează căutarea ca să primești pe email ultimele anunțuri publicate

Apartamente noi cu 2 camere de vânzare în zona Țiglari, Sibiu