Apartament premium 3 camere vedere spre lac si terasa 19 mp in Tiglari

185.394 €

Țiglari, Sibiu

Nr. cam.:
3
Sup. utilă:
79,8 mp
Etaj:
2 / 3
An constr.:
2026 (În construcție)
  • • Locație aproximativă

Descriere apartament

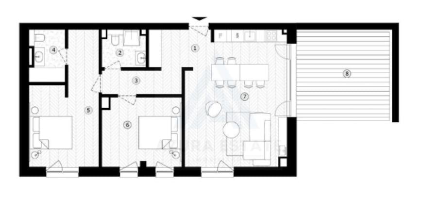
Agentia imobiliara Azura Estate va propune spre vanzare un apartament constructie premium cu o suprafata utila de 79.8 mp, format din living, 2 dormitoare, bucatarie, 2 bai, hol si terasa 19 mp intr-o locatie excelenta la o distanta de 8 minute de centrul orasului. Constructiile sunt realizate din plansee din beton armat, cu fatada ventilata cu panouri Aquapanel si A lucobond, ferestre cu geamuri de aluminiu cu tamplarie SHUCKO, 3 foi de sticla, caramida naturala aparenta, mansarda izolata fonic, tabla zincata cu 180 gr densitate, 25 cm grosime si 3 straturi vata minerala 10/10/5 cm grosime,. Cartierul este situat lângă singurul lac din oraș cu zonă de agrement și sport lângă lac, parte din proiect aprox. 20.000 mp parc cu amenajări spații de joacă și restaurant. Toate blocurile au acces la drum asfaltat, eliminându-se astfel disconfortul cauzat de noroiul format. Exista amenajate parcări subterane pentru confortul viitorilor rezidenții. Locatarii pot accesa locuri de parcare suplimentare, vor putea fi achiziționate până la 2 sau chiar 3 locuri de parcare, în funcție de nevoi. Majoritatea clienților provin din domenii liberale, artiști, etc, precum ș****************** mijloc. Un procent semnificativ este reprezentat de investitori, antreprenori, manageri. Caracteristici si compartimentare: Living generos cu iesire pe terasa Bucatarie open space 2 dormitoare matrimoniale Terasa acoperita 2 bai Pretul de vanzare la stadiul de alb este de 185394 euro + TVA 21% La cerere se poate oferii stadiul de predare la cheie care include: usi interioare, instalații electrice și instalații sanitare, gresie, faianță si parchet, prize si intrerupatoare.
Citește mai mult Citește mai puțin
Confort 1 Decomandat Nemobilat Curte Centrală proprie Încălzire prin pardoseală

Detalii apartament

ID anunț: XG760008E Copiat! 275362405 Copiat!
Actualizat în: 28 Martie 2026
Suprafață construită: 101 mp
Nr. bucătării: 1
Nr. băi: 2
Structură rezistență: Beton
Tip imobil: Casă/Vilă
Regim înălțime: P+3E
Nr. terase: 1

Utilități

Pereți
Faianță
Ușă intrare
Metal
Izolații termice
Exterior
Contorizare
Apometre Contor gaz
Alte spații utile
Terasă
Facilități imobil
Acoperiș Interfon Lift Videointerfon
Utilități
Curent Apă Canalizare CATV Gaze Telefon
Internet
Cablu
Servicii imobil
Supraveghere video
Amenajare străzi
Iluminat stradal Mijloace de transport în comun Asfaltate
Comision
standard

Certificat energetic:

Clasa energetică: A

Vecinătăți:

Proiect The Lake Home.
Sunt disponibile variante cu 2,3 camere si penthouse.
Produs premium, preturi pe masura.
Daca aveti client sunati-ma in prealabil.

Locurile de parcare se vand separat.

Disponibilitate proprietate:

Imediat

Puncte de interes

Mijloace transport
bus-station
Lisabona
Stații autobuz aprox. 310 m
bus-station
Lisabona
Stații autobuz aprox. 315 m
bus-station
Piata Tiglari 2
Stații autobuz aprox. 354 m
bus-station
Piata Tiglari 1
Stații autobuz aprox. 357 m
Școală
school
Scoala Generala Nr. 23
Școli aprox. 322 m
school
Scoala Generala Nr. 18
Școli aprox. 1088 m
kindergarten
Gradinita Nr. 19
Gradinițe aprox. 1180 m
kindergarten
Gradinita Nr. 18
Gradinițe aprox. 1713 m
Recreere
park
Parc
Parcuri aprox. 615 m
supermarket
PLUS Terezian
Supermarket aprox. 1101 m
restaurant
Pasha Kebab
Restaurant aprox. 1149 m
sports-ground
Teren sportiv
Terenuri sport aprox. 1651 m

Detalii despre preț și costuri

Prețul pe piață

Preț cerut: 185.394 €

Preț min. zonă
Preț max. zonă

83% dintre proprietățile similare ca zonă și nr. camere au prețul cerut mai mic. mai multe...

Bine de știut: prețul unei proprietăți este influențat și de alte caracteristici, cum ar fi: vechime, localizare, vecinătăți, suprafață, compartimentare, amenajări, dotări, etc. mai puțin...

Insight premium disponibil după login

Costuri cu achiziția

Fără credit
Credit ipotecar
Noua casă

i

Costuri adiționale mai puțin știute la achiziție: taxe notariale, comisioane etc.

Insight premium disponibil după login

Proprietăți similare

Apartament cu 3 camere decomandat în Țiglari
172.013 €
Sibiu, Țiglari
3 camere
62,5 mp
Parter
Apartament cu 4 camere decomandat, mobilat în Aeroport
178.000 €
Sibiu, Aeroport
4 camere
102 mp
Etaj 3 / 5
Apartament cu 3 camere decomandat, mobilat în Lazaret
169.000 €
Sibiu, Lazaret
3 camere
66 mp
Parter / 4

Detalii de contact

Azura-Estate

Adrian Sasu Manager

Azura-Estate
PRO

Abonează-te la newsletter să fii primul care primește cele mai noi recomandări de proprietăți și sfaturi de la experți.

CONTACT

Creează alertă

Salvează căutarea ca să primești pe email ultimele anunțuri publicate

Apartamente cu 3 camere de vânzare în zona Țiglari, Sibiu