Apartament cu 2 camere si balcon la etajul 1 zona Lacul lui Binder

88.950 €

Tineretului, Sibiu

Nr. cam.:
2
Sup. utilă:
43 mp
Etaj:
1 / 4
An constr.:
2025 (În construcție)
  • • Comision 0%
  • • Locație aproximativă
  • • Vizionare prin apel video

Descriere apartament

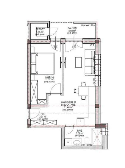
De vanzare in Sibiu zona Tiglari Tineretului apartament cu 2 camere si balcon in suprafata totala de 59 mp, pozitionat la etajul intermediar 1. Apartamentul este situat la etajul intermediar 1 din 4 al unui imobil constructie noua care beneficiaza de 2 lifturi, parcari private destinate locatarilor si vizitatorilor si curte. Imobilul este situat la 50 m fata de complexul de agrement Lacul lui Binder pe o strada aflata in plan secundar fata de artera principala, beneficiu adus din punct de vedere al linistii, expunere la zgomot, praf si trafic redus. Locuinta in suprafata de 43.00 mp este alcatuita dintr-un living open space cu bucataria, dormitorul spatios si baia dotata cu cada si geam pentru aerisirea naturala. Separat de suprafata utila apartamentul beneficiaza si de un balcon in suprafata de 5.60 mp si o camara de 1.71 mp. Parcarea se realizeaza pe propriul loc de parcare amenajat in fata imobilului. Finisaje standard: - Usa de metal la intrarea în apartamente placate cu panou MDF; - Pereti tencuiti (tencuieli pe baza de var-ciment), gletuiti si zugraviti in lavabila alba; - tamplarie PVC cu geam termopan 5 camere si 3 foi de sticla, glafuri interior-exterior; - incalzire prin pardoseala, centrala termica proprie in condensatie si detector gaz. - sisteme elecrice din cupru trase prin copex cu tablou general si sigurante pentru consumatorii de putere marca Schneider. - Instalatii pentru curentii slabi Internet, Telefon, TV. - Racorduri apa-canal in bucatarie si bai. - Racord gaz metan la bucatarie; - Rupere termica intre balcon si placa din profil de 10 cm montat la tamplarie si polistirent extrudat. - Instalatii pentru gaz, curent electric si apa, contorizare individuala si contoare montate. Casa scarii dispune de: lift, acces securizat, scarile placate cu gresie antiderapanta, mana curenta din teava rectangulara, plafoniere cu senzori de miscare si zugraveli in lavabila alba. Spatile comune exterioare respectiv curtea complexului dispune de spatii verzi amenajate cu gazon, arbusti si plante decorative. Locurile de parcare sunt supraterane, delimitate si pavate cu dale din beton. Aleile pietonale sunt pavate cu dale din beton si delimitate de spatii verzi. Valoarea de achizitie a locuintei pentru plata avansului de 50% este de 88.950 euro, aceasta poate fi achizitionata si prin accesarea unui credit bancar. ID intern: 2746.
Citește mai mult Citește mai puțin
Confort 1 Decomandat 1 Balcon / Terasă / Logie Centrală proprie Încălzire prin pardoseală 1 Parcare

Detalii apartament

ID anunț: XC74101PV Copiat! 261541325 Copiat!
Actualizat în: 05 Mai 2026
Suprafață utilă totală: 43 mp
Suprafață construită: 59 mp
Nr. bucătării: 1
Nr. băi: 1
Structură rezistență: Altele
Tip imobil: Bloc de apartamente
Tip tranzacție: De vânzare prin agent
Regim înălțime: P+4E
Modalitate de plată: Cash sau Credit

Utilități

Destinație
Rezidențial
Pereți
Vopsea lavabilă
Ușă intrare
Metal
Izolații termice
Exterior
Ferestre cu geam termopan
PVC
Contorizare
Apometre Contor gaz
Facilități imobil
Lift
Utilități
Apă Curent Gaze Canalizare Telefon CATV
Amenajare străzi
Asfaltate Iluminat stradal
Comision
0%

Puncte de interes

Mijloace transport
bus-station
Bariera Tiglari 1
Stații autobuz aprox. 231 m
bus-station
Bariera Tiglari 2
Stații autobuz aprox. 243 m
bus-station
Piata Tiglari 2
Stații autobuz aprox. 376 m
bus-station
Piata Tiglari 1
Stații autobuz aprox. 387 m
Școală
school
Scoala Generala Nr. 23
Școli aprox. 418 m
school
Scoala Generala Nr. 18
Școli aprox. 796 m
kindergarten
Gradinita Nr. 19
Gradinițe aprox. 887 m
university
Facultatea de Jurnalistica
Universități aprox. 1679 m
Recreere
park
Parc
Parcuri aprox. 310 m
supermarket
PLUS Terezian
Supermarket aprox. 852 m
restaurant
Pasha Kebab
Restaurant aprox. 891 m
sports-ground
Teren sportiv
Terenuri sport aprox. 1379 m

Detalii despre preț și costuri

Prețul pe piață

Preț cerut: 88.950 €

Preț min. zonă
Preț max. zonă

62% dintre proprietățile similare ca zonă și nr. camere au prețul cerut mai mic. mai multe...

Bine de știut: prețul unei proprietăți este influențat și de alte caracteristici, cum ar fi: vechime, localizare, vecinătăți, suprafață, compartimentare, amenajări, dotări, etc. mai puțin...

Acces la informații premium după autentificare
Login Gratuit

Costuri cu achiziția

Fără credit
Credit ipotecar
Noua casă

i

Costuri adiționale mai puțin știute la achiziție: taxe notariale, comisioane etc.

Acces la informații premium după autentificare
Login Gratuit

Proprietăți similare

Apartament cu 2 camere decomandat în Tineretului
88.350 €
Sibiu, Tineretului
2 camere
39,2 mp
Parter / 4
Apartament cu 2 camere decomandat în Tineretului
94.400 €
Sibiu, Tineretului
2 camere
43,6 mp
Parter / 4
Apartament cu 2 camere decomandat în Tineretului
88.900 €
Sibiu, Tineretului
2 camere
44 mp
Etaj 1 / 4

Detalii de contact

Atum Imobiliare

Ureche Pavel Director Vanzari

Atum Imobiliare
PRO

Abonează-te la newsletter să fii primul care primește cele mai noi recomandări de proprietăți și sfaturi de la experți.

CONTACT

Creează alertă

Salvează căutarea ca să primești pe email ultimele anunțuri publicate

Apartamente cu 2 camere de vânzare în zona Tineretului, Sibiu