10

Apartament 3 camere | Etaj 1 + M | Curte | ULTRACENTRAL

200.000 €

Ultracentral, Sibiu

Nr. cam.:
3
Sup. utilă:
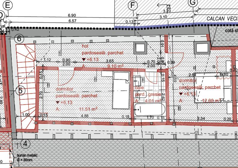
71,97 mp
Etaj:
1 / 2
An constr.:
2025 (În construcție)
  • • Comision 0%
  • • Locație aproximativă

Descriere apartament

Apartamentul face parte dintr-un imobil format din 3 corpuri si un total de 11 apartamente, situat într-o zona cu farmec istoric, iar in momentul de fata fiind in renovare completa si consolidare, prețul afisat este pentru predare ”la alb”, pot fi predate atat in stadiul ”la alb” cat si ”la cheie” (la cerere). Planurile generoase si practice, creeaza un nivel ridicat de confort, in timp ce ferestrele din podea pana in tavan ofera multa lumina si atmosfera, iar tot etajul 1 beneficiaza de terasa comuna care deserveste si ca zona de acces in apartament. Apartamentele de la etajul 1 sunt dispuse pe 2 nivele, avand camere si la mansarda. Toate amenajarile exterioare vor fi asigurate de catre dezvoltator, ”la cheie”, exact ca in imagini (in curte piatra cubica, spatii verzi, zona de biciclete, imobil izolat si finisat), specific acestui apartament la strada se amenajeaza cu obloane de lemn. In completarea acestor beneficii, proiectul se remarca si prin accentul pus pe sustenabilitate si eficienta energetica, elemente tot mai importante pentru un stil de viata responsabil si conectat la nevoile viitorului. Materialele utilizate in procesul de renovare si consolidare sunt atent alese pentru a reduce impactul asupra mediului, iar sistemele moderne de izolatie contribuie semnificativ la scaderea consumului de energie. Folosirea pompelor de caldura in combinatie cu panouri fotovoltaice nu doar ca elimina necesitatea racordarii la gaz, dar transforma acest apartament intr-o locuinta independenta energetic, cu costuri de intretinere reduse. Mai mult, designul atent al curtii interioare — cu spatii verzi generoase, zona pentru biciclete si terase ideale pentru relaxare — sustine ideea de trai sustenabil in mijlocul orasului, promovand mobilitatea alternativa si reconectarea cu natura. Astfel, acest imobil nu este doar o locuinta, ci o declaratie de responsabilitate fata de mediu, fara a face compromisuri in ceea ce priveste confortul sau estetica. Aceasta este oportunitatea perfecta pentru cei care isi doresc mai mult decat un simplu apartament — un camin eficient, elegant si construit pentru viitor. Fie ca il alegi ”la alb” sau "la cheie”, pentru a-l personaliza dupa gustul tau, gata de mutat, acest apartament imbina farmecul unei zone istorice cu cele mai moderne solutii de locuire. Programeaza o vizionare si descopera cum poate arata viitorul tau acasa!
Citește mai mult Citește mai puțin
Confort lux Semidecomandat Curte Curte comună Alte metode electrice Încălzire prin pardoseală Bine întreținut (Bună)

Detalii apartament

ID anunț: XE70100L3 Copiat! 263164014 Copiat!
Actualizat în: 08 Mai 2026
Suprafață construită: 93.56 mp
Nr. bucătării: 1
Nr. băi: 2
Structură rezistență: Cărămidă
Tip imobil: Clădire mixtă
Regim înălțime: P+2E

Utilități

Destinație
Rezidențial
Izolații termice
Exterior
Ferestre cu geam termopan
PVC
Utilități
Curent Apă Canalizare CATV
Internet
Fibră optică
Amenajare străzi
Pietruite Iluminat stradal
Comision
0%

Certificat energetic:

Clasa energetică: A

Puncte de interes

Mijloace transport
bus-station
Piata Cibin 1
Stații autobuz aprox. 439 m
bus-station
Piata Cibin 2
Stații autobuz aprox. 505 m
bus-station
Piata Cibin 3
Stații autobuz aprox. 542 m
bus-station
Premium 1
Stații autobuz aprox. 571 m
Școală
school
Liceul de Arte
Școli aprox. 138 m
school
Scoala gimnaziala nr. 2
Școli aprox. 298 m
university
Facultatea de Jurnalistica
Universități aprox. 323 m
kindergarten
Gradinita Nr. 19
Gradinițe aprox. 1046 m
Recreere
restaurant
Butoiul de Aur
Restaurant aprox. 41 m
supermarket
Kappa
Supermarket aprox. 164 m
park
Curtea a 2-a
Parcuri aprox. 174 m
sports-ground
Teren sportiv
Terenuri sport aprox. 419 m

Detalii despre preț și costuri

Prețul pe piață

Preț cerut: 200.000 €

Preț min. zonă
Preț max. zonă

i

Proprietate cu prețul cerut în afara intervalului mai multe...

Posibile explicații pentru faptul că prețul proprietății este peste cel maxim: imobil nou cu suprafață mare, are dotări și finisaje de lux.
Bine de știut: prețul unei proprietăți este influențat și de alte caracteristici, cum ar fi: vechime, localizare, vecinătăți, suprafață, compartimentare, amenajări, dotări, etc.
Insight premium disponibil după login

Costuri cu achiziția

Fără credit
Credit ipotecar
Noua casă

i

Costuri adiționale mai puțin știute la achiziție: taxe notariale, comisioane etc.

Insight premium disponibil după login

Proprietăți similare

Apartament cu 3 camere decomandat, mobilat în Ultracentral
190.000 €
Sibiu, Ultracentral
3 camere
67 mp
Etaj 1 / 3
Apartament cu 2 camere decomandat, mobilat în Ultracentral
200.000 €
Sibiu, Ultracentral
2 camere
93 mp
Parter
Apartament cu 4 camere decomandat în Ultracentral
215.000 €
Sibiu, Ultracentral
4 camere
114 mp
Etaj 1

Detalii de contact

KW Sibiu

Daniela Achim Consultant Imobiliar

KW Sibiu
PRO

Abonează-te la newsletter să fii primul care primește cele mai noi recomandări de proprietăți și sfaturi de la experți.

CONTACT

Creează alertă

Salvează căutarea ca să primești pe email ultimele anunțuri publicate

Apartamente cu 3 camere de vânzare în zona Ultracentral, Sibiu