Apartament 2 camere- 57.95 mp- la cheie- zona Veterani Sibiu

95.100 €

Veterani, Sibiu

Nr. cam.:
2
Sup. utilă:
57,95 mp
Etaj:
Parter / 2
An constr.:
2026 (În construcție)
  • • Comision 0%
  • • Locație aproximativă

Descriere apartament

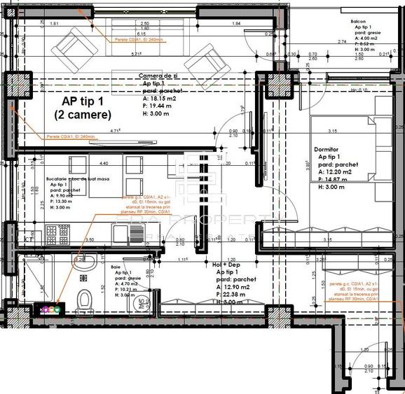
Apartament 2 camere- 57.95 mp- la cheie- zona Veterani Sibiu Dacă ești în căutarea unei locuințe care să îmbine liniștea unui cartier nou cu accesul rapid la tot ce contează în Sibiu, acest apartament din Ansamblul Florilor merită atenția ta. Situat în cartierul Veterani, proiectul propune un stil de viață aerisit, în blocuri cu regim mic de înălțime, dar care beneficiază de tot confortul modern, inclusiv lift. De ce să alegi acest apartament? Spațiu bine gândit: Ai o suprafață utilă de 51 mp, compartimentată inteligent pentru a profita de fiecare colț al casei. Lumină și relaxare: Te bucuri de un living primitor de 18 mp și o bucătărie separată, 1 dormitor, 1 baie, 1 balcon cu acces din dormitor si living. Personalizare totală: Apartamentul se predă „la cheie”, dar marea diferență este că tu ești cel care alege materialele. Îți oferim un buget pentru finisaje, iar tu decizi parchetul, gresia și ușile care îți plac. Confort termic: Primești o locuință eficientă, dotată cu centrală proprie, geamuri tripan și izolație de calitate, totul pentru facturi mici și liniște. Viața în comunitate În Ansamblul Florilor, nu cumperi doar un apartament, ci devii parte dintr-o comunitate organizată. Te vei bucura de: Un parc privat cu fântână arteziană și zone verzi chiar lângă bloc. Acces rapid la cumpărături (Prima Shopping City, Kaufland, Hornbach) și legătură facilă cu autostrada. Facilități pentru familie: spații pentru grădiniță și creșă prevăzute chiar în interiorul ansamblului. Preț: 95.100 € - TVA inclus. Parcare: Poți opta pentru un loc de parcare suprateran sau unul subteran cu boxă pentru depozitare.
Citește mai mult Citește mai puțin
Confort 1 Decomandat 1 Balcon / Terasă / Logie Calorifere Centrală proprie 1 Parcare

Detalii apartament

ID anunț: XEP4100CJ Copiat! 275016841 Copiat!
Actualizat în: 01 Aprilie 2026
Suprafață construită: 67 mp
Nr. bucătării: 1
Nr. băi: 1
Structură rezistență: Cărămidă
Tip imobil: Bloc de apartamente
Regim înălțime: P+2E

Utilități

Izolații termice
Exterior
Facilități imobil
Lift
Utilități
Curent Apă Canalizare CATV Gaze Telefon
Internet
Cablu
Amenajare străzi
Iluminat stradal Mijloace de transport în comun Asfaltate
Comision
0%

Disponibilitate proprietate:

Imediat

Puncte de interes

Mijloace transport
bus-station
Opel
Stații autobuz aprox. 310 m
bus-station
Obi
Stații autobuz aprox. 326 m
bus-station
Obor
Stații autobuz aprox. 489 m
bus-station
Targ
Stații autobuz aprox. 503 m
Școală
school
Scoala Generala Nr. 23
Școli aprox. 1017 m
school
Scoala Generala Nr. 18
Școli aprox. 1223 m
kindergarten
Gradinita Nr. 18
Gradinițe aprox. 1396 m
school
Scoala Generala Nr. 13
Școli aprox. 1421 m
Recreere
supermarket
PLUS Terezian
Supermarket aprox. 1020 m
restaurant
Pasha Kebab
Restaurant aprox. 1065 m
park
Parcul Terezian
Parcuri aprox. 1210 m
bar
Capital
Bar aprox. 1563 m

Detalii despre preț și costuri

Prețul pe piață

Preț cerut: 95.100 €

Preț min. zonă 60.000 €
Preț max. zonă 135.000 €

77% dintre proprietățile similare ca zonă și nr. camere au prețul cerut mai mare. mai multe...

Bine de știut: prețul unei proprietăți este influențat și de alte caracteristici, cum ar fi: vechime, localizare, vecinătăți, suprafață, compartimentare, amenajări, dotări, etc. mai puțin...

Costuri cu achiziția

Fără credit
5.881 RON
Credit ipotecar
7.387 RON
Noua casă
625 RON+ taxe notariale

i

Costuri adiționale mai puțin știute la achiziție: taxe notariale, comisioane etc.

Proprietăți similare

Apartament cu 3 camere decomandat în Veterani
98.900 € + TVA
Sibiu, Veterani
3 camere
71,35 mp
Etaj 1
Apartament cu 2 camere decomandat în Veterani
91.900 € + TVA
Sibiu, Veterani
2 camere
54,07 mp
Etaj 1 / 3
Apartament cu 2 camere decomandat în Veterani
101.250 € + TVA
Sibiu, Veterani
2 camere
59,57 mp
Etaj 1 / 3

Detalii de contact

Era Property

AUREL Vulcu Consultant imobiliar

Era Property
PRO

Abonează-te la newsletter să fii primul care primește cele mai noi recomandări de proprietăți și sfaturi de la experți.

CONTACT

Creează alertă

Salvează căutarea ca să primești pe email ultimele anunțuri publicate

Apartamente cu 2 camere de vânzare în zona Veterani, Sibiu