1

Apartament 2 camere | 66,45 MPU | 2 Balcoane | Veterani

95.100 €

Veterani, Sibiu

Nr. cam.:
2
Sup. utilă:
66,45 mp
Etaj:
Parter / 3
An constr.:
2026 (În construcție)
  • • Locație aproximativă
  • • Vizionare prin apel video

Descriere apartament

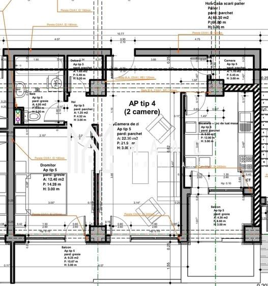
MAAC Imobiliare vă propune spre vânzare un apartament cu 2 camere modern, situat într-un ansamblu rezidențial nou, conceput pentru a oferi un standard ridicat de confort, funcționalitate și eficiență, ideal atât pentru locuire proprie, cât și pentru investiție imobiliară pe termen lung. Proprietatea este amplasată într-o zonă în plină dezvoltare, cu acces facil către zona Jumbo și infrastructură în curs de modernizare, drumurile urmând a fi complet asfaltate de către dezvoltator. Apartamentul este poziționat la parterul unui imobil cu regim redus de înălțime P+E+E+R, dotat cu lift, construit pe structură solidă din beton hidroizolat, cu placă peste ultimul nivel, oferind durabilitate, siguranță și un nivel ridicat de izolare. Imobilul se află în stadiu de construcție, cu termen de predare la cheie în luna septembrie, iar viitorii proprietari beneficiază de posibilitatea de personalizare a finisajelor, manopera fiind inclusă și asigurată de dezvoltator. Suprafața utilă a locuinței este de 51.55 mp, la care se adaugă două balcoane cu suprafață totală de 13.55 mp, rezultând un spațiu generos, bine optimizat pentru un stil de viață modern. Compartimentarea este decomandată și eficient organizată, oferind confort și funcționalitate în utilizarea zilnică: -cameră de zi spațioasă de 22.30 mp -bucătărie separată cu loc de luat masa de 9.50 mp -dormitor de 12.40 mp -baie de 4.95 mp -hol de acces -debara -cămară -2 balcoane (9.25 mp și 4.30 mp) Confortul termic este asigurat prin centrală proprie și încălzire în pardoseală, oferind eficiență energetică și distribuție uniformă a căldurii. În plus, liniștea și intimitatea sunt susținute de panourile fonice montate la fiecare nivel al clădirii, contribuind la un ambient interior plăcut. Ansamblul rezidențial este gândit ca o comunitate modernă și completă, formată din 10 blocuri, ce va integra facilități multiple pentru un stil de viață echilibrat: -loc de joacă pentru copii -creșă și grădiniță în incinta ansamblului -parc pentru relaxare -spații comerciale la parter Printre avantajele suplimentare se numără: -izolație fonică eficientă -acces rapid către puncte de interes -posibilitate de achiziție loc de parcare subteran -posibilitate de achiziție boxă pentru depozitare Condițiile de plată sunt flexibile, cu un avans minim de 15%, facilitând accesul la achiziție într-un mod adaptat nevoilor cumpărătorilor. Pentru mai multe detalii și programarea unei vizionări, vă rugăm să ne contactați telefonic și să menționați CP2970164.
Citește mai mult Citește mai puțin
Decomandat Nemobilat 2 Balcoane / Terase / Logii Încălzire prin pardoseală

Detalii apartament

ID anunț: XCSI106T7 Copiat! 275425534 Copiat!
Actualizat în: 28 Mai 2026
Nr. bucătării: 1
Nr. băi: 1
Structură rezistență: Beton
Tip imobil: Bloc de apartamente
Tip tranzacție: De vânzare prin agent
Regim înălțime: S+P+3E
Modalitate de plată: Cash sau Credit

Utilități

Destinație
Rezidențial
Izolații termice
Exterior Interior
Contorizare
Apometre Contor gaz
Alte spații utile
Debara
Facilități imobil
Lift
Utilități
Curent Apă Canalizare CATV Gaze Telefon
Internet
Cablu
Amenajare străzi
Mijloace de transport în comun De pământ
Comision
standard

Disponibilitate proprietate:

Imediat

Puncte de interes

Mijloace transport
bus-station
Klagenfurt
Stații autobuz aprox. 1189 m
bus-station
Landshut
Stații autobuz aprox. 1211 m
bus-station
Obi
Stații autobuz aprox. 1370 m
bus-station
Lisabona
Stații autobuz aprox. 1377 m
Școală
school
Scoala Generala Nr. 23
Școli aprox. 1411 m
Recreere
park
Parc
Parcuri aprox. 1939 m

Detalii despre preț și costuri

Prețul pe piață

Preț cerut: 95.100 €

Preț min. zonă
Preț max. zonă

91% dintre proprietățile similare ca zonă și nr. camere au prețul cerut mai mare. mai multe...

Bine de știut: prețul unei proprietăți este influențat și de alte caracteristici, cum ar fi: vechime, localizare, vecinătăți, suprafață, compartimentare, amenajări, dotări, etc. mai puțin...

Acces la informații premium după autentificare
Login Gratuit

Costuri cu achiziția

Fără credit
Credit ipotecar
Noua casă

i

Costuri adiționale mai puțin știute la achiziție: taxe notariale, comisioane etc.

Acces la informații premium după autentificare
Login Gratuit

Proprietăți similare

Apartament cu 2 camere decomandat în Aeroport
104.000 €
Sibiu, Aeroport
2 camere
50,91 mp
Parter / 2
Apartament cu 2 camere decomandat în Veterani
95.100 €
Sibiu, Veterani
2 camere
66,45 mp
Parter
Apartament cu 2 camere decomandat în Tineretului
103.000 €
Sibiu, Tineretului
2 camere
49 mp
Etaj 1 / 4

Detalii de contact

MAAC Imobiliare

David Posa Consultant Imobiliar

MAAC Imobiliare
PRO

Abonează-te la newsletter să fii primul care primește cele mai noi recomandări de proprietăți și sfaturi de la experți.

CONTACT

Creează alertă

Salvează căutarea ca să primești pe email ultimele anunțuri publicate

Apartamente cu 2 camere de vânzare în zona Veterani, Sibiu