1

Apartament 3 camere | 72.35 MPU | Balcon | Veterani

119.400 €

Veterani, Sibiu

Nr. cam.:
3
Sup. utilă:
72,35 mp
Etaj:
Parter / 3
An constr.:
2026 (În construcție)
  • • Locație aproximativă
  • • Vizionare prin apel video

Descriere apartament

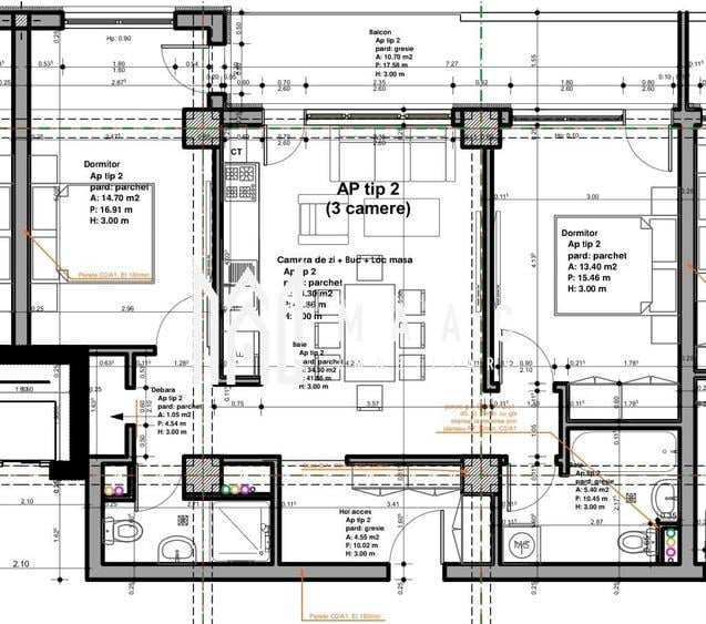
MAAC Imobiliare vă propune spre vânzare un apartament cu 3 camere modern, situat într-un ansamblu rezidențial nou, conceput pentru a oferi un standard ridicat de confort si funcționalitate. Locuința face parte dintr-un imobil cu regim redus de înalțime (D+P+2E+Er ) , dotat cu lift si construit pe o structură solidă din beton hidroizolat, cu placa peste ultimul nivel. Amplasarea ansamblului facilitează accesul rapid către Jumbo, beneficiind de drumuri care vor fi complet asfaltate de către dezvoltator. Apartamentul are o suprafață utilă de 72.35 mp si este situat la parter, blocul fiind în acest moment în stadiu de construcție, cu termen de predare la cheie în luna septembrie. Compartimentarea este de tip decomandat și foarte eficientă: o zona de zi generoasă care include livingul, bucătăria și locul de luat masa, două dormitoare spațioase, două băi, hol de acces și o debara. Finisajele pot fi alese în funcție de preferințele dumneavoastră, manopera fiind asigurată de dezvoltator. Confortul termic este garantat prin centrală proprie și încălzire prin pardoseală, iar liniștea interioară este susținută de panourile fonice montate la fiecare nivel. Ansamblul este gândit ca o comunitate completă, urmând să includă în viitor creșa, gradiniță, un parc pentru relaxare și spații comerciale la parterul imobilelor (10 blocuri in total). Există posibilitatea achiziționării separate a unui loc de parcare în subteran și a unei boxe pentru depozitare. Caracteristici principale: Compartimentare: Camera de zi + Bucătărie + Loc de masa (open space), 2 Dormitoare, 2 Băi, Hol acces, Debara, Balcon spațios (10.70 mp) Facilități ansamblu: Izolație fonică, loc de joacă pentru copii, viitoare creșă/gradiniță, acces facil spre Jumbo Condiții plată: Avans minim 15% Pentru mai multe detalii tehnice sau programarea unei vizionări, contactați-ne si specificați ID:CP2968297.
Citește mai mult Citește mai puțin
Confort 1 Decomandat Nemobilat 2 Balcoane / Terase / Logii Încălzire prin pardoseală

Detalii apartament

ID anunț: XCSI106U4 Copiat! 275427858 Copiat!
Actualizat în: 27 Mai 2026
Suprafață construită: 94.05 mp
Nr. bucătării: 1
Nr. băi: 2
Structură rezistență: Beton
Tip imobil: Bloc de apartamente
Tip tranzacție: De vânzare prin agent
Regim înălțime: S+P+3E
Modalitate de plată: Cash sau Credit

Utilități

Destinație
Rezidențial
Izolații termice
Exterior Interior
Ferestre cu geam termopan
PVC
Contorizare
Apometre Contor gaz
Alte spații utile
Debara
Facilități imobil
Lift
Utilități
Curent Apă Canalizare CATV Gaze Telefon
Internet
Cablu
Amenajare străzi
Mijloace de transport în comun De pământ
Comision
standard

Disponibilitate proprietate:

Imediat

Puncte de interes

Mijloace transport
bus-station
Klagenfurt
Stații autobuz aprox. 1189 m
bus-station
Landshut
Stații autobuz aprox. 1211 m
bus-station
Obi
Stații autobuz aprox. 1370 m
bus-station
Lisabona
Stații autobuz aprox. 1377 m
Școală
school
Scoala Generala Nr. 23
Școli aprox. 1411 m
Recreere
park
Parc
Parcuri aprox. 1939 m

Detalii despre preț și costuri

Prețul pe piață

Preț cerut: 119.400 €

Preț min. zonă
Preț max. zonă

70% dintre proprietățile similare ca zonă și nr. camere au prețul cerut mai mare. mai multe...

Bine de știut: prețul unei proprietăți este influențat și de alte caracteristici, cum ar fi: vechime, localizare, vecinătăți, suprafață, compartimentare, amenajări, dotări, etc. mai puțin...

Acces la informații premium după autentificare
Login Gratuit

Costuri cu achiziția

Fără credit
Credit ipotecar
Noua casă

i

Costuri adiționale mai puțin știute la achiziție: taxe notariale, comisioane etc.

Acces la informații premium după autentificare
Login Gratuit

Proprietăți similare

Apartament cu 3 camere decomandat în Veterani
119.400 €
Sibiu, Veterani
3 camere
72 mp
Etaj 1 / 3
Apartament cu 3 camere decomandat în Veterani
119.400 €
Sibiu, Veterani
3 camere
72,35 mp
Parter / 3
Apartament cu 3 camere decomandat în Veterani
119.400 €
Sibiu, Veterani
3 camere
72,35 mp
Etaj 2 / 3

Detalii de contact

MAAC Imobiliare

Alexandra Andreea Stanciu Consultant imobiliar

MAAC Imobiliare
PRO

Abonează-te la newsletter să fii primul care primește cele mai noi recomandări de proprietăți și sfaturi de la experți.

CONTACT

Creează alertă

Salvează căutarea ca să primești pe email ultimele anunțuri publicate

Apartamente cu 3 camere de vânzare în zona Veterani, Sibiu