Comision 0! Apartament intabulat, de vanzare in Localitatea Talmaciu, cu suprafata utila de 70.55 mp, pozitionata la etajul 1 al unui imobil constructie noua anul 2024, compus din Parter+3Etaje+M ce beneficiaza de locuri private de parcare.
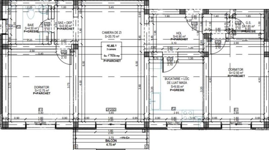
Locuinta are suprafata de 70.55 mp utili si este compusa din camera de zi de 20.70 mp, dormitor de 12.75 mp, dormitor de 12.50 mp, bucatarie de 9.55 mp, hol cu spatiu pentru pantofar si cuier de 6.90 mp, baia de 4.50 mp dotata cu geam de aerisire, wc servici de 1,65 mp si sas de 2 mp. Separat de suprafata utila mai beneficiaza de un balcon de 4.75 mp.
In pretul de achizitie este inclus si locul de parcare care se este amenajat, delimitat si amplasat in fata imobilului.
Locuinta se preda la stadiul de alb cu urmatoarele dotari incluse:
- Usa de metal la intrarea în apartamente;
- Pereti tencuiti ( tencuieli pe baza de var-ciment ), gletuiti si zugraviti in lavabila alba;
- tamplarie PVC cu 5 camere si 3 foi de sticla;
- incalzire prin pardoseală, centrala termica proprie in condensatie si detector gaz;
- sisteme elecrice din cupru si sigurante pentru consumatorii de putere;
- Instalatii pentru curentii slabi Internet, Telefon, TV;
- Racorduri apa-canal in bucatarie si bai;
- Racord gaz metan la bucatarie;
- Instalații pentru gaz, curent electric si apa, contorizare individuala si contoare montate.
Imobilul in care se afla locuinta este edificat pe structura de cadre din beton si caramida de 30 cm izolata cu polistiren de 10 cm cu densitatea EPS80 si zugravit cu decorativa siloconata colorata in masa de exterior.
Casa scarii dispune de lift, acces securizat, scari placate cu granit si gresie antiderapanta, mana curenta din teava rectangulara, plafoniere cu senzori de miscare si zugraveli in lavabila alba.
Spatile comune exterioare respectiv curtea complexului dispune de spații verzi amenajate cu gazon, arbuști și plante decorative.Locurile de parcare sunt supraterane, delimitate si pavate cu dale din beton. Aleile pietonale sunt pavate cu dale din beton si delimitate de spatii verzi.
Pretul de achizitie a locuintei la avans de 15% este de 102.950 euro, se poate achizitiona si prin credit ipotecar. ID Intern: 2402.
Sediul central - Timișoara
Bulevardul Victor Babeș nr. 2, 300230, Timișoara, România
Tel: +40.374.40.44.98 / Fax: +40.256.401.179
Email: suport@imobiliare.ro
Luni - Vineri 08:00 - 20:00
Punct de lucru - București: Iride Business Park, Bld. Dimitrie
Pompeiu 9-9A, Clădirea B2B,
020335, Sector 2, București, România
CONTACT
Sediul central - Timișoara
Bulevardul Victor Babeș nr. 2, 300230, Timișoara, România
Tel: +40.374.40.44.98 / Fax: +40.256.401.179
Email: suport@imobiliare.ro
Luni - Vineri 08:00 - 20:00
Punct de lucru - București: Iride Business Park, Bld. Dimitrie
Pompeiu 9-9A, Clădirea B2B,
020335, Sector 2, București, România
Sună acum și cere detalii sau programează o vizionare.
Cere detalii prin email
*
*
*
*
Stații autobuz
Școli
Gradinițe
Parcări
Parcuri
Restaurant
Talmaciu
aprox.
434 m
Liceul Tehnologic Johanes Lebel
aprox.
130 m
Centrul de Examenari
aprox.
138 m
Liceul Tehnologic Johanes Lebel
aprox.
169 m
Scoala Gimnaziala
aprox.
407 m
Gradinita nr 1
aprox.
900 m
Parcare
aprox.
1568 m
Parcare
aprox.
1575 m
Parc
aprox.
391 m
Parc
aprox.
441 m
Fast Food
aprox.
440 m
Poiana Soarelui
aprox.
1844 m
Înainte să pleci...
Ești sigur că ai văzut și aceste proprietăți?
59.450 €
Județul Sibiu, Tălmaciu
1 camere
41 mp
Etaj 1
62.350 €
Județul Sibiu, Tălmaciu
2 camere
43 mp
Etaj 1 / 4
134.900 €
Sibiu, Arhitecților - Calea Cisnădiei
4 camere
109,33 mp
Etaj 1 / 1
115.000 €
Județul Sibiu, Șelimbăr
3 camere
67 mp
Etaj 2
167.500 €
Județul Sibiu, Șelimbăr
4 camere
91 mp
Etaj 5
157.700 €
Județul Sibiu, Șelimbăr
4 camere
80,94 mp
Etaj 1
Creează alertă
Salvează căutarea ca să primești pe email ultimele anunțuri publicate
Apartamente cu 3 camere de vânzare în Tălmaciu, Județul Sibiu
Cere detalii prin email
*
*
*
*
Detaliile tale de contact vor fi partajate cu Atum Imobiliare
Preț total530.934 RON (104.176 €)
Costuri cu achiziția6.250 RON
Preț de achiziție524.684 RON
Costuri cu achiziția6.250 RON
Comision agenție Întreabă agenţia
Onorariu notarial5.463 RON
Taxă înscriere OCPI787 RON
Preț de achiziție524.684 RON
Preț locuință524.684 RON
TVA 0%Inclus în prețul cerut
Cost total88.485 RON (17.361 €)
Avans (15%)78.703 RON
Cost achitat în prima lună1.982 RON
Costuri cu achiziția7.800 RON
Cost achitat în prima lună1.982 RON
Comision analiză dosar
400 RON - 900 RON
Taxă evaluare imobil(până la)
575 RON
Rata lunară (variabilă)2.337 RON
Asigurare anuală imobil525 RON
Arhivă electronică102 RON
Poliță PAD130 RON
Asigurare de viață/lună Costul este variabil. În funcție de banca aleasă, procentul variază între 0.0259% și 0.035% din soldul creditului.
Costuri cu achiziția7.800 RON
Comision agenție Întreabă agenţia
Onorariu notarial5.463 RON
Taxă întabulare OCPI787 RON
Autentificare contract credit1.550 RON
Preț de achiziție524.684 RON
Preț locuință524.684 RON
TVA 0%Inclus în prețul cerut
Preț de achiziție524.684 RON
Preț locuință524.684 RON
TVA 0%
Inclus în prețul cerut
Avans minim78.703 RON
Credit pe 30 de ani445.982 RON
Cost achitat în prima lună
Taxa evaluare imobil(până la)
575 RON
Rata lunară (variabilă)3.134 RON
Depozit colateral9.402 RON
Comision de garantare FNGCIMM44 RON
Asigurare anuală imobil525 RON
Poliță PAD130 RON
Tarif arhivă electronică102 RON
Costuri adiționale665 RON + taxe notariale
Asigurare viață și complexă (opțională)Costul este variabil. În funcție de banca aleasă, procentul variază între 0.0259% și 0.035% din soldul creditului
Onorariu notarialconform tarif notarial
Taxă întabulare OCPI665 RON
i
Toate valorile de mai sus sunt estimative și nu reprezintă în mod obligatoriu costurile exacte pe care le veți primi de la companiile/instituțiile prin care veți încheia tranzacția.