1

APARTAMENT NOU, OCUPABIL IMEDIAT, COMISION 0%

132.797 €

Aradului, Timișoara

Nr. cam.:
2
Sup. utilă:
53,3 mp
Etaj:
8 / 9
An constr.:
2024 (Finalizată)
  • • Comision 0%
  • • Locație aproximativă
  • • Vizionare prin apel video

Descriere apartament

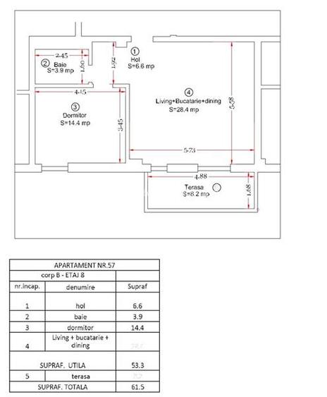
LANDMARK prezinta spre vanzare un apartament nou cu 2 camere, confort 1, open space, situat in zona Aradului – Torontalului, intr-un imobil modern finalizat in 2025, prevazut cu doua lifturi de ultima generatie. Pozitionat la etajul 8 din 9, apartamentul beneficiaza de o perspectiva panoramica impresionanta, oferita de terasa de 8.2 mp, un spatiu ideal pentru relaxare si momente de liniste. Cu o suprafata utila de 53.3 mp, locuinta se remarca prin finisaje contemporane si o compartimentare eficienta, pregatita sa fie personalizata dupa propriile preferinte. Apartamentul este complet finisat, intabulat, iar predarea se realizeaza imediat, la semnarea contractului. Confortul termic este asigurat la cele mai inalte standarde, prin centrala proprie, incalzire in pardoseala si termostate de ambient in fiecare camera. De asemenea, sistemul de climatizare integrat garanteaza un mediu placut in orice sezon. Localizarea este una excelenta, intr-o zona bine cotata, cu acces rapid la magazine, scoli, parcuri si facilitati urbane, facand din aceasta proprietate o alegere perfecta pentru un stil de viata dinamic si rafinat. Pretul este de 109.750 € + TVA. Suplimentar se achizitioneaza un loc de parcare acoperit la pretul de 10000 euro + TVA. ID intern: 209865.
Citește mai mult Citește mai puțin
Confort 1 Nedecomandat Nemobilat 1 Balcon / Terasă / Logie Aer condiționat Centrală proprie Încălzire prin pardoseală

Detalii apartament

ID anunț: X6CI100JH Copiat! 256500731 Copiat!
Actualizat în: 03 Aprilie 2026
Suprafață utilă totală: 53.3 mp
Suprafață construită: 61.5 mp
Nr. băi: 1
Structură rezistență: Altele
Tip imobil: Bloc de apartamente
Tip tranzacție: De vânzare prin agent
Regim înălțime: P+9E
Modalitate de plată: Cash sau Credit

Utilități

Destinație
Rezidențial
Pereți
Faianță Vopsea lavabilă
Podele
Parchet Gresie
Izolații termice
Exterior
Facilități imobil
Lift
Utilități
Apă Curent Gaze Canalizare
Amenajare străzi
Asfaltate
Comision
0%

Certificat energetic:

Clasa energetică: B

Puncte de interes

Mijloace transport
bus-station
Statie U.T.T. E1, T17
Stații autobuz aprox. 434 m
bus-station
U.T.T.
Stații autobuz aprox. 434 m
trolleybus-station
Statie Piata Verde/Liege T17
Stații troleibuz aprox. 654 m
tram-station
Statie Torontal Tv4, Tv6
Stații tramvai aprox. 1036 m
Școală
university
Biblioteca
Universități aprox. 506 m
university
Universitatea de Stiinte Agricole si Medicina Veterinara a Banatului
Universități aprox. 574 m
school
Facultatea de Agronomie
Școli aprox. 601 m
kindergarten
Gradinita Program Prelungit Nr. 37
Gradinițe aprox. 742 m
Recreere
supermarket
Mini-Market
Supermarket aprox. 258 m
park
Parc de joaca copii
Parcuri aprox. 392 m
hypermarket
Decathlon
Hipermarket aprox. 1151 m
mall
Kappa Centrul Comercial
Mall aprox. 1762 m

Detalii despre preț și costuri

Prețul pe piață

Preț cerut: 132.797 €

Preț min. zonă
Preț max. zonă

61% dintre proprietățile similare ca zonă și nr. camere au prețul cerut mai mic. mai multe...

Bine de știut: prețul unei proprietăți este influențat și de alte caracteristici, cum ar fi: vechime, localizare, vecinătăți, suprafață, compartimentare, amenajări, dotări, etc. mai puțin...

Acces la informații premium după autentificare
Login Gratuit

Costuri cu achiziția

Fără credit
Credit ipotecar
Noua casă

i

Costuri adiționale mai puțin știute la achiziție: taxe notariale, comisioane etc.

Acces la informații premium după autentificare
Login Gratuit

Proprietăți similare

Apartament cu 2 camere decomandat în Aradului
109.000 €
Timișoara, Aradului
2 camere
54 mp
Etaj 3
Apartament cu 2 camere semidecomandat în Aradului
115.800 €
Timișoara, Aradului
2 camere
49 mp
Etaj 1
Apartament cu 3 camere decomandat, mobilat în Aradului
113.000 €
Timișoara, Aradului
3 camere
64 mp
Parter / 5

Detalii de contact

Abonează-te la newsletter să fii primul care primește cele mai noi recomandări de proprietăți și sfaturi de la experți.

Feedback apel

CONTACT

Creează alertă

Salvează căutarea ca să primești pe email ultimele anunțuri publicate

Apartamente noi cu 2 camere de vânzare în zona Aradului, Timișoara