7

Aradului | Dezvoltator | 2 camere | Terasa de 29 mp | Disponibil imediat

115.000 € + TVA

Aradului, Timișoara

Nr. cam.:
2
Sup. utilă:
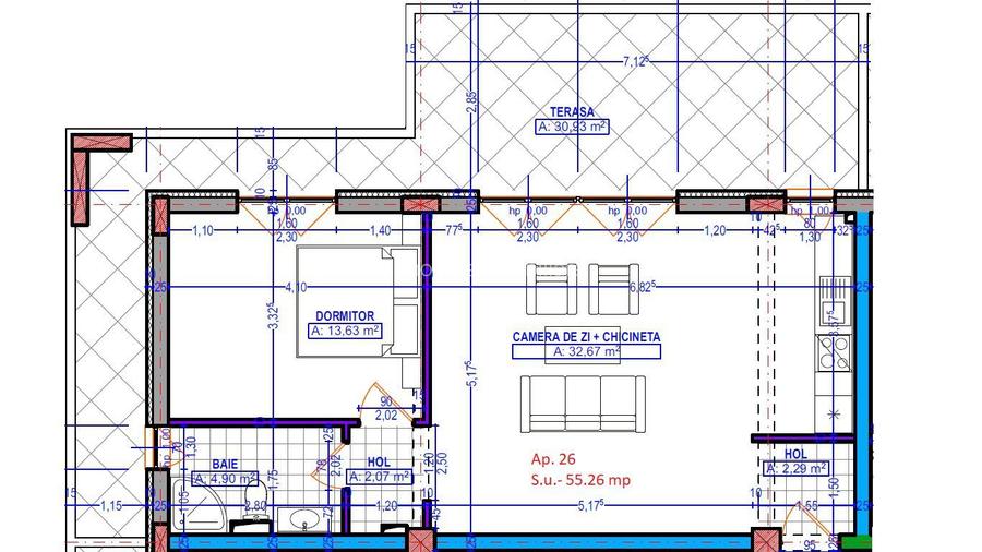
55,8 mp
Etaj:
5 / 5
An constr.:
2023 (Finalizată)
  • • Comision 0%
  • • Exclusivitate
  • • Locație exactă

Descriere apartament

Ansamblul de locuinte Marginii 4 iti pune la dispozitie un total de 58 apartamente cu 2 si 3 camere, apartamente de tip Penthouse, 8 spatii comerciale la parter si are un nivel de parcari subterane, care gazduieste un numar suficient de parcari si boxe pentru depozitare, pregatit pentru montare stații de încărcare autoturisme electrice și hybrid. Situat intr-o zona apreciata de toti Timisorenii: zona Aradului. Aceasta zona iti ofera acces la transport public, spatii verzi, unitati bancare, unitati medicale, scoli publice si private, centre comerciale. Facilitati: o Beton clasa C 30/37 ( B 450 ), beton folosit la toata constructia o Izolatie fonică între apartamente o Gresie si faianța la alegere o Balcoane de tip logie o Rulouri de aluminiu electrice o Tamplarie exterioara marca Rehau PVC cu sticla tripla o Usi interioare o Incalzire in pardoseala marca Rehau o Termostat de ambient in fiecare camera o Centrala proprie in condensatie Bosch o Instalație electrica Gewis o Instalatie sistem climatizare o Lift Sunt disponibile si alte tipuri de apartamente cu suprafete cuprinse intre 49 si 74 mp. 2 camere: - 56 mp utili + terasa 29 mp, etaj retras 3 camere: - 69 mp utili + terasa 10mp, etaj 1-4 - 71 mp utili + terasa 10 mp, etaj 1-4 - 74 mp utili + terasa 10 mp, etaj 1-4 - 75.82 mp utili + terasa 42.53 mp, etaj retras - 76.58 mp utili + terasa 44 mp, etaj retras Pretul afisat nu contine TVA!!!
Citește mai mult Citește mai puțin
Confort 1 Decomandat Nemobilat 1 Balcon / Terasă / Logie Centrală proprie Încălzire prin pardoseală 1 Parcare

Detalii apartament

ID anunț: X84C100TI Copiat! 408324 Copiat!
Actualizat în: 16 Martie 2026
Suprafață construită: 97.6 mp
Nr. bucătării: 1
Nr. băi: 1
Structură rezistență: Cărămidă
Tip imobil: Bloc de apartamente
Regim înălțime: D+P+5E

Utilități

Destinație
Rezidențial
Pereți
Faianță Vopsea lavabilă
Podele
Gresie Parchet
Rulouri/Obloane
Aluminiu
Ușă intrare
Metal
Uși interior
Celulare
Izolații termice
Exterior Interior
Ferestre cu geam termopan
PVC
Contorizare
Apometre Contor gaz
Diverse
Telecomandă poartă acces auto
Facilități imobil
Interfon Lift
Utilități
Curent Apă Canalizare CATV Gaze Telefon
Internet
Cablu
Amenajare străzi
Iluminat stradal Mijloace de transport în comun Asfaltate
Comision
0%

Vecinătăți:

Hornbach, Selgros, Auchan, Decathlon, British School, Facultatea de Agronomie, Mega Image, Spitalul Premiere (Regina Maria), Momax

Disponibilitate proprietate:

Imediat

Puncte de interes

Mijloace transport
bus-station
Statie Giratie Selgros E1
Stații autobuz aprox. 275 m
bus-station
Selgros
Stații autobuz aprox. 379 m
trolleybus-station
Statie Ion Ionescu de la Brad T14
Stații troleibuz aprox. 1100 m
tram-station
Statie Torontal Tv4, Tv6
Stații tramvai aprox. 1842 m
Școală
school
Grup Scolar Agricol Iulian Dracea
Școli aprox. 365 m
school
Grup Scolar Agricol "Iulian Dracea" Timisoara
Școli aprox. 374 m
university
Universitatea de Stiinte Agricole si Medicina Veterinara a Banatului
Universități aprox. 599 m
kindergarten
Gradinita Scooby
Gradinițe aprox. 1121 m
Recreere
supermarket
Auchan
Supermarket aprox. 131 m
sports-ground
Teren sportiv
Terenuri sport aprox. 289 m
hypermarket
Decathlon
Hipermarket aprox. 445 m
park
Parc
Parcuri aprox. 525 m

Detalii despre preț și costuri

Prețul pe piață

Preț cerut: 115.000 €

Preț min. zonă
Preț max. zonă

62% dintre proprietățile similare ca zonă și nr. camere au prețul cerut mai mic. mai multe...

Bine de știut: prețul unei proprietăți este influențat și de alte caracteristici, cum ar fi: vechime, localizare, vecinătăți, suprafață, compartimentare, amenajări, dotări, etc. mai puțin...

Insight premium disponibil după login

Costuri cu achiziția

Fără credit
Credit ipotecar
Noua casă

i

Costuri adiționale mai puțin știute la achiziție: taxe notariale, comisioane etc.

Insight premium disponibil după login

Proprietăți recomandate

Detalii de contact

ImoWest Imobiliare

Alexandru Negrescu Senior Consultant

5.00(4 review-uri)

ImoWest Imobiliare
PRO

Abonează-te la newsletter să fii primul care primește cele mai noi recomandări de proprietăți și sfaturi de la experți.

Feedback apel

CONTACT

Creează alertă

Salvează căutarea ca să primești pe email ultimele anunțuri publicate

Apartamente noi cu 2 camere de vânzare în zona Aradului, Timișoara