1

ARADULUI - BLOC NOU - LIFT - 3 CAMERE - 2 BAI - 2 BALCOANE - INCALZIRE PARDOSE -

199.900 €

Aradului, Timișoara

Nr. cam.:
3
Sup. utilă:
82 mp
Etaj:
9 / 10
An constr.:
2018 (Finalizată)
  • • Locație aproximativă
  • • Vizionare prin apel video

Descriere apartament

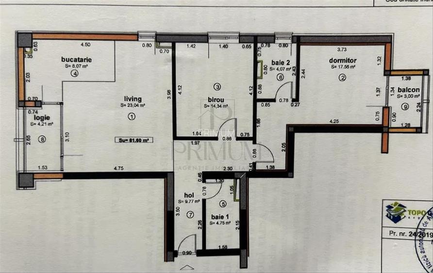
Agentia Imobiliara PRIMUM - Timisoara are placerea de a va prezenta spre vanzare apartament cu 3 camere, openspace, complet MOBILAT SI UTILAT, situat în Timișoara, Zona ARADULUI, zona linistita, usor accesibila, aproape de principalele puncte de interes: multiple mijloace de transport în comun; acces rapid către supermarketuri, magazine, farmacii; în proximitatea școlilor, grădinițelor și parcurilor. Aceasta se afla la etajul 9, intr-un imobil cu 10 nivele in bloc NOU - 2018, ANVELOPAT termic si cu 2 LIFTURI. Apartamentul este openspace - decomandat cu suprafață utilă 82 mp, si prezinta urmatoarea compartimentare: • 1 Hol acces • 2 Bai dintre care una cu geam • 1 Living + 1 Bucatarie openspace • 2 Dormitoare • 1 Balcon + 1 Logie De asemenea mai dispune de 1 BOXA si 1 LOC DE PARCARE acoperit incluse in PRET. (conform CF). Confortul termic se realizeaza prin centrală proprie cu INCALZIRE IN PARDOSEALA si 2xA C. Apartamentul oferă un ambient ideal pentru familie sau investitie (inchiriere). Apartamentul se vinde cum se vede in poze. Se accepta credit bancar! Ne angajam sa va oferim consultanta imobiliara si financiara pe toata durata procesului de tranzactie. Detaliile cu caracter tehnic ne sunt furnizate de catre proprietar. Mai multe detalii telefonic!
Citește mai mult Citește mai puțin
Confort lux Decomandat 2 Balcoane / Terase / Logii Aer condiționat Centrală proprie Încălzire prin pardoseală 1 Parcare

Detalii apartament

ID anunț: XCPS10BB1 Copiat! 275317299 Copiat!
Actualizat în: 19 Martie 2026
Suprafață utilă totală: 82 mp
Suprafață construită: 90 mp
Nr. bucătării: 1
Nr. băi: 2
Structură rezistență: Altele
Tip imobil: Bloc de apartamente
Regim înălțime: P+10E

Utilități

Destinație
Rezidențial
Pereți
Faianță Vopsea lavabilă
Podele
Parchet Gresie
Ușă intrare
Metal
Uși interior
Lemn
Izolații termice
Exterior
Ferestre cu geam termopan
PVC
Contorizare
Apometre Contor gaz
Bucătărie
Utilată Mobilată
Electrocasnice
Aragaz Hotă Frigider Hotă Mașină de spălat
Facilități imobil
Lift Videointerfon
Utilități
Apă Curent Gaze Canalizare Telefon
Internet
Cablu Fibră optică Wireless Dial-up
Servicii imobil
Administrare
Amenajare străzi
Asfaltate

Vecinătăți:

Autobuz, Zona comerciala, Banca, Supermarket, Cinema, Fastfood, Benzinarie, Piata, Hotel, Parc, Mall, Restaurant/pub, Centru universitar, Scoala/gradinita

Puncte de interes

Mijloace transport
bus-station
U.T.T.
Stații autobuz aprox. 20 m
bus-station
Statie U.T.T. E1, T17
Stații autobuz aprox. 77 m
trolleybus-station
Statie Piata Verde/Liege T17
Stații troleibuz aprox. 507 m
tram-station
Statie Torontal Tv4, Tv6
Stații tramvai aprox. 1056 m
Școală
school
Grup Scolar Agricol "Iulian Dracea" Timisoara
Școli aprox. 457 m
school
Grup Scolar Agricol Iulian Dracea
Școli aprox. 468 m
kindergarten
Kids Club Allegria
Gradinițe aprox. 493 m
university
Biblioteca
Universități aprox. 507 m
Recreere
supermarket
Penny market
Supermarket aprox. 136 m
park
Parc de joaca copii
Parcuri aprox. 264 m
hypermarket
Decathlon
Hipermarket aprox. 1033 m
mall
Kappa Centrul Comercial
Mall aprox. 1517 m

Detalii despre preț și costuri

Prețul pe piață

Preț cerut: 199.900 €

Preț min. zonă 85.000 €
Preț max. zonă 187.566 €

i

Proprietate cu prețul cerut în afara intervalului mai multe...

Posibile explicații pentru faptul că prețul proprietății este peste cel maxim: imobil nou cu suprafață mare, are dotări și finisaje de lux.
Bine de știut: prețul unei proprietăți este influențat și de alte caracteristici, cum ar fi: vechime, localizare, vecinătăți, suprafață, compartimentare, amenajări, dotări, etc.

Costuri cu achiziția

Fără credit
9.765 RON
Credit ipotecar
11.726 RON
Noua casă
1.159 RON+ taxe notariale

i

Costuri adiționale mai puțin știute la achiziție: taxe notariale, comisioane etc.

Proprietăți similare

Apartament cu 2 camere, mobilat în Aradului
180.000 €
Timișoara, Aradului
2 camere
54 mp
Etaj 2
Apartament cu 3 camere în Aradului
190.900 € + TVA
Timișoara, Aradului
3 camere
81 mp
Etaj 9
Apartament cu 3 camere decomandat, mobilat în Aradului
209.990 €
Timișoara, Aradului
3 camere
82 mp
Etaj 9

Detalii de contact

PRIMUM

Cristi Tache Consultant Imobiliar

4.23(5 review-uri)

PRIMUM
PRO

Abonează-te la newsletter să fii primul care primește cele mai noi recomandări de proprietăți și sfaturi de la experți.

CONTACT

Creează alertă

Salvează căutarea ca să primești pe email ultimele anunțuri publicate

Apartamente cu 3 camere de vânzare în zona Aradului, Timișoara