Compartimentari excelente. Pret accesibil. Luminos ! TVA inclus !

80.500 €

Braytim, Timișoara

Nr. cam.:
2
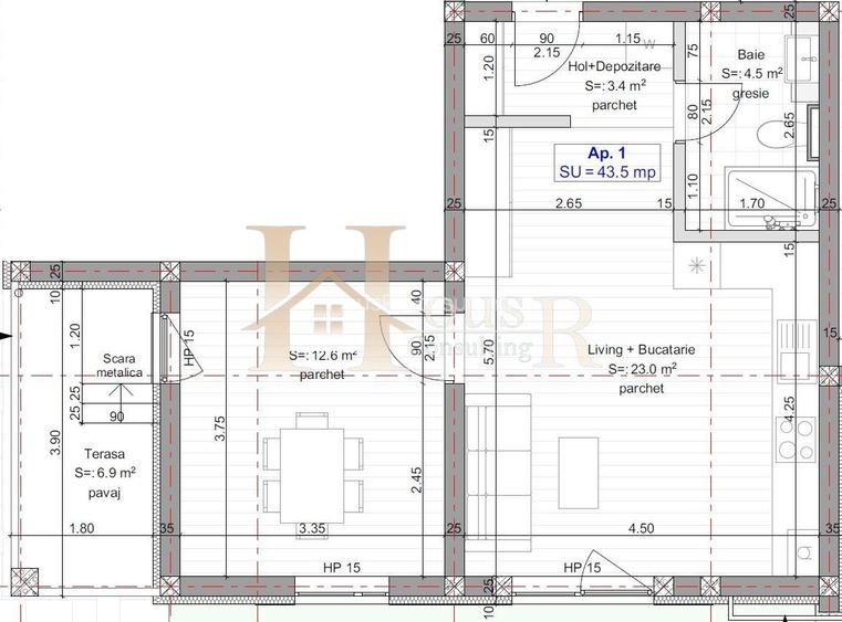
Sup. utilă:
43,5 mp
Etaj:
Parter / 3
An constr.:
2026 (În construcție)
  • • Locație aproximativă

Descriere apartament

"HousR" va propune un proiect cu apartamente de 2, 3 camere, la preturi accesibile, situat in zona rezidentiala cartierul Braytim. La construire s-au folosit materiale de cea mai buna calitate, iar apartamentele se predau "la cheie" cu parchet laminat, gresie, faianta, usi interioare, obiecte sanitare in bai, ferestre cu tamplarie PVC si geam termopan cu sticla tripla. Apartamentele dispun de centrala proprie cu incalzire in pardoseala. Detalii de constructie: - regim de inaltime Parter+2 Etaje+Etaj retras, cu placa de beton peste ultimul etaj; - structura din beton, zidarie exterioara (30 cm) si interioara din caramida, izolatie cu polistiren de 10 cm (EPS80). Modele: PARTER: - 2 camere, cu suprafata utila de 43,5 m.p. + balcon, pret 80.500 Euro; - 2 camere, cu suprafata utila de 45 m.p. + balcon, pret 83.400 Euro; - 2 camere, cu suprafata utila de 46 m.p. cu bucatarie inchisa + gradina, pret 92.500 Euro; - 2 camere, cu suprafata utila de 52,3 m.p. + balcon, pret 96.750 Euro; ETAJ 1, 2, 3: - 2 camere, cu suprafata utila de 45 m.p. + balcon, pret 83.400 Euro; - 2 camere, cu suprafata utila de 46 m.p. cu bucatarie inchisa + balcon, pret 85.100 Euro; - 2 camere, cu suprafata utila de 52,3 m.p. + balcon, pret 96.750 Euro; - 3 camere, cu suprafata utila de 55 m.p. + 2 balcoane, pret 101.940 Euro; Proiectul ofera o gama variata de modele de apartamente, luminoase, spatioase si cu numeroase avantaje de compartimentare, amintind printre acestea urmatoarele: - modele decomandate; - modele cu bucatarii inchise; - bai cu geam; - balcoane spatioase; Toate preturile includ TVA 21%, si reflecta un apartament finisat "la cheie" si racordat la toate utilitatiile publice (apa, canal, gaz, curent). Termenul de predare al apartamentelor este August 2026, fotografiile fiind cu titlu informativ din alte imobile construite de acelasi dezvoltator. Fiecare apartament dispune de un loc de parcare inclus in pret. Se accepta si varianta de achizitionare prin intermediul unui credit bancar. * Solutii financiar-bancare si consultanta juridica pana la finalul tranzactiei, oferite prin intermediul colaboratorilor “HousR Consulting”.
Citește mai mult Citește mai puțin
Confort 1 Decomandat 1 Balcon / Terasă / Logie Centrală proprie Încălzire prin pardoseală 1 Parcare

Detalii apartament

ID anunț: XETJ100SJ Copiat! 268602242 Copiat!
Actualizat în: 22 Aprilie 2026
Suprafață construită: 55 mp
Nr. bucătării: 1
Nr. băi: 1
Structură rezistență: Cărămidă
Tip imobil: Bloc de apartamente
Regim înălțime: P+3E

Utilități

Destinație
Rezidențial
Pereți
Faianță Vopsea lavabilă
Podele
Gresie Parchet
Ușă intrare
Metal
Uși interior
Celulare
Izolații termice
Exterior
Contorizare
Apometre Contor gaz
Utilități
Curent Apă Canalizare CATV Gaze Telefon
Internet
Cablu
Amenajare străzi
Iluminat stradal Mijloace de transport în comun Asfaltate
Comision
standard

Vecinătăți:

- Magazine

- Scoli, gradinite

- Parcuri

- Mijloace de transport

Disponibilitate proprietate:

Imediat

Puncte de interes

Mijloace transport
tram-station
Statie I.O.T. Tv4
Stații tramvai aprox. 1199 m
bus-station
Venus
Stații autobuz aprox. 1245 m
trolleybus-station
Statie Sudului bucla T16
Stații troleibuz aprox. 1608 m
train-station
Halta Semenic Hm (en)
Stații tren aprox. 1999 m
Școală
school
Scoala Generala 20
Școli aprox. 957 m
kindergarten
Gradinita Program Normal Nr. 6
Gradinițe aprox. 965 m
school
Scoala Gimnaziala nr. 20
Școli aprox. 965 m
university
CENTRU REGIONALDE PREGATIRE PROFESIONALA PENTRU MAGISTRATI, GIROC, tIMISOARA
Universități aprox. 1829 m
Recreere
park
Parcul Ciarda Rosie
Parcuri aprox. 658 m
sports-ground
Arena Ciarda Rosie
Terenuri sport aprox. 892 m
bar
Mateo Cafe
Bar aprox. 1120 m
supermarket
Profi
Supermarket aprox. 1273 m

Detalii despre preț și costuri

Prețul pe piață

Preț cerut: 80.500 €

Preț min. zonă
Preț max. zonă

51% dintre proprietățile similare ca zonă și nr. camere au prețul cerut mai mare. mai multe...

Bine de știut: prețul unei proprietăți este influențat și de alte caracteristici, cum ar fi: vechime, localizare, vecinătăți, suprafață, compartimentare, amenajări, dotări, etc. mai puțin...

Insight premium disponibil după login

Costuri cu achiziția

Fără credit
Credit ipotecar
Noua casă

i

Costuri adiționale mai puțin știute la achiziție: taxe notariale, comisioane etc.

Insight premium disponibil după login

Proprietăți recomandate

Detalii de contact

HousR Consulting

Razvan Sanfira Consultant imobiliar

5.00(3 review-uri)

HousR Consulting
PRO

Abonează-te la newsletter să fii primul care primește cele mai noi recomandări de proprietăți și sfaturi de la experți.

Feedback apel

CONTACT

Creează alertă

Salvează căutarea ca să primești pe email ultimele anunțuri publicate

Apartamente cu 2 camere de vânzare în zona Braytim, Timișoara