6

Apartament tip Penthouse. Bloc finalizat. Toate utilitatile.

98.000 €

Braytim, Timișoara

Nr. cam.:
2
Sup. utilă:
45 mp
Etaj:
3 / 3
An constr.:
2025 (Finalizată)
  • • Exclusivitate
  • • Locație aproximativă

Descriere apartament

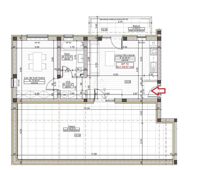
ZayHome va propune un apartament cu 2 camere cu o terasa impresionanta de 50 mp intr-un bloc nou in Giroc, la cateva minute de Timisoara. Imobilul are ca si regim de inaltime P+2E+1Er si are structura din beton cu ziduri din caramida porotherm, izolat în exterior cu polistiren de 10 cm. Apartamentul se preda finisat "la cheie" si racordat la toate utilitatile (curent, gaz, apa si canalizare). Beneficiaza de un loc de parcare inclus in pret. Detalii: - 45 mp utili + TERASA 55MP, disponibil la Etaj 3 - Pret 98.000 Euro Dotari: - Gresie, parchet si faianta din gama dezvoltatorului - Centrala proprie in condensatie - Aparat aer conditionat - Usa intrare metal Mega Door - Usi interioare Porta Doors - Loc de parcare Fiind multe de vazut si de prezentat in realitate, te invitam la o intalnire in urma careia vei obtine raspunsuri la toate intrebarile tale. Lasa procesul de achizitie al imobilului mult visat in seama noastra, vei avea mai putine griji si vei beneficia de consultanta imobiliara, financiar-bancara si juridica pe tot parcusul acestuia.
Citește mai mult Citește mai puțin
Confort 1 Aer condiționat Centrală proprie Încălzire prin pardoseală 1 Parcare

Detalii apartament

ID anunț: XC6P100VH Copiat! 275143827 Copiat!
Actualizat în: 16 Aprilie 2026
Suprafață construită: 54 mp
Nr. bucătării: 1
Nr. băi: 1
Structură rezistență: Cărămidă
Tip imobil: Bloc de apartamente
Regim înălțime: P+3E
Nr. terase: 1

Utilități

Destinație
Rezidențial
Pereți
Faianță Vopsea lavabilă
Podele
Gresie Parchet
Ușă intrare
Metal
Izolații termice
Exterior
Ferestre cu geam termopan
PVC
Contorizare
Apometre Contor gaz
Alte spații utile
Terasă
Facilități imobil
Acoperiș Interfon
Utilități
Curent Apă Canalizare CATV Gaze Telefon
Internet
Cablu
Amenajare străzi
Iluminat stradal Mijloace de transport în comun Asfaltate
Comision
standard

Vecinătăți:

Shopping :
- Kaufland, Lidl, Profi, Pepco, Penny, Mega Image
Educatie :
- Neghinita Kindergarten Club, Gradinita P.P Nr.11, Gradinita P.P Nr.1
- Scoala Generala Nr. 14
- Grup Scolar de Chimie si Protectia Mediului Azur, Liceul Teoretic Iris
Autobuze : E3, 15,Giroceana

Disponibilitate proprietate:

Noiembrie 2025

Puncte de interes

Mijloace transport
train-station
Halta Semenic Hm (en)
Stații tren aprox. 1427 m
bus-station
Giroceana
Stații autobuz aprox. 1511 m
tram-station
Statie I.O.T. Tv4
Stații tramvai aprox. 1953 m
trolleybus-station
Statie Sudului bucla T16
Stații troleibuz aprox. 1987 m
Școală
university
CENTRU REGIONALDE PREGATIRE PROFESIONALA PENTRU MAGISTRATI, GIROC, tIMISOARA
Universități aprox. 1372 m
kindergarten
Piticii din Vest
Gradinițe aprox. 1694 m
school
Scoala Generala 20
Școli aprox. 1714 m
university
Institutul de Cercetari pentru Energii Regenerabile
Universități aprox. 1920 m
Recreere
park
Parcul Ciarda Rosie
Parcuri aprox. 1403 m
restaurant
Arizona
Restaurant aprox. 1560 m
sports-ground
Arena Ciarda Rosie
Terenuri sport aprox. 1622 m
supermarket
Carrefour Market
Supermarket aprox. 1947 m

Detalii despre preț și costuri

Prețul pe piață

Preț cerut: 98.000 €

Preț min. zonă
Preț max. zonă

85% dintre proprietățile similare ca zonă și nr. camere au prețul cerut mai mic. mai multe...

Bine de știut: prețul unei proprietăți este influențat și de alte caracteristici, cum ar fi: vechime, localizare, vecinătăți, suprafață, compartimentare, amenajări, dotări, etc. mai puțin...

Insight premium disponibil după login

Costuri cu achiziția

Fără credit
Credit ipotecar
Noua casă

i

Costuri adiționale mai puțin știute la achiziție: taxe notariale, comisioane etc.

Insight premium disponibil după login

Proprietăți recomandate

Detalii de contact

Abonează-te la newsletter să fii primul care primește cele mai noi recomandări de proprietăți și sfaturi de la experți.

Feedback apel

CONTACT

Creează alertă

Salvează căutarea ca să primești pe email ultimele anunțuri publicate

Apartamente noi cu 2 camere de vânzare în zona Braytim, Timișoara