COMISION 0% | 3 camere + 16.75 mp terasa + 15 mp gradina

120.000 €

Braytim, Timișoara

Nr. cam.:
3
Sup. utilă:
70,53 mp
Etaj:
Parter / 3
An constr.:
2025 (Finalizată)
  • • Comision 0%
  • • Locație aproximativă

Descriere apartament

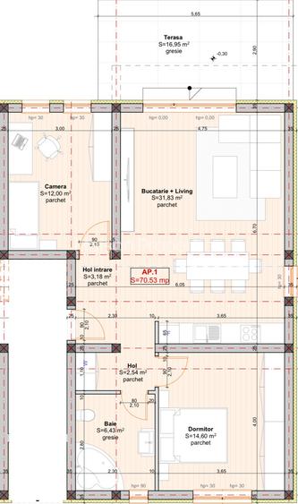
De vanzare apartament cu 3 camere, confort 1, avand o suprafata utila:-70.53 mp + 16.95 mp - terasa + 15 mp gradina, situat intr-un bloc nou in Braytim. Este compartimentata astfel: -hol acces -bucatarie -living -dormitor 1 -dormitor 2 -baie -terasa - 16.95 mp -gradina - 15 mp + 1 loc de parcare inclus in pret Incalzirea se realizeaza prin pardoseala cu ajutorul centralei proprii pe gaz. Au fost selectionate cele mai bune materiale astfel incat rezultatul final sa fie unu durabil, care sa incurajeze o investitie pe termen lung. -perete exterior - caramida 30 cm|POROTHERM -perete interior - caramida 25 cm|PORTOHERM -termoizolare cu polistiren - 12 cm -tecuiala mecanizata -glet mecanizat -vopsea lavabila -geamuri 3 sticle, 5 camere - culoare antracit|SALAMANDER -usi interior - MDF|maner negru|PORTA DOORS -gresie - faianta |TEMPINI -wc suspendat -centrala proprie pe gaz|ARISTON -video interon|ELECTRA Se vinde nemobilat, dar va putem oferi un pachet personalizat de amenajare cu design - mobilier|electrocasnice la un pret foarte accesibil care poate fi inclus in pretul de achizitie cu credit. Pret: 120.000 euro | TVA 21% inclus in pret | nemobilat - 135.000 euro | TVA 21% inclus in pret | mobilat|utilat
Citește mai mult Citește mai puțin
Confort 1 Decomandat Grădină Centrală proprie Încălzire prin pardoseală 1 Parcare Bine întreținut (Bună)

Detalii apartament

ID anunț: XF0N0002M Copiat! 270934431 Copiat!
Actualizat în: 16 Ianuarie 2026
Suprafață utilă totală: 87.48 mp
Nr. bucătării: 1
Nr. băi: 1
Structură rezistență: Beton
Tip imobil: Bloc de apartamente
Regim înălțime: P+3E

Utilități

Pereți
Faianță Vopsea lavabilă
Podele
Gresie Parchet
Ușă intrare
Metal
Uși interior
Lemn
Izolații termice
Exterior
Ferestre cu geam termopan
PVC
Contorizare
Contor gaz Apometre
Alte spații utile
Terasă
Facilități imobil
Acoperiș Videointerfon
Utilități
Curent Apă Canalizare Gaze CATV
Internet
Fibră optică
Amenajare străzi
Asfaltate Iluminat stradal Mijloace de transport în comun
Servicii imobil
Administrare

Certificat energetic:

Clasa energetică: A

Puncte de interes

Mijloace transport
bus-station
Venus
Stații autobuz aprox. 1327 m
tram-station
Statie I.O.T. Tv4
Stații tramvai aprox. 1446 m
trolleybus-station
Statie Sudului bucla T16
Stații troleibuz aprox. 1521 m
train-station
Halta Semenic Hm (en)
Stații tren aprox. 1922 m
Școală
kindergarten
Piticii din Vest
Gradinițe aprox. 1159 m
kindergarten
Gradinita Program Prelungit nr.38
Gradinițe aprox. 1280 m
school
Scoala Generala 20
Școli aprox. 1286 m
university
CENTRU REGIONALDE PREGATIRE PROFESIONALA PENTRU MAGISTRATI, GIROC, tIMISOARA
Universități aprox. 1474 m
Recreere
park
Parcul Ciarda Rosie
Parcuri aprox. 1002 m
sports-ground
Arena Ciarda Rosie
Terenuri sport aprox. 1101 m
bar
Mateo Cafe
Bar aprox. 1246 m
supermarket
Profi
Supermarket aprox. 1442 m

Detalii despre preț și costuri

Prețul pe piață

Preț cerut: 120.000 €

Preț min. zonă 90.000 €
Preț max. zonă 170.000 €

65% dintre proprietățile similare ca zonă și nr. camere au prețul cerut mai mare. mai multe...

Bine de știut: prețul unei proprietăți este influențat și de alte caracteristici, cum ar fi: vechime, localizare, vecinătăți, suprafață, compartimentare, amenajări, dotări, etc. mai puțin...

Costuri cu achiziția

Fără credit
7.023 RON
Credit ipotecar
8.645 RON
Noua casă
752 RON+ taxe notariale

i

Costuri adiționale mai puțin știute la achiziție: taxe notariale, comisioane etc.

Proprietăți recomandate

Detalii de contact

Maison Properties

Maison Properties

4.75(4 review-uri)

Maison Properties
PRO

Abonează-te la newsletter să fii primul care primește cele mai noi recomandări de proprietăți și sfaturi de la experți.

CONTACT

Creează alertă

Salvează căutarea ca să primești pe email ultimele anunțuri publicate

Apartamente noi cu 3 camere de vânzare în zona Braytim, Timișoara