1

APARTAMENTE CU 2 SI 3 CAMERE, BRAYTIM/GIROC

101.000 €

Braytim, Timișoara

Nr. cam.:
3
Sup. utilă:
58 mp
Etaj:
1 / 2
An constr.:
2025 (În construcție)
  • • Locație aproximativă

Descriere apartament

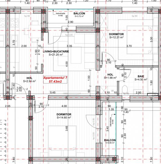
DE VANZARE, APARTAMENTE CU 3 CAMERE, 58 MP SI 2 BALCOANE, SITUATE IN GIROC, BLOC CU 2 ETAJE SI MANSARDA. Apartamentele dispun de urmatoarea compartimentare: hol acces, living cu bucataria open space cu posibilitate de a fi inchisa, 2 dormitoare din care unul este cu balcon propriu si baie cu geam. Detalii tehnice: constructie integral din caramida, izolatie cu polistiren 10 cm eps 80, tamplarie tripan, incalzire in pardoseala, loc de parcare inclus in pret. Pretul de vanzare este de 101.000 Euro. Pozele sunt cu caracter informativ de la contructii finalizate de noi! Termen finalizare: mai 2025 Va asteptam cu drag la o vizionare!
Citește mai mult Citește mai puțin
Confort 1 2 Balcoane / Terase / Logii Centrală proprie Încălzire prin pardoseală 1 Parcare Bine întreținut (Bună)

Detalii apartament

ID anunț: XCFF10286 Copiat! 275412374 Copiat!
Actualizat în: 07 Aprilie 2026
Suprafață construită: 65 mp
Nr. bucătării: 1
Nr. băi: 1
Tip imobil: Bloc de apartamente
Regim înălțime: P+2E

Utilități

Pereți
Vopsea lavabilă Faianță
Podele
Parchet Gresie
Ușă intrare
Metal
Uși interior
Lemn
Izolații termice
Exterior
Ferestre cu geam termopan
PVC
Contorizare
Apometre Contor căldură Contor gaz
Facilități imobil
Interfon
Utilități
Curent Apă Canalizare Gaze CATV Telefon
Internet
Fibră optică
Amenajare străzi
Pietruite
Comision
3%

Certificat energetic:

Clasa energetică: A

Puncte de interes

Mijloace transport
bus-station
Apicultorilor
Stații autobuz aprox. 1410 m
trolleybus-station
Statie Sudului bucla T16
Stații troleibuz aprox. 1591 m
tram-station
Statie I.O.T. Tv4
Stații tramvai aprox. 1598 m
train-station
Halta Semenic Hm (en)
Stații tren aprox. 1828 m
Școală
kindergarten
Piticii din Vest
Gradinițe aprox. 1285 m
university
CENTRU REGIONALDE PREGATIRE PROFESIONALA PENTRU MAGISTRATI, GIROC, tIMISOARA
Universități aprox. 1356 m
kindergarten
Gradinita Program Prelungit nr.38
Gradinițe aprox. 1420 m
school
Scoala Generala 20
Școli aprox. 1436 m
Recreere
park
Viitor Parc Braytim
Parcuri aprox. 1096 m
sports-ground
Arena Ciarda Rosie
Terenuri sport aprox. 1250 m
restaurant
Arizona
Restaurant aprox. 1282 m
supermarket
Profi
Supermarket aprox. 1584 m

Detalii despre preț și costuri

Prețul pe piață

Preț cerut: 101.000 €

Preț min. zonă
Preț max. zonă

61% dintre proprietățile similare ca zonă și nr. camere au prețul cerut mai mare. mai multe...

Bine de știut: prețul unei proprietăți este influențat și de alte caracteristici, cum ar fi: vechime, localizare, vecinătăți, suprafață, compartimentare, amenajări, dotări, etc. mai puțin...

Insight premium disponibil după login

Costuri cu achiziția

Fără credit
Credit ipotecar
Noua casă

i

Costuri adiționale mai puțin știute la achiziție: taxe notariale, comisioane etc.

Insight premium disponibil după login

Proprietăți similare

Apartament cu 2 camere semidecomandat în Braytim
104.999 €
Timișoara, Braytim
2 camere
53 mp
Etaj 1
Apartament cu 2 camere decomandat, mobilat în Braytim
105.000 €
Timișoara, Braytim
2 camere
47 mp
Etaj 2
Apartament cu 2 camere decomandat, mobilat în Braytim
96.000 €
Timișoara, Braytim
2 camere
45 mp
Etaj 1

Detalii de contact

Boom Estate

Petru Stefan Administrator

3.44(3 review-uri)

Boom Estate
PRO

Abonează-te la newsletter să fii primul care primește cele mai noi recomandări de proprietăți și sfaturi de la experți.

Feedback apel

CONTACT

Creează alertă

Salvează căutarea ca să primești pe email ultimele anunțuri publicate

Apartamente cu 3 camere de vânzare în zona Braytim, Timișoara