AX945 Buziasului, SAD, Bloc Nou, 2 Parcari

88.999 €

Buziașului, Timișoara

Nr. cam.:
2
Sup. utilă:
51 mp
Etaj:
Parter / 3
An constr.:
2020 (Finalizată)
  • • Locație aproximativă

Descriere apartament

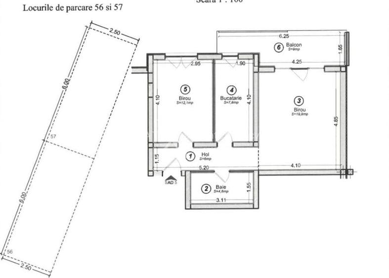
OXIA prezinta spre vanzare apartament cu 2 camere SAD (spatiu cu alta destinatie), situat in Timisoara, zona Buziasului, la parter, in imobil cu regim de inaltime P + 3Et, decomandat, cu suprafata de 51 mp utili + 9 mp terasa, compartimentat astfel: - Hol acces - Doua incaperi - Bucatarie inchisa - Terasa cu acces din Living Apartamentul beneficiaza de amenajari moderne: usa intrare antiefractie, usi interioare celulare, gresie/faianta, patchet laminat, gemuri tripan, etc. Confortul termic este asigurat prin intermediul centralei proprii pe gaz, cu incalzire in pardoseala si prin intermediul sistemului de climatizare Apartamentul dispune si de doua locuri proprii de parcare. Se vinde partial mobilat si utilat. Pret: 88 999 Euro + Comision Agentie Se accepta si achizitionarea prin intermediul unui credit bancar. Oferim consultanta financiara si juridica pe tot parcursul procesului. Pentru mai multe detalii despre aceasta proprietate, sau pentru stabilirea unei vizionari ne puteti contacta la numarul de telefon: ID Anunt: AX945
Citește mai mult Citește mai puțin
Confort 1 Decomandat Parțial mobilat Aer condiționat Centrală proprie Încălzire prin pardoseală 2 Parcări

Detalii apartament

ID anunț: XBU1101PP Copiat! 245754825 Copiat!
Actualizat în: 01 Aprilie 2026
Suprafață construită: 61 mp
Nr. bucătării: 1
Nr. băi: 1
Tip imobil: Bloc de apartamente
Regim înălțime: P+3E
Nr. terase: 1

Utilități

Pereți
Faianță Vopsea lavabilă
Podele
Gresie Parchet
Ușă intrare
Metal
Uși interior
Celulare
Izolații termice
Exterior Interior
Ferestre cu geam termopan
PVC
Contorizare
Apometre Contor căldură Contor gaz
Bucătărie
Mobilată Utilată
Electrocasnice
Aragaz Frigider Hotă
Alte spații utile
Terasă
Facilități imobil
Acoperiș Interfon
Utilități
Curent Apă Canalizare CATV Gaze Telefon
Internet
Cablu
Amenajare străzi
Iluminat stradal Mijloace de transport în comun Asfaltate
Comision
standard

Disponibilitate proprietate:

data_properties.property_availability.Imediat

Puncte de interes

Mijloace transport
tram-station
Statie Mecatim Tv4, Tv8
Stații tramvai aprox. 239 m
bus-station
Statie Fabrica de detergenti Tv4, Tv8
Stații autobuz aprox. 304 m
tram-station
Statie Spumotim Tv4, Tv8
Stații tramvai aprox. 558 m
trolleybus-station
Statie B-dul Sudului T16
Stații troleibuz aprox. 707 m
Școală
kindergarten
Gradinita Program Normal Nr. 20
Gradinițe aprox. 700 m
school
LICEUL TEORETIC "VLAD TEPES"
Școli aprox. 784 m
kindergarten
Gradinita Program Normal Nr. 19
Gradinițe aprox. 1128 m
university
Universitatea Tibiscus
Universități aprox. 1546 m
Recreere
sports-ground
Teren sportiv
Terenuri sport aprox. 434 m
park
Complex Heaven
Parcuri aprox. 507 m
supermarket
Lidl
Supermarket aprox. 769 m
public-square
Piata Aurel Vlaicu
Piețe publice aprox. 1632 m

Detalii despre preț și costuri

Prețul pe piață

Preț cerut: 88.999 €

Preț min. zonă 65.000 €
Preț max. zonă 125.000 €

55% dintre proprietățile similare ca zonă și nr. camere au prețul cerut mai mare. mai multe...

Bine de știut: prețul unei proprietăți este influențat și de alte caracteristici, cum ar fi: vechime, localizare, vecinătăți, suprafață, compartimentare, amenajări, dotări, etc. mai puțin...

Costuri cu achiziția

Fără credit
5.595 RON
Credit ipotecar
7.053 RON
Noua casă
594 RON+ taxe notariale

i

Costuri adiționale mai puțin știute la achiziție: taxe notariale, comisioane etc.

Proprietăți recomandate

Detalii de contact

Abonează-te la newsletter să fii primul care primește cele mai noi recomandări de proprietăți și sfaturi de la experți.

Feedback apel

CONTACT

Creează alertă

Salvează căutarea ca să primești pe email ultimele anunțuri publicate

Apartamente cu 2 camere de vânzare în zona Buziașului, Timișoara