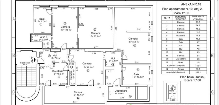
Oferim spre vânzare un apartament cu 4 camere situat central lângă Facultatea de Electronică și Telecomunicații , la etajul 2 din 2 bloc cu acoperiș și structurat astfe :
➡️ hol de acces ;
➡️ 4 camere ;
➡️ bucătărie ;
➡️ 2 băi ;
➡️ 2 holuri ;
➡️ cămara ;
➡️ spațiu de depozitare ;
➡️ 2 holuri ;
➡️ terasă de 20 de mp ;
➡️ boxa ;
➡️ curte comună unde se pot parca 2 mașini ;
Apartamentul are o suprafață de 162 mp utili , confortul termic este asigurat de centrala proprie pe gaz , necesită renovare.
Poziția excelentă îl face pretabil atât ca și investiție cât și pentru locuit . Apartamentul se poate dezmembra în 2 apartamente .
Puncte de interes :
📍 Universitaea Politehnica - 2 minute pietonal ;
📍 Centru - 8 minute pietonal ;
📍 Complex Studențesc - 15 minute pietonal ;
💶 Prețul de vânzare este de 210 000€ , ușor negociabil , comision 2 % .
☎️ Pentru mai multe detalii : ;
87%dintre proprietățile similare ca zonă și nr. camere au prețul cerutmai mare.
mai multe...
Bine de știut: prețul unei proprietăți este influențat și de alte caracteristici, cum ar fi: vechime, localizare, vecinătăți, suprafață, compartimentare, amenajări, dotări, etc.
mai puțin...
Insight premium disponibil după login
Costuri cu achiziția
Fără credit
€
Credit ipotecar
€
Noua casă
€
i
Costuri adiționale mai puțin știute la achiziție: taxe notariale, comisioane etc.
Sediul central - Timișoara
Bulevardul Victor Babeș nr. 2, 300230, Timișoara, România
Tel: +40.374.40.44.98 / Fax: +40.256.401.179
Email: suport@imobiliare.ro
Luni - Vineri 08:00 - 20:00
Punct de lucru - București: Iride Business Park, Bld. Dimitrie
Pompeiu 9-9A, Clădirea B2B,
020335, Sector 2, București, România
CONTACT
Sediul central - Timișoara
Bulevardul Victor Babeș nr. 2, 300230, Timișoara, România
Tel: +40.374.40.44.98 / Fax: +40.256.401.179
Email: suport@imobiliare.ro
Luni - Vineri 08:00 - 20:00
Punct de lucru - București: Iride Business Park, Bld. Dimitrie
Pompeiu 9-9A, Clădirea B2B,
020335, Sector 2, București, România
Sună acum și cere detalii sau programează o vizionare.
Cere detalii prin email
*
*
*
*
Stații autobuz
Stații tramvai
Stații troleibuz
Stații tren
Școli
Universități
Gradinițe
Supermarket
Parcări
Parcuri
Terenuri sport
Piețe publice
Spital
Farmacie
Restaurant
Bar
Cafenea
Pub
Bancă
Bd. Mihai Viteazu
aprox.
133 m
Statie Universitate Politehnica E8
aprox.
165 m
Stație Facultatea de Mecanica autobuz E7
aprox.
176 m
Facultatea de Electrotehnica
aprox.
180 m
Statie Facultatea de Mecanica E8
aprox.
183 m
Statie Andrei Saguna E7, T19, E3
aprox.
205 m
Podul Andrei Saguna
aprox.
333 m
Statie Universitatea de Vest E3, E7, E8
aprox.
464 m
Piata Nicolae Balcescu
aprox.
467 m
Universitatea de Vest
aprox.
471 m
Statie Catedrala Metropolitana A33, E3
aprox.
476 m
Catedrala Mitropolitana
aprox.
476 m
Piata Nicolae Balcescu
aprox.
525 m
Statie Universitatea de Vest E7, E8, E3
aprox.
541 m
Statie Mocioni E7, A33, M36, A 32, E5
aprox.
676 m
Parc Carmen Sylva
aprox.
303 m
Statie Parc Doina Tv5, Tv6, Tv7, Tv8
aprox.
306 m
Sfanta Maria
aprox.
488 m
Statie Piata Maria Tv5, Tv8
aprox.
504 m
Statie Tv6, Tv 1, Tv2
aprox.
511 m
Statie Nicolae Balcescu Tv5, Tv6, Tv7, Tv8
aprox.
514 m
Statie Catedrala Metropolitana Tv2, Tv1, Tv5
aprox.
519 m
Catedrala
aprox.
521 m
Statie Piata Maria Tv2, Tv1, Tv7, Tv8
aprox.
547 m
Sfanta Maria
aprox.
550 m
Statie Catedrala Metropolitana Tv1, Tv2, Tv6
aprox.
578 m
Piata Mocioni
aprox.
738 m
Piata Sinaia
aprox.
739 m
Statie Mocioni Tv2, Tv1, Tv8
aprox.
754 m
Statie Piata Crucii Tv5, Tv6, Tv8
aprox.
772 m
Statie Piata Regina Maria T11, T14, T18
aprox.
784 m
Statie B-dul Mihai Eminescu T19
aprox.
903 m
Statie Piata 700 T11, T14, T18
aprox.
1118 m
Statie Piata 700 T11, T13, T14, T17, T18
aprox.
1121 m
Statie Oituz T11, T17
aprox.
1474 m
Statie Bastion T11, T17
aprox.
1547 m
Statie Pop de Basesti T11, T14, T18
aprox.
1742 m
Statie Pop de Basesti T11, T14, T18
aprox.
1777 m
Statie Maresal C-tin Prezan T15, T19
aprox.
1955 m
Statie Ghe. Baritiu T11, T14
aprox.
1999 m
Gara de Nord
aprox.
1418 m
Terminal RESITA
aprox.
1506 m
Timisoara North railway station area (en)
aprox.
1774 m
"Traian Vuia" Technical University Timisoara - Faculty of Mechanics (en)
aprox.
85 m
Welding Faculty (en)
aprox.
225 m
Liceul Tehnologic Special Gheorghe Atanasiu
aprox.
378 m
Scoala de Surdomuti Gheorghe Atanasiu
aprox.
405 m
Scoala Generala Numarul 22 Timisoara - Doja (en)
aprox.
437 m
Experimentarium (UPT și UVT)
aprox.
437 m
Liceul Teoretic Grigore Moisil
aprox.
439 m
Scoala Generala Numarul 22 Timisoara
aprox.
548 m
Corp Gimnaziu
aprox.
550 m
Inspectoratul Școlar Judetean Timiș (en)
aprox.
553 m
Sala de sport
aprox.
565 m
Liceul Teoretic Grigore Moisil
aprox.
566 m
LICEUL DE ARTE PLASTICE
aprox.
570 m
LICEUL "GRIGORE MOISIL"
aprox.
596 m
Corp Liceu
aprox.
596 m
Facultatea de Mecanica
aprox.
92 m
Corpul B (en)
aprox.
121 m
Academia Romana - filiala Timisoara
aprox.
125 m
Facultatea de Electronica si Telecomunicatii
aprox.
158 m
Facultatea de Mecanica
aprox.
163 m
Corpul A (en)
aprox.
177 m
Corpul D (en)
aprox.
180 m
UPT Electro
aprox.
184 m
SPM (en)
aprox.
192 m
Universitatea Politehnica Timisoara - Electro
aprox.
200 m
Universitatea Politehnica Timisoara
aprox.
206 m
Facultatea de Management in Productie si Transporturi
aprox.
207 m
Univ. Politehnica - Fac. de Management in Productie si Transporturi
aprox.
220 m
Corpul C (en)
aprox.
229 m
Facultatea de Electrotehnica
aprox.
229 m
Gradinita Program Saptamanal Nr. 1
aprox.
537 m
Gradinita Program Normal Nr. 8
aprox.
578 m
Gradinita particulara Chip & Dale
aprox.
619 m
Gradinita Program Prelungit Nr. 21
aprox.
735 m
Gradinita Program Normal Nr. 7
aprox.
814 m
Gradinita nr. 12
aprox.
919 m
Gradinita Program Prelungit Nr. 12
aprox.
936 m
Gradinita Program Prelungit Nr. 14
aprox.
944 m
Gradinita Program Normal Nr. 17
aprox.
1049 m
Gradinita Notre Dame
aprox.
1141 m
Gradinita Baby's Land
aprox.
1170 m
Gradinita Bunul Pastor
aprox.
1253 m
Gradinita Program Prelungit C.F.R.
aprox.
1291 m
Gradinita Barbie
aprox.
1293 m
Gradinita Program Prelungit Posta
aprox.
1311 m
Profi City
aprox.
565 m
Profi Piata Sinaia
aprox.
766 m
Materna-Modern
aprox.
843 m
Carrefour
aprox.
1068 m
Carrefour Market
aprox.
1071 m
Bega Shopping Center
aprox.
1081 m
Carrefour Market
aprox.
1122 m
Profi
aprox.
1145 m
Carrefour Market
aprox.
1188 m
Profi
aprox.
1199 m
Kaufland
aprox.
1229 m
Profi
aprox.
1453 m
Profi City
aprox.
1465 m
Profi City
aprox.
1481 m
DM
aprox.
1540 m
Parcare
aprox.
160 m
Parcare UPT
aprox.
189 m
Parcare
aprox.
189 m
Parcare
aprox.
202 m
Parcare
aprox.
280 m
Parcare
aprox.
315 m
Parcare
aprox.
355 m
Parcare
aprox.
365 m
Parcare UVT
aprox.
425 m
Parcare
aprox.
432 m
Parcare
aprox.
445 m
Parcare
aprox.
459 m
Parcare
aprox.
481 m
Parcare
aprox.
503 m
Parcare
aprox.
505 m
Parc Mecanică (en)
aprox.
172 m
Parc UPT
aprox.
172 m
Parc
aprox.
249 m
Parcul Carmen Sylva
aprox.
277 m
Parcul Alpinet
aprox.
298 m
Parcul Alpinet
aprox.
302 m
Parcul Doina
aprox.
310 m
Parcul Gheorghe Doja
aprox.
347 m
Parc
aprox.
351 m
Parcul Gheorghe Doja
aprox.
361 m
Parcul justitiei
aprox.
386 m
Parc
aprox.
388 m
Parcul Justitiei
aprox.
389 m
Parcul Catedralei
aprox.
417 m
Parcul Catedralei
aprox.
417 m
Stadion Stiinta
aprox.
267 m
Teren sportiv
aprox.
273 m
Teren sportiv
aprox.
328 m
Teren sportiv
aprox.
338 m
Teren sportiv
aprox.
348 m
Teren sportiv
aprox.
355 m
Teren sportiv
aprox.
403 m
Teren sportiv
aprox.
407 m
Teren sportiv
aprox.
459 m
Teren sportiv
aprox.
498 m
Teren sportiv
aprox.
510 m
Teren sportiv
aprox.
547 m
Teren sportiv
aprox.
549 m
Teren sportiv
aprox.
564 m
Teren sportiv
aprox.
579 m
Piața Maria
aprox.
514 m
Piata Victoriei
aprox.
676 m
Piata Sinaia
aprox.
723 m
Piata Leonardo Da Vinci
aprox.
877 m
Piata Mircea Eliade
aprox.
954 m
Piata Libertatii
aprox.
1024 m
Piata Unirii
aprox.
1303 m
Piata Tepes Voda
aprox.
1310 m
Piata Aron Cotrus
aprox.
1538 m
Piata Corneliu Micloși
aprox.
1928 m
Policlinica Nr. 3
aprox.
169 m
Clinica Universitara de Obstetrica Ginecologie Bega
aprox.
454 m
Clinica BEGA Obstetrica Ginecologie
aprox.
526 m
Spitalul CFR timisoara
aprox.
562 m
Cabinet Acupunctura - Dr. Claici
aprox.
562 m
Spitalul Clinic Cai Ferate
aprox.
592 m
Spitalul de neurospihiatrie infantila
aprox.
736 m
Spitalul Clinic de Urgenta pentru Copii Louis Turcanu
aprox.
819 m
Clinica de Neonatologie - Prematuri
aprox.
825 m
Odobescu Maternity (en)
aprox.
841 m
Maternitate Spital Odobescu
aprox.
843 m
Spitalul de Obstetrica si Ginecologie
aprox.
850 m
Louis Èšurcanu Hospital (en)
aprox.
860 m
Clinica de Chirurgie si Ortopedie Pediatrica Dr. Trestianu Viorel
aprox.
905 m
Policlinica de Copii
aprox.
930 m
Mihai Viteazul
aprox.
258 m
Sf. Maria
aprox.
586 m
Sensiblu
aprox.
599 m
Farmado
aprox.
698 m
Sensiblu
aprox.
724 m
Dianthus Farmacia
aprox.
1074 m
Farmacia Dona
aprox.
1121 m
Vlad
aprox.
1254 m
Vlad
aprox.
1270 m
Dona
aprox.
1334 m
Sensiblu
aprox.
1436 m
Farmacia Catena
aprox.
1638 m
Farmacia Granathalma
aprox.
1654 m
Farmacia HelpNet
aprox.
1692 m
Richter
aprox.
1693 m
Brunch - Grab & Go
aprox.
194 m
Vaporas
aprox.
242 m
Rustic
aprox.
256 m
La Banateana
aprox.
293 m
Taco Loco (en)
aprox.
297 m
Riviere
aprox.
302 m
Casa Bunicii
aprox.
303 m
Casa Bunicii Restaurant
aprox.
315 m
Monsieur Bistro
aprox.
329 m
Flora
aprox.
347 m
Flora Restaurant (en)
aprox.
356 m
Restaurant Casa del Sole
aprox.
366 m
KOLORO
aprox.
376 m
Jardin
aprox.
416 m
Fast Food (en)
aprox.
422 m
Swiss House Club
aprox.
251 m
Manufactura
aprox.
310 m
Scart Loc Lejer
aprox.
361 m
Zanoni
aprox.
833 m
Alt Club
aprox.
973 m
Club Fratelli
aprox.
1039 m
Art Club Cafe
aprox.
1111 m
Freshious
aprox.
1127 m
Atu
aprox.
1130 m
WakeUp
aprox.
1131 m
Curtea Berarilor
aprox.
1155 m
Enoteca de Savoya
aprox.
1160 m
Arqa
aprox.
1176 m
Nouveau
aprox.
1238 m
PAGO
aprox.
1242 m
Terasa D'Arc
aprox.
278 m
BiblioTech Cafe
aprox.
314 m
Viniloteca
aprox.
437 m
Massimo
aprox.
643 m
COPA Caffe
aprox.
700 m
Tempo
aprox.
700 m
Galto di Bruno
aprox.
743 m
Starbucks
aprox.
855 m
WellPlayed Gaming Lounge
aprox.
1130 m
Spirit
aprox.
1135 m
Tucano Coffee Mexico
aprox.
1144 m
Musetti
aprox.
1161 m
Barista
aprox.
1208 m
1740 Music Cafe
aprox.
1240 m
Orlovi
aprox.
1306 m
Vineri15
aprox.
455 m
La Capite
aprox.
502 m
Habitat
aprox.
674 m
Daos Club
aprox.
814 m
Beraria 700
aprox.
1102 m
Bibliotheka 2
aprox.
1157 m
Molly Malone's
aprox.
1233 m
Irish Pub
aprox.
1241 m
Grinette
aprox.
1264 m
Rock House
aprox.
1291 m
Orlovi
aprox.
1303 m
The 80's Pub
aprox.
1327 m
Jarvis
aprox.
1336 m
Bierhaus
aprox.
1353 m
Drunken Rat
aprox.
1379 m
Banca Transilvania
aprox.
514 m
Intesa Sao Paolo Bank
aprox.
560 m
BCR
aprox.
573 m
UniCredit Bank
aprox.
604 m
BCR
aprox.
779 m
OTP Bank
aprox.
798 m
UniCredit Bank
aprox.
809 m
ING
aprox.
812 m
ING Office Timisoara
aprox.
822 m
Leumi Bank
aprox.
895 m
Raiffeisen Bank
aprox.
917 m
CEC Bank
aprox.
1010 m
OTP Bank
aprox.
1047 m
BRD, sediul principal Timisoara
aprox.
1050 m
BRD
aprox.
1050 m
Dată fiind localizarea sa, acest cartier este, de departe, cel mai bine deservit la capitolul mijloace de transport în comun "“ astfel, pe aici circulă atât o serie de tramvaie (liniile 1, 2, 4, 5, 6, 10), cât și mai multe autobuze și trolee (printre care liniile 11, 14, 15, 16, 18, 22). În mod firesc, și pasionații de ciclism sunt avantajați, în centrul orașului existând mai multe piste special amenajate, pe străzi precum Bulevardul Constantin Diaconovici Loga, Bulevardul Ion C. Brătianu, Bulevardul Republicii, Bulevardul Regele Ferdinand sau Bulevardul Mihai Viteazu.
Un avantaj important oferit de zona Cetate este că aici se găsește una dintre cele mai prestigioase instituții de învățământ superior, anume Universitatea de Medicină și Farmacie "Victor Babeș" (amplasată pe Strada Eftimie Murgu, nr. 2); de aceasta ține și Facultatea de Medicină Dentară, care-și are sediul în apropiere (pe Bulevardul Revoluției din 1989, nr. 9). Printre instituțiile de învățământ demne de menționat din centrul orașului se mai numără Grădinița 22 (de pe Strada Dimitrie Paciurea), Grădinița cu Program Prelungit "Troița" (de pe Strada Academician Alexandru Borza, nr. 8), Colegiul Tehnic "Emaniul Ungureanu" (Piața Iancu Huniade, nr. 3), Colegiul Pedagogic "Carmen Sylva" (pe Strada Ludwig van Beethoven), dar și Colegiul Național "Constantin Diaconovici Loga" (pe Bulevardul Constantin Diaconovici Loga, la nr. 37). Mai jos poți vedea în detaliu ce unități de învățământ există în cartierul Cetate.
În ceea ce privește oportunitățile de cumpărături, zona Cetate este deservită atât de o serie de magazine de dimensiuni mai mici (printre care și Profi), de un centrul comercial Bega Shopping Center. Pe lângă numeroasele magazine din sfera de fashion (și nu numai), Bega Shopping Center include și un supermarket din rețeaua Carrefour. Un avantaj pentru timișorenii din centrul orașului este și faptul că, nu departe de granițele cartierului, pot găsi și hipermarketuri: astfel o unitate din rețeaua Kaufland poate fi găsită în Circumvalațiunii (pe Strada Gheorghe Lazăr, nr. 26), iar alta în Simion Bărnuțiu-Dorobanților (pe Strada Mihail Kogălniceanu, nr. 11-15). Nu în ultimul rând, de menționat este că, în sudul cartierului Lipovei, foarte aproape de limita cu centrul, se găsește o adevărată zonă comercială, din care face parte și Iulius Mall, dar și două magazine de bricolaj (Praktiker și Dedeman).
Pentru a evita orice probleme în găsirea unui loc permanent de parcare, posesorii de autovehicule se pot adresa reprezentanților autorităților locale în ceea ce privește închirierea unui astfel de spațiu (sediul Primăriei Timișoarei se găsește chiar în cartier, pe Bulevardul Constantin Diaconovici Loga, nr. 1).
În ceea ce privește oportunitățile de recreere, timișorenii care locuiesc în zona Cetate sunt, de departe, cei mai avantajați la o comparație cu celelalte cartiere. De menționat este, în primul rând, că aceștia au acces la o multitudine de parcuri, precum Parcul Botanic, Parcul Catedralei, Parcul Civic, Parcul "I.C. Brătianu", Parcul "Regina Maria", Parcul Rozelor, Parcul Copiilor "Ion Creangă". În al doilea rând, zona vechii cetăți a orașului este foarte "bogată" în obiective de interes cultural și turistic, printre acestea numărându-se, spre exemplu, Bastionul Maria Theresia, Palatul Dicasterial, Muzeul de Artă, Casa Ormos, Casa Prenner, Casa Solderer, Casa Krautwaschl. Nu în ultimul rând, locuitorii centrului Timișoarei sunt avantajați de proximitatea zonei Complex-Stadion, unde poate fi găsit un important punct de interes pentru iubitorii de sport, anume stadionul "Dan Păltinișanu". Află, mai jos, ce alte opțiuni de petrecere a timpului liber mai ai în Cetate:
Dacă te gândești să te muți în zona Cetate, te vei bucura să afli că aici vei fi avantajat și din punctul de vedere al accesului la servicii medicale. Astfel, între granițele acestui cartier se află mai multe spitale de stat, anume Spitalul Clinic Municipal de Urgență Timișoara (de pe Strada Gheorghe Dima, nr. 5), Spitalul Militar de Urgență "Dr. Victor Popescu" (pe Strada Gheorghe Lazăr, nr. 7), dar și Spitalul Clinic de Urgență pentru Copii "Louis Țurcanu" (pe Strada Doctor Iosif Nemoianu, nr. 2). În centrul capitalei Banatului pot fi găsite, desigur, și o serie de cabinete medicale individuale. Locuitorii cartierului pot spera, astfel, atât să se înscrie la un medic de familie, cât și să se beneficieze de consultații pentru diverse specializări (stomatologie, dermatologie etc.). Pe harta de mai jos găsești localizarea exactă a spitalelor și clinicilor din zonă:
Cu siguranță aici este zona în care vei descoperi cea mai mare diversitate de restaurante, cafenele chiar și fast-food-uri. Găsești o serie de localuri în Piața Unirii, în Piața Operei precum și în Piața Sfântul Gheorghe (aceasta fiind cea mai nouă zonă de investiții în sectorul ospitalier). Vei găsi ceva pe gustul tău și la restaurantele aflate pe străzile care unesc cele trei piețe. Aruncă o privire pe hartă și vezi unde vei găsi cel mai apropiat restaurant de viitoarea ta locuință.
Aruncă o privire pe hartă și vezi unde vei găsi cel mai apropiat restaurant de viitoarea ta locuință. În ceea ce privește sucursalele bancare, găsim aici: Vista Bank (Piața Mărăști 1-2), sucursala CEK Bank (Strada Enrico Carusso, nr.1), precum și UniCredit Bank (Palatul Lloyd, Piața Victoriei 2), Garanti Bank (Strada Episcop Augustin Pacha 1) și BCR (Piața Victoriei 3, Timișoara). Consultă harta și află unde sunt localizate și alte bănci sau ATM-uri în zona de care ești interesat:
Înainte să pleci...
Ești sigur că ai văzut și aceste proprietăți?
189.000 €
Timișoara, Central
3 camere
77 mp
Etaj 10 / 10
198.000 €
Timișoara, Central
3 camere
52 mp
Etaj 4
229.000 €
Timișoara, Central
3 camere
111 mp
Parter / 2
Creează alertă
Salvează căutarea ca să primești pe email ultimele anunțuri publicate
Apartamente cu 4+ camere de vânzare în zona Central, Timișoara
Cere detalii prin email
*
*
*
*
Detaliile tale de contact vor fi partajate cu Gp24 Media Pr & Marketing