Apartament cu 2 camere de vanzare, cu boxa zona Cetatii, in Timisoara

90.000 €

Cetății, Timișoara

Nr. cam.:
2
Sup. utilă:
48 mp
Etaj:
8 / 10
An constr.:
1980 (Finalizată)
  • • Locație aproximativă
  • • Vizionare prin apel video

Descriere apartament

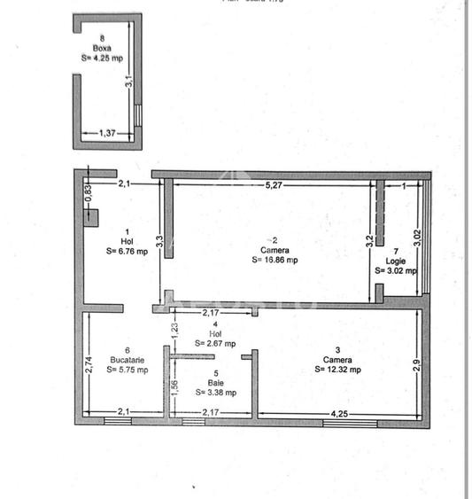
Agentia imobiliara APOSTU ESTATE va propune spre vanzare un apartament cu 2 camere, decomandat, etajul 8,situat in zona Cetatii din Timisoara, judetul Timis. Apartamentul dispune de boxa inscrisa in cf si are o suprafata utila aproximativa de 48mp. Confortul termic se realizeaza prin intermediul coltermului cu sistem de incalzire prin calorifere. Compartimentare: - hol acces spatios - bucatarie deschisa -living deschis cu balcon care a fost spart pentru a mari livingul -dormitor - baie cu cada si geam de aerisire Proprietatea se vinde cum se vede in imagini si este o varianta ideala pentru familii, cuplu, investitie. Vecinatati: Scoala generala nr.19 la 5 min de mers pe jos, mijloace de transport in comun,magazine,banci,farmacii la 3 min de mers pe jos, Iulius Mall la 5 minute de mers pe jos, Piata Unirii la 10 min de mers pe jos. Agentia imobiliara Apostu Estate va ofera consultanta bancara gratuita prin intermediul colaboratorilor nostri pentru alegerea celui mai potrivit tip de credit, astfel incat tu sa devi noul proprietar al acestui apartament. Va asteptam cu drag la o vizionare! Id Intern: CP988601!
Citește mai mult Citește mai puțin
Confort 1 Decomandat

Detalii apartament

ID anunț: XBAF10QAG Copiat! 275345311 Copiat!
Actualizat în: 20 Aprilie 2026
Nr. bucătării: 1
Nr. băi: 1
Tip imobil: Bloc de apartamente
Regim înălțime: P+10E

Utilități

Utilități
Curent Apă Canalizare CATV Gaze Telefon
Internet
Cablu
Amenajare străzi
Iluminat stradal Mijloace de transport în comun Asfaltate
Comision
standard

Disponibilitate proprietate:

Imediat

Puncte de interes

Mijloace transport
bus-station
Statie Circumvalatiunii E1
Stații autobuz aprox. 194 m
tram-station
Statie Amforei Tramvai Linia 4,6
Stații tramvai aprox. 510 m
trolleybus-station
Statie Miresei E6
Stații troleibuz aprox. 593 m
train-station
Gara de Nord
Stații tren aprox. 1635 m
Școală
kindergarten
Gradinita Program Prelungit Nr. 36
Gradinițe aprox. 50 m
kindergarten
Gradinita nr. 36
Gradinițe aprox. 72 m
school
Clubul Sportiv Scolar Bega
Școli aprox. 121 m
university
Facultatea de Arte Plastice
Universități aprox. 925 m
Recreere
park
Parc
Parcuri aprox. 132 m
sports-ground
Arena Viola
Terenuri sport aprox. 151 m
supermarket
Carrefour Market
Supermarket aprox. 221 m
mall
Kappa Centrul Comercial
Mall aprox. 1212 m

Detalii despre preț și costuri

Prețul pe piață

Preț cerut: 90.000 €

Preț min. zonă
Preț max. zonă

59% dintre proprietățile similare ca zonă și nr. camere au prețul cerut mai mic. mai multe...

Bine de știut: prețul unei proprietăți este influențat și de alte caracteristici, cum ar fi: vechime, localizare, vecinătăți, suprafață, compartimentare, amenajări, dotări, etc. mai puțin...

Insight premium disponibil după login

Costuri cu achiziția

Fără credit
Credit ipotecar
Noua casă

i

Costuri adiționale mai puțin știute la achiziție: taxe notariale, comisioane etc.

Insight premium disponibil după login

Proprietăți similare

Apartament cu 2 camere semidecomandat în Cetății
95.000 €
Timișoara, Cetății
2 camere
50 mp
Etaj 1
Apartament cu 3 camere semidecomandat, mobilat în Cetății
95.000 €
Timișoara, Cetății
3 camere
52 mp
Etaj 4
Apartament cu 2 camere semidecomandat, mobilat în Cetății
94.999 €
Timișoara, Cetății
2 camere
50 mp
Etaj 1

Detalii de contact

APOSTU ESTATE

Michelle Pava Broker

APOSTU ESTATE
PRO

Abonează-te la newsletter să fii primul care primește cele mai noi recomandări de proprietăți și sfaturi de la experți.

Feedback apel

CONTACT

Creează alertă

Salvează căutarea ca să primești pe email ultimele anunțuri publicate

Apartamente cu 2 camere de vânzare în zona Cetății, Timișoara