81900 euro!!! 3 camere cu centrala .. etaj 3 .. zona Dacia

81.900 €

Dacia, Timișoara

Nr. cam.:
3
Sup. utilă:
50 mp
Etaj:
3 / 4
An constr.:
1978
  • • Locație exactă

Descriere apartament

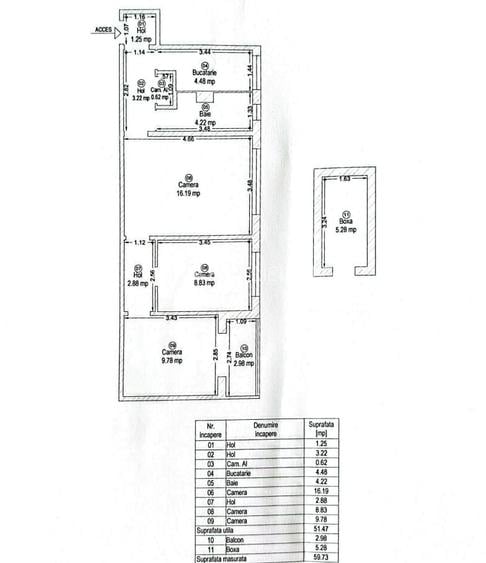
Agentie imobiliara ofera spre vanzare, in exclusivitate, apartament cu 3 camere, S utila = 50 mp plus o logie, etajul 3, cu centrala termica, baie cu geam, apartament de mijloc. Imobilul necesita renovare completa. Zona Dacia. Pret 81900 euro plus comision de agentie 2.5% Tel
Citește mai mult Citește mai puțin
Semidecomandat 1 Balcon / Terasă / Logie Calorifere Centrală proprie Necesită renovare

Detalii apartament

ID anunț: X8NT001V4 Copiat! 275093791 Copiat!
Actualizat în: 24 Februarie 2026
Suprafață utilă totală: 53 mp
Suprafață construită: 60 mp
Nr. bucătării: 1
Nr. băi: 1
Structură rezistență: Beton
Tip imobil: Bloc de apartamente
Regim înălțime: P+4E

Utilități

Destinație
Rezidențial
Ușă intrare
Lemn
Facilități imobil
Interfon Acoperiș
Utilități
Gaze Curent Canalizare Apă
Servicii imobil
Administrare
Amenajare străzi
Asfaltate Betonate Iluminat stradal Mijloace de transport în comun

Vecinătăți:

piata Dacia

Alte detalii despre preț:

81900

Puncte de interes

Mijloace transport
bus-station
Statie Timis A13
Stații autobuz aprox. 183 m
tram-station
Statie Amforei Tramvai Linia 4,6
Stații tramvai aprox. 317 m
trolleybus-station
Statie Miresei E6
Stații troleibuz aprox. 743 m
train-station
Gara de Nord
Stații tren aprox. 1470 m
Școală
kindergarten
Grădinița nr. 26 Timișoara
Gradinițe aprox. 112 m
kindergarten
Gradinita nr. 26
Gradinițe aprox. 126 m
school
Scoala Gimnaziala nr. 18
Școli aprox. 152 m
university
Facultatea de Teologie
Universități aprox. 856 m
Recreere
sports-ground
Arena Viola
Terenuri sport aprox. 192 m
park
parc Dacia
Parcuri aprox. 263 m
supermarket
Profi City
Supermarket aprox. 297 m
mall
Kappa Centrul Comercial
Mall aprox. 1483 m

Detalii despre preț și costuri

Prețul pe piață

Preț cerut: 81.900 €

Preț min. zonă 72.000 €
Preț max. zonă 254.113 €

69% dintre proprietățile similare ca zonă și nr. camere au prețul cerut mai mare. mai multe...

Bine de știut: prețul unei proprietăți este influențat și de alte caracteristici, cum ar fi: vechime, localizare, vecinătăți, suprafață, compartimentare, amenajări, dotări, etc. mai puțin...

Costuri cu achiziția

Fără credit
5.258 RON
Credit ipotecar
6.659 RON
Noua casă
557 RON+ taxe notariale

i

Costuri adiționale mai puțin știute la achiziție: taxe notariale, comisioane etc.

Proprietăți similare

Apartament cu 3 camere semidecomandat în Dacia
82.000 €
Timișoara, Dacia
3 camere
48 mp
Etaj 4
Apartament cu 3 camere semidecomandat, mobilat în Dacia
85.000 €
Timișoara, Dacia
3 camere
50 mp
Parter
Apartament cu 2 camere semidecomandat, mobilat în Dacia
78.490 €
Timișoara, Dacia
2 camere
40 mp
Etaj 4 / 4

Detalii de contact

CASA FAMILIEI TALE

Darinca consultant imobiliar

4.67(3 review-uri)

CASA FAMILIEI TALE
PRO

Abonează-te la newsletter să fii primul care primește cele mai noi recomandări de proprietăți și sfaturi de la experți.

CONTACT

Creează alertă

Salvează căutarea ca să primești pe email ultimele anunțuri publicate

Apartamente cu 3 camere de vânzare în zona Dacia, Timișoara