4

Apartament cu 3 camere, decomandat, 2 bai, 2 balcoane, Dambovita

135.000 €

Dâmbovița, Timișoara

Nr. cam.:
3
Sup. utilă:
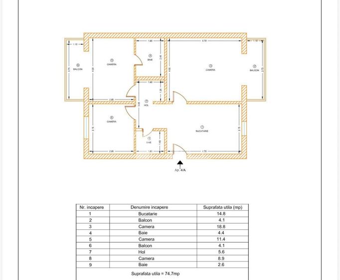
65 mp
Etaj:
1 / 4
An constr.:
1980 (Finalizată)
  • • Locație aproximativă
  • • Vizionare prin apel video

Descriere apartament

APOSTU ESTATE va propune spre vanzare un apartament spatios si luminos cu 3 camere, decomandat, localizat in zona Dambovita. Apartamentul este situat la etajul 1 al unui bloc cu 4 etaje si are o suprafata de 65 mp+ balcoane aprox 10 mp. Compartimentare: - Hol de acces - Bucatarie mobilata si utilata - Living spatios cu acces la balcon inchis - 2 Dormitor -Dormitor cu acces la balcon inchis - Baie cu cada - Baie cu dus Confortul termic este realizat prin intermediul centralei proprii pe gaz si a aparatelor de aer conditionat.Apartamentul a fost renovat integral de catre proprietar, se preda mobilat si utilat, precum este prezentat in imagini. Zona foarte linistita cu numeroase facilitati si puncte de interes precum: acces rapid si usor la mijloacele de transport in comun, parcare amenajata langa bloc, magazine si supermarket-uri in apropiere, farmacii, institutii de invatamant, restaurante, baruri, cafenele si multe altele. Acceptam orice fel de credit bancar. Oferim consultanta si solutii financiare prin colaboratorii nostri. Va asteptam cu drag la o vizionare chiar si astazi! CP2874341
Citește mai mult Citește mai puțin
Confort 1 Decomandat Mobilat 2 Balcoane / Terase / Logii Aer condiționat Calorifere Centrală proprie

Detalii apartament

ID anunț: XBAF10NM0 Copiat! 274160558 Copiat!
Actualizat în: 29 Ianuarie 2026
Nr. bucătării: 1
Nr. băi: 2
Tip imobil: Bloc de apartamente
Regim înălțime: P+4E

Utilități

Podele
Gresie Parchet
Ușă intrare
Metal
Uși interior
Lemn
Ferestre cu geam termopan
PVC
Bucătărie
Mobilată Utilată
Electrocasnice
Frigider Hotă Mașină spălat vase TV
Facilități imobil
Interfon
Utilități
Curent Apă Canalizare CATV Gaze Telefon
Internet
Cablu
Amenajare străzi
Iluminat stradal Mijloace de transport în comun Asfaltate

Disponibilitate proprietate:

Imediat

Puncte de interes

Mijloace transport
bus-station
Statie Vaslui E7
Stații autobuz aprox. 80 m
tram-station
Statie B-dul Dambovita Tv9, Tv7
Stații tramvai aprox. 737 m
trolleybus-station
Statie Solventul T18
Stații troleibuz aprox. 1609 m
train-station
Gara Timișoara Vest
Stații tren aprox. 1746 m
Școală
kindergarten
Gradinita Program Normal Nr. 15
Gradinițe aprox. 268 m
kindergarten
Kinderhaus Minissa
Gradinițe aprox. 390 m
school
Scoala generala NR 6 ( clasele I - VIII )
Școli aprox. 829 m
school
Scoala Gimnaziala nr. 6
Școli aprox. 843 m
Recreere
restaurant
La Renaissance
Restaurant aprox. 391 m
sports-ground
Teren sportiv
Terenuri sport aprox. 471 m
supermarket
Centrul Comercial Dallas
Supermarket aprox. 628 m
park
Balta Mica
Parcuri aprox. 735 m

Detalii despre preț și costuri

Prețul pe piață

Preț cerut: 135.000 €

Preț min. zonă
Preț max. zonă

98% dintre proprietățile similare ca zonă și nr. camere au prețul cerut mai mic. mai multe...

Bine de știut: prețul unei proprietăți este influențat și de alte caracteristici, cum ar fi: vechime, localizare, vecinătăți, suprafață, compartimentare, amenajări, dotări, etc. mai puțin...

Insight premium disponibil după login

Costuri cu achiziția

Fără credit
Credit ipotecar
Noua casă

i

Costuri adiționale mai puțin știute la achiziție: taxe notariale, comisioane etc.

Insight premium disponibil după login

Proprietăți recomandate

Detalii de contact

APOSTU ESTATE

Alexandra Vezureanu Broker

4.24(6 review-uri)

APOSTU ESTATE
PRO

Abonează-te la newsletter să fii primul care primește cele mai noi recomandări de proprietăți și sfaturi de la experți.

Feedback apel

CONTACT

Creează alertă

Salvează căutarea ca să primești pe email ultimele anunțuri publicate

Apartamente cu 3 camere de vânzare în zona Dâmbovița, Timișoara