18

Apartamente decomandate | Lift | Gradina proprie | Dezvoltator

99.000 €

Freidorf, Timișoara

Nr. cam.:
2
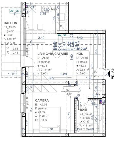
Sup. utilă:
50 mp
Etaj:
1 / 3
An constr.:
2024
  • • Comision 0%
  • • Locație aproximativă

Descriere apartament

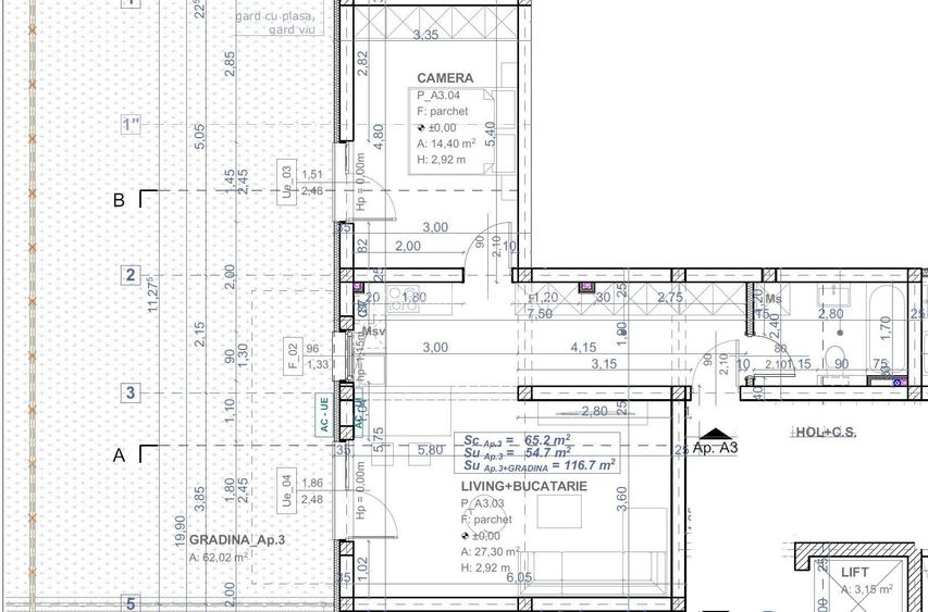
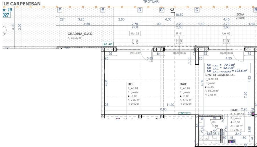
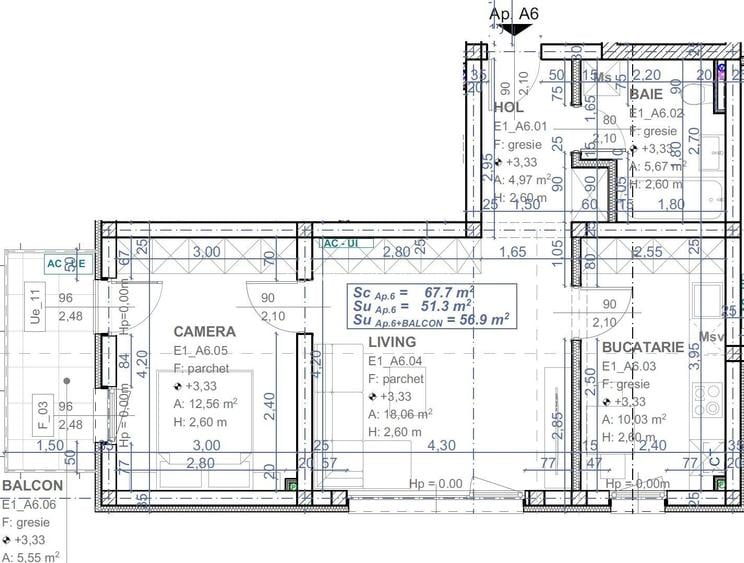
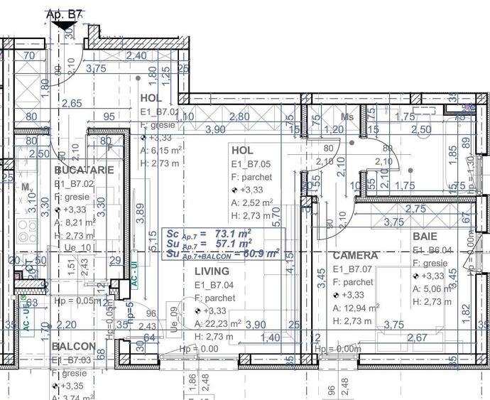
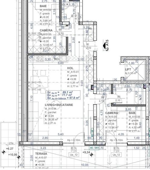
De vanzare, direct de la dezvoltator, apartamente cu 2 si 3 camere situate intr-un imobil cu regim de inaltime P+2E+M cu lift, in zona Freidorf aproape de Lidl , statia de autobuz. Blocul dispune de lift! Modele disponibile, preturile afisate contin TVA si 1 loc de parcare inclus. LOT 1, CORP A!!! Parter; Ap 3-54 mp + 23 mp de gradina = 110.000 Euro Mansarda Ap 14- 51 mp + 5 mp balcon - 91.000 Euro Ap 15 - 122.000 Euro Termen de predare Aprilie 2026 ---------- LOT 2, CORP B Parter Ap. 1 - 52,5 mp + 44 mp de gradina - 110.000 Ap. 2 - 51 mp + 66 mp de gradina - 108.0000 Ap. 3 - 54 mp + 24 mp de gradina - 111.000 Et.1 Ap. 4 - 52,5 mp + 5 mp balcon - 107.000 Ap. 5 - 51 mp + 4 mp balcon - 105.000 Ap. 6 - 50 mp + 5 mp balcon - 103.000 Ap. 7 - 57 mp + 4 mp balcon - 115.000 Ap. 8 - 52,5 mp + 5 mp balcon - 107.000 Et. 2 Ap. 9 - 52,5 mp + 5 mp balcon - 107.000 Ap. 10 - 51 mp + 4 mp balcon - 105.000 Ap. 11 - 50 mp + 5 mp balcon - 103.000 Ap. 12 - 57 mp + 4 mp balcon - 115.000 Ap. 13 - 52,5 mp + 5 mp balcon - 107.000 Mansarda Ap. 14 - 51 mp + 5 mp balcon - 98.000 Ap. 15 - 56 mp +20 mp balcon - 115.000 Ap. 16 - 64 mp +10 mp balcon - 125.000 Ap. 17 - 47 mp +0 mp balcon - 85.000 Boxa 1 - 5,44 mp - 12.000 Euro Boxa 2 - 7 mp - 15.000 Euro Termen finalizare: Sfarsitul anului 2026 __________ LOT 4, CORP A!!! Mansarda Ap 15-77,7 mp + 20 mp balcon = 119.900 Euro - 3 camere Finalizat ! --------- Lot 4 corp B Parter Ap. 1 - 50 mp + 24 mp de gradina - 104.000 Ap. 3 - 40 mp + 34 mp de gradina - 86.0000 Et.1 Ap. 4 - 54 mp + 5 mp balcon - 109.000 Ap. 5 - 48 mp + 8 mp balcon - 99.000 Et. 2 Ap. 11 - 51 mp + 6 mp balcon - 104.000 Ap. 12 - 47.5 mp + 10 mp balcon - 99.000 Mansarda Ap. 14 - 50.5 mp + 5 mp balcon - 96.000 Ap. 15 - 78 mp +20 mp balcon - 130.000 Comision 0%!!!!
Citește mai mult Citește mai puțin
Confort 1 Decomandat 1 Balcon / Terasă / Logie Curte

Detalii apartament

ID anunț: X84C10175 Copiat! 235026015 Copiat!
Actualizat în: 25 Ianuarie 2026
Suprafață construită: 65 mp
Nr. bucătării: 1
Nr. băi: 1
Tip imobil: Bloc de apartamente
Regim înălțime: P+3E

Utilități

Izolații termice
Exterior
Facilități imobil
Lift
Utilități
Curent Apă Canalizare CATV Gaze Telefon
Internet
Cablu
Amenajare străzi
Iluminat stradal Mijloace de transport în comun Asfaltate
Comision
0%

Puncte de interes

Mijloace transport
bus-station
Statie Virgil Simionescu E7
Stații autobuz aprox. 145 m
bus-station
Statie Pacii E7
Stații autobuz aprox. 286 m
train-station
Gara Timișoara Vest
Stații tren aprox. 1204 m
tram-station
Statie B-dul Dambovita Tv9, Tv7
Stații tramvai aprox. 1259 m
Școală
school
LICEU TEHNOLOGIC INDUSTRIAL TRANSPORTURI AUTO
Școli aprox. 563 m
school
Liceul Industrial Auto
Școli aprox. 563 m
kindergarten
Gradinita Program Normal Nr. 15
Gradinițe aprox. 634 m
kindergarten
Kinderhaus Minissa
Gradinițe aprox. 841 m
Recreere
park
Parcul Petofi Sandor
Parcuri aprox. 439 m
restaurant
La Renaissance
Restaurant aprox. 950 m
supermarket
Carrefour
Supermarket aprox. 978 m
sports-ground
Teren sportiv
Terenuri sport aprox. 1039 m

Detalii despre preț și costuri

Prețul pe piață

Preț cerut: 99.000 €

Preț min. zonă 68.900 €
Preț max. zonă 155.000 €

56% dintre proprietățile similare ca zonă și nr. camere au prețul cerut mai mare. mai multe...

Bine de știut: prețul unei proprietăți este influențat și de alte caracteristici, cum ar fi: vechime, localizare, vecinătăți, suprafață, compartimentare, amenajări, dotări, etc. mai puțin...

Costuri cu achiziția

Fără credit
6.061 RON
Credit ipotecar
7.594 RON
Noua casă
644 RON+ taxe notariale

i

Costuri adiționale mai puțin știute la achiziție: taxe notariale, comisioane etc.

Proprietăți recomandate

Detalii de contact

ImoWest Imobiliare

Alexandru Negrescu Senior Consultant

5.00(4 review-uri)

ImoWest Imobiliare
PRO

Abonează-te la newsletter să fii primul care primește cele mai noi recomandări de proprietăți și sfaturi de la experți.

CONTACT

Creează alertă

Salvează căutarea ca să primești pe email ultimele anunțuri publicate

Apartamente noi cu 2 camere de vânzare în zona Freidorf, Timișoara