Comision 0. Gradina proprie 25 mp. Loc de parcare.

110.000 €

Freidorf, Timișoara

Nr. cam.:
2
Sup. utilă:
55 mp
Etaj:
Parter / 3
An constr.:
2025 (Finalizată)
  • • Locație aproximativă

Descriere apartament

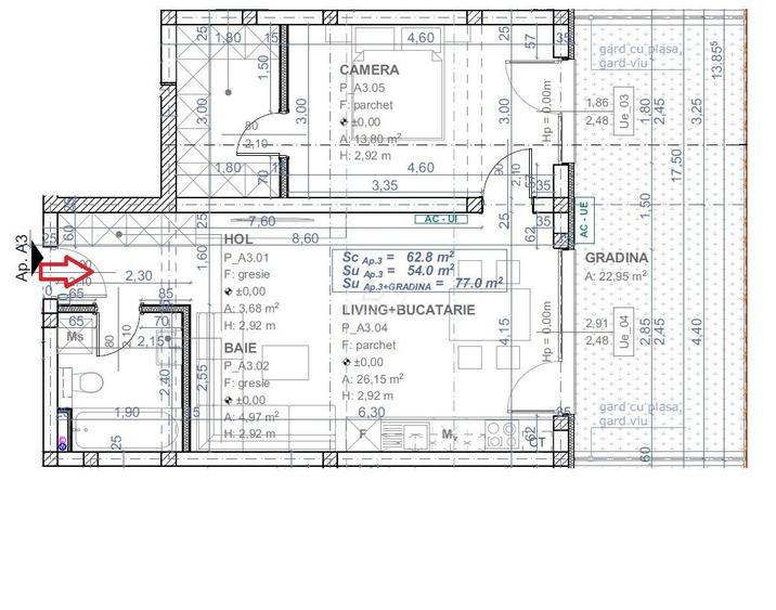
Bloc nou in zona Freidorf cu apartamente cu 2 camere, intr-o locatie excelenta cu acces facil catre zone comerciale (supermaketuri), institutii de invatamant si mijloace de transport in comun. In apropiere exista si un parc generos pretabil pentru toate varstele. Apartamentele se predau finisate la "cheie" si racordate la toate utilitatile (apa, canal. curent si gaz). Cele de parter beneficiaza de gradina proprie, iar cele de la etajul 3 de terase generoase. Fiecare apartament dispune de 1 loc de parcare inclus in pret. Blocul dispune de lift. Modele de apartamente cu 2 camere: PARTER cu gradina proprie: - 54 mp utili + 25 mp de gradina proprie - Pret: 110.000 Euro Etaj: - 51.3 mp utili + 5 mp balcon - Pret: 93.000 Euro - 64.2 mp utili + 5 mp balcon - Pret: 122.000 Euro * Se accepta achizitionarea prin intermediul unui credit bancar. Termen predare martie 2026. Lasa procesul de achizitie al imobilului mult visat in seama noastra, vei avea mai putine griji si vei beneficia de consultanta imobiliara, financiar-bancara si juridica pe tot parcusul acestuia.
Citește mai mult Citește mai puțin
Confort 1 Grădină Centrală proprie Încălzire prin pardoseală 1 Parcare

Detalii apartament

ID anunț: XC6P100U0 Copiat! 271496234 Copiat!
Actualizat în: 27 Ianuarie 2026
Suprafață construită: 60 mp
Nr. bucătării: 1
Nr. băi: 1
Structură rezistență: Cărămidă
Tip imobil: Bloc de apartamente
Regim înălțime: P+3E

Utilități

Destinație
Rezidențial
Pereți
Faianță Vopsea lavabilă
Podele
Gresie Parchet
Ușă intrare
Metal
Izolații termice
Exterior
Ferestre cu geam termopan
PVC
Contorizare
Apometre Contor gaz
Facilități imobil
Acoperiș Interfon
Utilități
Curent Apă Canalizare CATV Gaze Telefon
Internet
Cablu
Amenajare străzi
Iluminat stradal Mijloace de transport în comun Asfaltate
Comision
standard

Disponibilitate proprietate:

Imediat

Puncte de interes

Mijloace transport
bus-station
Statie Pacii E7
Stații autobuz aprox. 358 m
tram-station
Statie de tramvai T2, T7, T9
Stații tramvai aprox. 1098 m
train-station
Gara Timișoara Vest
Stații tren aprox. 1354 m
trolleybus-station
Statie Solventul T18
Stații troleibuz aprox. 1566 m
Școală
kindergarten
Gradinita Program Normal Nr. 15
Gradinițe aprox. 344 m
school
LICEU TEHNOLOGIC INDUSTRIAL TRANSPORTURI AUTO
Școli aprox. 780 m
school
Liceul Industrial Auto
Școli aprox. 780 m
kindergarten
Kinderhaus Minissa
Gradinițe aprox. 910 m
Recreere
park
Parcul Petofi Sandor
Parcuri aprox. 729 m
restaurant
La Renaissance
Restaurant aprox. 887 m
sports-ground
Teren sportiv
Terenuri sport aprox. 948 m
supermarket
Centrul Comercial Dallas
Supermarket aprox. 1135 m

Detalii despre preț și costuri

Prețul pe piață

Preț cerut: 110.000 €

Preț min. zonă 68.900 €
Preț max. zonă 155.000 €

54% dintre proprietățile similare ca zonă și nr. camere au prețul cerut mai mare. mai multe...

Bine de știut: prețul unei proprietăți este influențat și de alte caracteristici, cum ar fi: vechime, localizare, vecinătăți, suprafață, compartimentare, amenajări, dotări, etc. mai puțin...

Costuri cu achiziția

Fără credit
6.583 RON
Credit ipotecar
8.163 RON
Noua casă
701 RON+ taxe notariale

i

Costuri adiționale mai puțin știute la achiziție: taxe notariale, comisioane etc.

Proprietăți recomandate

Detalii de contact

Abonează-te la newsletter să fii primul care primește cele mai noi recomandări de proprietăți și sfaturi de la experți.

Feedback apel

CONTACT

Creează alertă

Salvează căutarea ca să primești pe email ultimele anunțuri publicate

Apartamente noi cu 2 camere de vânzare în zona Freidorf, Timișoara