17

Giroc-ESO | Apartamente de 2 si 3 camere| Bloc cu lift

95.000 €

Girocului, Timișoara

Nr. cam.:
2
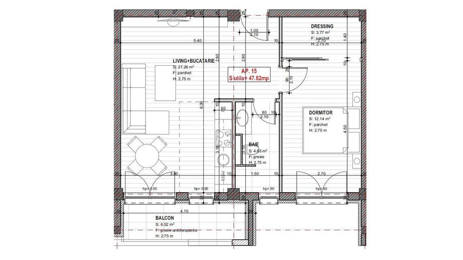
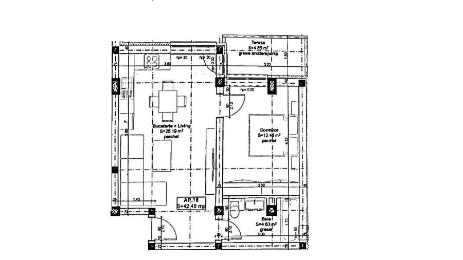
Sup. utilă:
48 mp
Etaj:
4 / 4
An constr.:
2022 (În construcție)
  • • Locație aproximativă

Descriere apartament

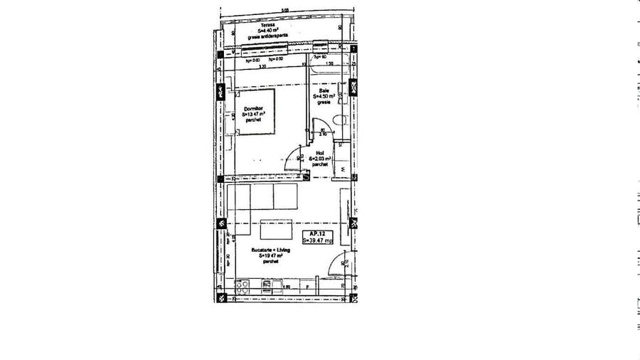
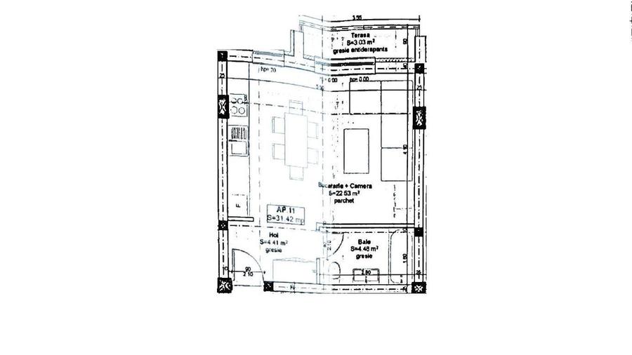
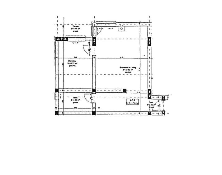
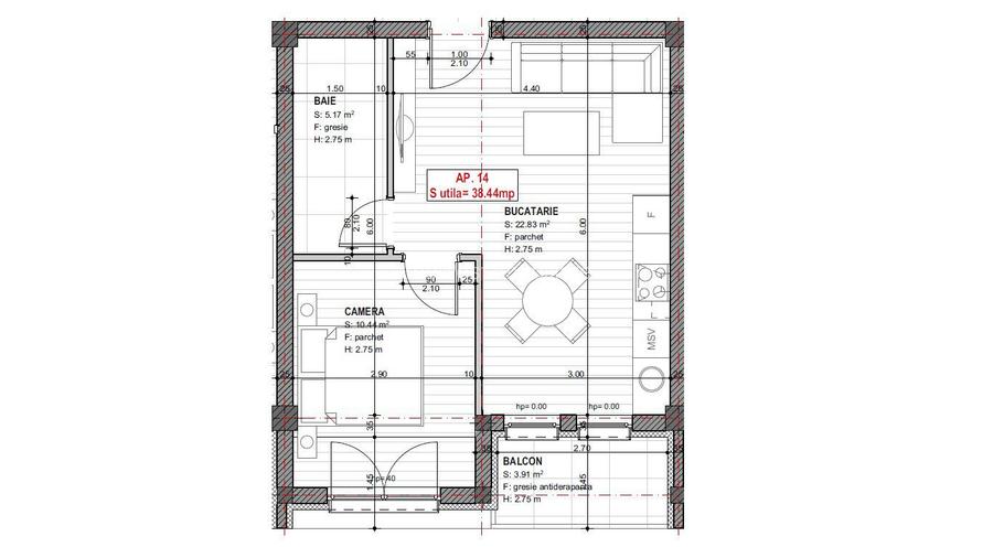
ImoWest IMOBILIARE va propune spre vanzare apartamente de 2 si 3 camere intr-un proiect nou la 2 minute de mijloace de transport in comun, blocurile is cu regim de inaltime P+3E si P+4E cu lift Apartamente disponibile: Parter : -3 camere, 73.21 mp utili + 2 locuri de parcare + Curte proprie de 26 mp - 138.000 Euro Etaj 3 si 4 : -2 Camere, 48 mp utili -95.000 Euro -2 Camere, 53 mp utili - 103.000 Euro -3 camere, 73.21 mp utili + 2 locuri de parcare - 138.000 Euro Locurile de parcare sunt incluse in pret !!
Citește mai mult Citește mai puțin
Confort 1 Semidecomandat 1 Balcon / Terasă / Logie Centrală proprie Încălzire prin pardoseală 1 Parcare

Detalii apartament

ID anunț: X84C100V0 Copiat! 1024593 Copiat!
Actualizat în: 18 Mai 2026
Suprafață construită: 57 mp
Nr. bucătării: 1
Nr. băi: 1
Structură rezistență: Beton
Tip imobil: Bloc de apartamente
Tip tranzacție: De vânzare prin agent
Regim înălțime: P+4E
Modalitate de plată: Cash sau Credit

Utilități

Pereți
Faianță Vopsea lavabilă
Podele
Gresie Parchet
Ușă intrare
Metal
Uși interior
Celulare
Izolații termice
Exterior
Facilități imobil
Lift Spa
Utilități
Curent Apă Canalizare CATV Gaze Telefon
Internet
Cablu
Amenajare străzi
Iluminat stradal Mijloace de transport în comun Asfaltate
Comision
standard

Puncte de interes

Mijloace transport
bus-station
Statie Apicultorilor E3
Stații autobuz aprox. 491 m
tram-station
Statie P. Pavlov Tv7
Stații tramvai aprox. 1192 m
train-station
Halta Giroc hc
Stații tren aprox. 1287 m
trolleybus-station
Statie Maresal C-tin Prezan T15, T19
Stații troleibuz aprox. 1551 m
Școală
university
CENTRU REGIONALDE PREGATIRE PROFESIONALA PENTRU MAGISTRATI, GIROC, tIMISOARA
Universități aprox. 221 m
university
Institutul de Cercetari pentru Energii Regenerabile
Universități aprox. 838 m
kindergarten
Gradinita Program Prelungit Nr. 1
Gradinițe aprox. 1090 m
school
Școala generală nr. 14
Școli aprox. 1137 m
Recreere
park
Viitor Parc Braytim
Parcuri aprox. 933 m
supermarket
Lidl
Supermarket aprox. 1231 m
sports-ground
Teren sportiv
Terenuri sport aprox. 1462 m
public-square
Piata Aron Cotrus
Piețe publice aprox. 1865 m

Istoricul prețurilor

Acces la informații premium după autentificare
Login Gratuit

Detalii despre preț și costuri

Prețul pe piață

Preț cerut: 95.000 €

Preț min. zonă
Preț max. zonă

72% dintre proprietățile similare ca zonă și nr. camere au prețul cerut mai mic. mai multe...

Bine de știut: prețul unei proprietăți este influențat și de alte caracteristici, cum ar fi: vechime, localizare, vecinătăți, suprafață, compartimentare, amenajări, dotări, etc. mai puțin...

Acces la informații premium după autentificare
Login Gratuit

Costuri cu achiziția

Fără credit
Credit ipotecar
Noua casă

i

Costuri adiționale mai puțin știute la achiziție: taxe notariale, comisioane etc.

Acces la informații premium după autentificare
Login Gratuit

Proprietăți similare

Apartament cu 2 camere decomandat în Girocului
93.900 €
Timișoara, Girocului
2 camere
48,1 mp
Etaj 1 / 3
Apartament cu 2 camere decomandat, mobilat în Girocului
102.500 €
Timișoara, Girocului
2 camere
50 mp
Etaj 2
Apartament cu 2 camere, mobilat în Girocului
86.800 €
Timișoara, Girocului
2 camere
50 mp
Etaj 2 / 3

Detalii de contact

ImoWest Imobiliare

Georgiana Negrescu Consultant Imobiliar

5.00(4 review-uri)

ImoWest Imobiliare
PRO

Abonează-te la newsletter să fii primul care primește cele mai noi recomandări de proprietăți și sfaturi de la experți.

Feedback apel

CONTACT

Creează alertă

Salvează căutarea ca să primești pe email ultimele anunțuri publicate

Apartamente cu 2 camere de vânzare în zona Girocului, Timișoara