ETAJ 1. Terasa 11 mp. Langa Profi si ESO. Finisat!

105.000 €

Girocului, Timișoara

Nr. cam.:
2
Sup. utilă:
53 mp
Etaj:
1 / 4
An constr.:
2025 (În construcție)
  • • Locație aproximativă

Descriere apartament

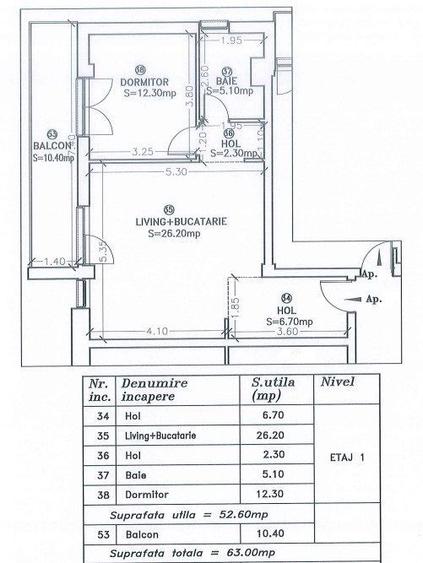
. MIOCASA ofera spre vanzare apartamente cu 1, 2 si 3 camere, situate intr-un proiect rezidential NOU, in zona de Sud a orasului, Girocului, la limita dintre Timisoara si Giroc, langa benzinaria ESO, aproape de mijloacele de transport in comun si in apropierea a multiple magazine. Imobilul face parte dintr-un complex rezidential modern, cu multiple modele de apartamente, gata sa-i satisfaca si pe cei mai pretentiosi. Modele de apartamente diponibile: Parter: - 1 camere, cu suprafata utila de 31.50 mp (cu bucatarie separata) - Vandut; - 1 camera, cu suprafata utila de 35.50 mp - Vandut; - 2 camere, cu suprafata utila de 48 mp - Vandut; - 2 camere, cu suprafata utila de 53 mp. Avand pretul de 95.000 Eur; - 3 camere, cu suprafata utila de 73 mp + curte. Avand pretul de 135.000 Eur (cu 2 Locuri de Parcare); Etaj 1, 2, 3: - 2 camere, cu suprafata utila de 53 mp + terasa de 11 mp. Avand pretul de 105.000 Eur; - 3 camere, 2 bai, cu suprafata utila de 73 mp + terasa de 6 mp. Avand pretul de 138.000 Eur (cu 2 Locuri de Parcare). Etaj 4: - 2 camere, cu suprafata utila de 48 mp + terasa de 7 mp. Avand pretul de 95.000 Eur; - 2 camere, cu suprafata utila de 53 mp + terasa de 11 mp. Avand pretul de 103.000 Eur (cu 2 Locuri de Parcare); - 3 camere, 2 bai, cu suprafata utila de 73 mp + terasa de 6 mp. Avand pretul de 135.000 Eur (cu 2 Locuri de Parcare). Finisaje: - centrala termica proprie, cu incalzire in pardoseala; - geamuri cu tamplarie PVC si geam termopan Rehau; - usi interioare Mega Doors si usa de intrare antiefractie Mega Doors; - instalatie electrica cu prize si intrerupatoare Gewiss; - video interfon, fibra optica si cablu tv; Constructia are structura din beton, cu ziduri din caramida Porotherm (zidarie exterioara 30 cm), izolatie exterioara cu polistiren 10 cm(EPS 80). Apartamentele vin cu locuri de parcare incluse in pret. Cele de 3 camere beneficiaza de cate 2 locuri de parcare. Termenul de predare al proiectului este Toamna 2025. .
Citește mai mult Citește mai puțin
Confort 1 Decomandat Centrală proprie Încălzire prin pardoseală 1 Parcare

Detalii apartament

ID anunț: XDF11018B Copiat! 268392466 Copiat!
Actualizat în: 01 Aprilie 2026
Suprafață construită: 64 mp
Nr. bucătării: 1
Nr. băi: 1
Structură rezistență: Beton
Tip imobil: Bloc de apartamente
Regim înălțime: P+4E
Nr. terase: 1

Utilități

Destinație
Rezidențial
Pereți
Faianță Vopsea lavabilă
Podele
Gresie Parchet
Ușă intrare
Metal
Izolații termice
Exterior
Ferestre cu geam termopan
PVC
Contorizare
Apometre Contor gaz
Alte spații utile
Terasă
Facilități imobil
Acoperiș Lift Videointerfon
Utilități
Curent Apă Canalizare CATV Gaze Telefon
Internet
Cablu Wireless
Amenajare străzi
Iluminat stradal Mijloace de transport în comun Asfaltate Betonate Pietruite
Comision
standard

Certificat energetic:

Clasa energetică: A

Vecinătăți:

.
Shopping :
- Hipermarketuri : Carrefour Market
- Magazine alimentare : Lidl, Profi
- Magazin de articole casnice: Pepco

Educatie :
- Gradinita Primii Pasi
- Gradinita cu program prelungit Giroc
- Scoala Gimnaziala Giroc
- Liceul teoretic David Voniga

Spatii recreere :
- Parcuri
- Complex Daf Junior
- Culb sportiv Dyadora
- Poligon MAG Tehnica

Mijloace de transport:
- Autobuze : Linia E3, Giroceana
.

Disponibilitate proprietate:

Imediat

Puncte de interes

Mijloace transport
bus-station
Apicultorilor
Stații autobuz aprox. 175 m
tram-station
Statie P. Pavlov Tv7
Stații tramvai aprox. 761 m
trolleybus-station
Statie Maresal C-tin Prezan T15, T19
Stații troleibuz aprox. 931 m
train-station
Halta Giroc hc
Stații tren aprox. 1884 m
Școală
university
Institutul de Cercetari pentru Energii Regenerabile
Universități aprox. 209 m
kindergarten
Gradinita Program Prelungit Nr. 1
Gradinițe aprox. 652 m
school
Școala generală nr. 14
Școli aprox. 738 m
university
CENTRU REGIONALDE PREGATIRE PROFESIONALA PENTRU MAGISTRATI, GIROC, tIMISOARA
Universități aprox. 762 m
Recreere
supermarket
Lidl
Supermarket aprox. 575 m
park
Parcul de Sculptura, Fundatia Interart Triade
Parcuri aprox. 586 m
sports-ground
Teren sportiv
Terenuri sport aprox. 926 m
public-square
Piata Aron Cotrus
Piețe publice aprox. 1196 m

Detalii despre preț și costuri

Prețul pe piață

Preț cerut: 105.000 €

Preț min. zonă 65.000 €
Preț max. zonă 125.000 €

72% dintre proprietățile similare ca zonă și nr. camere au prețul cerut mai mic. mai multe...

Bine de știut: prețul unei proprietăți este influențat și de alte caracteristici, cum ar fi: vechime, localizare, vecinătăți, suprafață, compartimentare, amenajări, dotări, etc. mai puțin...

Costuri cu achiziția

Fără credit
6.348 RON
Credit ipotecar
7.907 RON
Noua casă
675 RON+ taxe notariale

i

Costuri adiționale mai puțin știute la achiziție: taxe notariale, comisioane etc.

Proprietăți recomandate

Detalii de contact

MIOCASA

Mihai-Alin Roman Consultant imobiliar

5.00(7 review-uri)

MIOCASA
PRO

Abonează-te la newsletter să fii primul care primește cele mai noi recomandări de proprietăți și sfaturi de la experți.

Feedback apel

CONTACT

Creează alertă

Salvează căutarea ca să primești pe email ultimele anunțuri publicate

Apartamente cu 2 camere de vânzare în zona Girocului, Timișoara