Bloc nou ESO. 1,2,3 Camere . Finisaje la alegere.

105.000 €

Girocului, Timișoara

Nr. cam.:
2
Sup. utilă:
52 mp
Etaj:
2 / 2
An constr.:
2026
  • • Locație aproximativă

Descriere apartament

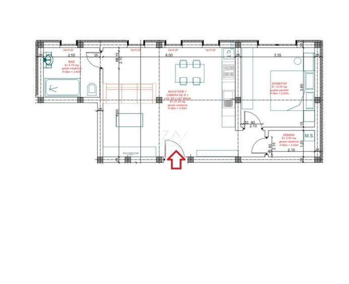
ZayHome va propune spre vanzare un bloc nou in Giroc - zona ESO in imediata apropiere a magazinelor si a statiei de autobuz. Blocul are regimul de inaltime parter + 3 etaje si este format din apartamente cu 1,2 si 3 camere. Tipuri de apartamente si disponibilitate: 1 camera: - 38.05 mp + 5 mp balcon disponibil la Etaj 1 si Etaj 2 - Pret 79.000 Euro 2 camere: - 44 mp + 3.85 mp balcon disponibil la Etaj 2 - Pret 88.000 Euro - 52 mp Disponibil la Etaj 2 - Pret 105.000 Euro 3 camere: - 63 mp + terasa acoperita 20 mp disponibil la Parter - Pret 130.000 Euro - 73 mp + 22.65 mp terase Disponibil la ER - Pret 160.000 Euro. 2 locuri de parcare incluse. Dotari: - Centrala termica proprie cu incalzire prin pardoseala - Geamuri tripan cu tamplarie PVC marca Salamander - Usi MDF - VideoInterfon - Gresie, faianta, parchet la alegerea clientului Apartamentele se vor preda finisate la "cheie" si racordate la toate utilitatile (apa, gaz, canal, curent). Termen predare Mai 2026. Fiind multe de vazut si de prezentat in realitate, te invitam la o intalnire in urma careia vei obtine raspunsuri la toate intrebarile tale. Lasa procesul de achizitie al imobilului mult visat in seama noastra, vei avea mai putine griji si vei beneficia de consultanta imobiliara, financiar-bancara si juridica pe tot parcusul acestuia.
Citește mai mult Citește mai puțin
Confort 1 Centrală proprie Încălzire prin pardoseală 1 Parcare

Detalii apartament

ID anunț: XC6P100VQ Copiat! 275194585 Copiat!
Actualizat în: 04 Martie 2026
Nr. bucătării: 1
Nr. băi: 1
Structură rezistență: Cărămidă
Tip imobil: Bloc de apartamente
Regim înălțime: P+2E

Utilități

Pereți
Faianță Vopsea lavabilă
Podele
Gresie Parchet
Ușă intrare
Metal
Uși interior
Celulare
Izolații termice
Exterior
Ferestre cu geam termopan
PVC
Contorizare
Apometre Contor gaz
Alte spații utile
Debara
Facilități imobil
Interfon Videointerfon
Utilități
Curent Apă Canalizare CATV Gaze Telefon
Internet
Cablu
Amenajare străzi
Iluminat stradal Mijloace de transport în comun Asfaltate
Comision
standard

Disponibilitate proprietate:

Mai 2026

Puncte de interes

Mijloace transport
tram-station
Statie P. Pavlov Tv7
Stații tramvai aprox. 400 m
bus-station
Statie Apicultorilor E3
Stații autobuz aprox. 464 m
trolleybus-station
Statie Maresal C-tin Prezan T15, T19
Stații troleibuz aprox. 1260 m
train-station
Halta Giroc hc
Stații tren aprox. 1723 m
Școală
kindergarten
Gradinita Program Prelungit Nr. 1
Gradinițe aprox. 302 m
school
Școala generală nr. 14
Școli aprox. 346 m
university
Institutul de Cercetari pentru Energii Regenerabile
Universități aprox. 385 m
kindergarten
Gradinita Program Normal Nr. 11
Gradinițe aprox. 389 m
Recreere
sports-ground
Teren sportiv
Terenuri sport aprox. 690 m
park
Parc
Parcuri aprox. 766 m
supermarket
Lidl
Supermarket aprox. 876 m
public-square
Piata Aron Cotrus
Piețe publice aprox. 1357 m

Detalii despre preț și costuri

Prețul pe piață

Preț cerut: 105.000 €

Preț min. zonă 65.000 €
Preț max. zonă 125.000 €

76% dintre proprietățile similare ca zonă și nr. camere au prețul cerut mai mic. mai multe...

Bine de știut: prețul unei proprietăți este influențat și de alte caracteristici, cum ar fi: vechime, localizare, vecinătăți, suprafață, compartimentare, amenajări, dotări, etc. mai puțin...

Costuri cu achiziția

Fără credit
6.346 RON
Credit ipotecar
7.904 RON
Noua casă
675 RON+ taxe notariale

i

Costuri adiționale mai puțin știute la achiziție: taxe notariale, comisioane etc.

Proprietăți similare

Apartament cu 3 camere decomandat, mobilat în Girocului
115.000 €
Timișoara, Girocului
3 camere
68 mp
Etaj 1
Apartament cu 2 camere decomandat în Girocului
102.000 €
Timișoara, Girocului
2 camere
52 mp
Etaj 2
Apartament cu 3 camere semidecomandat, mobilat în Girocului
115.000 €
Timișoara, Girocului
3 camere
65 mp
Etaj 1

Detalii de contact

Abonează-te la newsletter să fii primul care primește cele mai noi recomandări de proprietăți și sfaturi de la experți.

CONTACT

Creează alertă

Salvează căutarea ca să primești pe email ultimele anunțuri publicate

Apartamente noi cu 2 camere de vânzare în zona Girocului, Timișoara