Proiect NOU. Etaj 1. Suprafata generoasa. 2 Bai. Terasa 17mp.

120.000 € + TVA

Girocului, Timișoara

Nr. cam.:
3
Sup. utilă:
71 mp
Etaj:
1 / 4
An constr.:
2025 (În construcție)
  • • Locație aproximativă

Descriere apartament

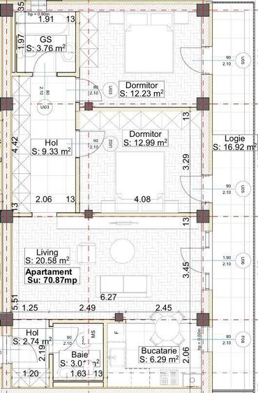
. MIOCASA prezinta spre vanzare apartamente cu 2, 3 si 4 camere situate in cel mai Nou proiect rezidential din zona Girocului, pozitie excelenta, in zona Benzinariei ESO si a magazinului Profi. Proiectul se afla la limita teritoriala dintre Timisoara si Giroc. In zona gasim foarte aproape mijloace de transport in comun, cafenele, magazine, scoala, iar accesul catre oras este foarte facil. Modele de apartamente disponibile: - 2 camere, cu suprafata utila de 56.50 mp + terasa de 15 mp (cu 2 Bai) - Vandut - 3 camere, cu suprafata utila de 71.00 mp + terasa de 17 mp (cu 2 Bai). Situat la etajul 1. Avand pretul de 120.000 Euro + TVA; - 3 camere, cu suprafata utila de 71.00 mp + terasa de 13 mp (cu 2 Bai). Situat la etajul 2 si 3. Avand pretul de 120.000 Euro + TVA; Finisaje, cu materiale de calitate, peste media zonei: - gresie, faianta si parchet; - centrala termica in condensatie, cu incalzire prin pardoseala; - tremostate de reglare temperatura montate in fiecare incapere; - geamuri cu tamplarie PVC si geam tripan; - usa de intrare antiefractie provenienta Italia; - instalatie electrica cu prize si intrerupatoare Gewiss; - cablu TV si fibra optica; - lift. Detalii tehnice: constructie P + 3E + Etaj Retras, structura de beton pe cadre si zidarie caramida porotherm, cu termoizolatie exterioara de polistiren de 10 cm. Lift. Apartamentele se predau finisate la "cheie", bransate la toate utilitatile publice, cu contorizari individuale. Toate apartamentele au incluse in pret cate un loc de parcare. Pozele sunt cu titlu de prezentare din alte proiecte ale aceluiasi dezvoltator. Termenul de predare al proiectului este luna Martie 2026. .
Citește mai mult Citește mai puțin
Confort 1 Decomandat Centrală proprie Încălzire prin pardoseală 1 Parcare

Detalii apartament

ID anunț: XDF110175 Copiat! 263480876 Copiat!
Actualizat în: 13 Ianuarie 2026
Suprafață construită: 86 mp
Nr. bucătării: 1
Nr. băi: 2
Structură rezistență: Beton
Tip imobil: Bloc de apartamente
Regim înălțime: P+4E
Nr. terase: 1

Utilități

Destinație
Rezidențial
Pereți
Faianță Vopsea lavabilă
Podele
Gresie Parchet
Ușă intrare
Metal
Izolații termice
Exterior
Ferestre cu geam termopan
PVC
Contorizare
Apometre Contor gaz
Alte spații utile
WC Serviciu Terasă
Facilități imobil
Lift Videointerfon
Utilități
Curent Apă Canalizare CATV Gaze Telefon
Internet
Cablu Wireless
Amenajare străzi
Iluminat stradal Mijloace de transport în comun Asfaltate Betonate Pietruite
Comision
standard

Certificat energetic:

Clasa energetică: A

Vecinătăți:

.
Shopping :
- Hipermarketuri : Carrefour Market
- Magazine alimentare : Lidl, Penny, Profi
- Magazin de articole casnice: Pepco
- Brutarie : Prospero
- Piete agroalimentare (P-ta Giroc)

Educatie :
- Gradinita Primii Pasi
- Gradinita Nr. 32
- Scoala Generala Nr. 25
- Grup Scolar de Chimie si Protectia Mediului Azur
- Liceul Teoretic Iris

Spatii recreere :
- Parcul Lidia (Padurice)
- Parcul Scuarul Elevilor
- Parcul Triade

Sanatate :
- Spitalul Judetean

Mijloace de transport:
- Autobuze : Linia 15, Linia 16, Linia E3, Linia E2, Linia 19
- Tramvaie : Linia 9
.

Disponibilitate proprietate:

Imediat

Puncte de interes

Mijloace transport
bus-station
Apicultorilor
Stații autobuz aprox. 329 m
trolleybus-station
Statie Maresal C-tin Prezan T15, T19
Stații troleibuz aprox. 988 m
tram-station
Statie P. Pavlov Tv7
Stații tramvai aprox. 1108 m
train-station
Halta Giroc hc
Stații tren aprox. 1879 m
Școală
university
Institutul de Cercetari pentru Energii Regenerabile
Universități aprox. 550 m
kindergarten
Gradinita Goghita
Gradinițe aprox. 683 m
university
CENTRU REGIONALDE PREGATIRE PROFESIONALA PENTRU MAGISTRATI, GIROC, tIMISOARA
Universități aprox. 768 m
school
Școala generală nr. 14
Școli aprox. 1082 m
Recreere
park
Viitor Parc Braytim
Parcuri aprox. 384 m
supermarket
Lidl
Supermarket aprox. 724 m
sports-ground
Teren sportiv
Terenuri sport aprox. 1126 m
public-square
Piata Aron Cotrus
Piețe publice aprox. 1372 m

Detalii despre preț și costuri

Prețul pe piață

Preț cerut: 120.000 €

Preț min. zonă
Preț max. zonă

51% dintre proprietățile similare ca zonă și nr. camere au prețul cerut mai mare. mai multe...

Bine de știut: prețul unei proprietăți este influențat și de alte caracteristici, cum ar fi: vechime, localizare, vecinătăți, suprafață, compartimentare, amenajări, dotări, etc. mai puțin...

Insight premium disponibil după login

Costuri cu achiziția

Fără credit
Credit ipotecar
Noua casă

i

Costuri adiționale mai puțin știute la achiziție: taxe notariale, comisioane etc.

Insight premium disponibil după login

Proprietăți recomandate

Detalii de contact

MIOCASA

Mihai-Alin Roman Consultant imobiliar

5.00(7 review-uri)

MIOCASA
PRO

Abonează-te la newsletter să fii primul care primește cele mai noi recomandări de proprietăți și sfaturi de la experți.

Feedback apel

CONTACT

Creează alertă

Salvează căutarea ca să primești pe email ultimele anunțuri publicate

Apartamente cu 3 camere de vânzare în zona Girocului, Timișoara