13

START VANZARI, ZONA ESSO, IMOBIL CU LIFT

135.605 €

Girocului, Timișoara

Nr. cam.:
3
Sup. utilă:
74 mp
Etaj:
1 / 6
An constr.:
2025 (În construcție)
  • • Locație aproximativă

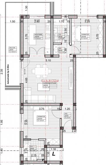
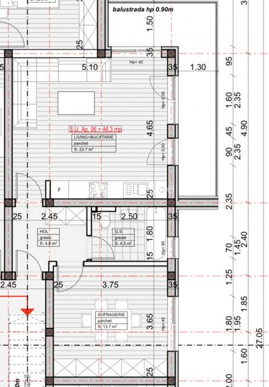
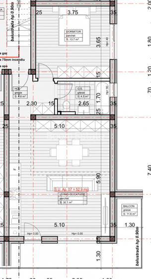
Descriere apartament

Va propunem spre vanzare apartamente cu 2 si 3 camere intr-un bloc in edificare, regim de inaltime P+6E, in zona Esso, la limita dintre Timisoara si Giroc, apartamente cu suprafete intre 47 si 74 mp si terase generoase. Apartamentele sunt de diferite suprafete: Apartament cu 2 camere 53 mp si 6 mp terasa la pretul de 97.865Euro, TVA inclus. Apartament cu 3 camere 74 mp si 17 mp terasa la pretul de 153.605 Euro, TVA inclus. Detalii tehnice si dotari: constructie din caramida si izolata cu polistiren de 15 cm eps 80, balustrazi din sticla securizata, lift si sistem de supraveghere video, tamplarie pvc tripan, incalzire in pardoseala, locuri de parcare cu incarcale electrica, parc amenajat in suprafata aproximativa de 600 mp cu zone de relaxare si spatii de joaca pentru copii, Termen finalizare: 12.2026 Va asteptam cu drag la o vizionare!
Citește mai mult Citește mai puțin
Confort 1 Decomandat 1 Balcon / Terasă / Logie Centrală proprie Încălzire prin pardoseală 1 Parcare 1 Parcare / Garaj / Parcare subterană

Detalii apartament

ID anunț: XCFF1023D Copiat! 269442749 Copiat!
Actualizat în: 26 Februarie 2026
Suprafață construită: 90 mp
Nr. bucătării: 1
Nr. băi: 2
Structură rezistență: Cărămidă
Tip imobil: Bloc de apartamente
Regim înălțime: P+6E

Utilități

Destinație
Rezidențial
Pereți
Vopsea lavabilă Faianță
Podele
Parchet Gresie
Ușă intrare
Metal
Uși interior
Lemn
Izolații termice
Exterior
Ferestre cu geam termopan
PVC
Contorizare
Apometre Contor căldură Contor gaz
Diverse
Senzor de fum
Facilități imobil
Videointerfon Lift
Utilități
Curent Apă Canalizare Gaze CATV Telefon
Comision
standard

Vecinătăți:

Supermarket, Transport in comun

Disponibilitate proprietate:

imediat

Puncte de interes

Mijloace transport
bus-station
Giroceana
Stații autobuz aprox. 697 m
tram-station
Statie P. Pavlov Tv7
Stații tramvai aprox. 804 m
train-station
Halta Giroc hc
Stații tren aprox. 1280 m
trolleybus-station
Statie Maresal C-tin Prezan T15, T19
Stații troleibuz aprox. 1892 m
Școală
school
Școala generală nr. 14
Școli aprox. 736 m
university
CENTRU REGIONALDE PREGATIRE PROFESIONALA PENTRU MAGISTRATI, GIROC, tIMISOARA
Universități aprox. 754 m
kindergarten
Gradinita Program Prelungit Nr. 1
Gradinițe aprox. 781 m
school
Scoala Gimnaziala nr. 15
Școli aprox. 1655 m
Recreere
sports-ground
Teren sportiv
Terenuri sport aprox. 1125 m
park
Parc
Parcuri aprox. 1214 m
supermarket
Carrefour Market
Supermarket aprox. 1381 m
public-square
Piata Aron Cotrus
Piețe publice aprox. 1962 m

Detalii despre preț și costuri

Prețul pe piață

Preț cerut: 135.605 €

Preț min. zonă 79.000 €
Preț max. zonă 152.900 €

67% dintre proprietățile similare ca zonă și nr. camere au prețul cerut mai mic. mai multe...

Bine de știut: prețul unei proprietăți este influențat și de alte caracteristici, cum ar fi: vechime, localizare, vecinătăți, suprafață, compartimentare, amenajări, dotări, etc. mai puțin...

Costuri cu achiziția

Fără credit
7.557 RON
Credit ipotecar
9.245 RON
Noua casă
831 RON+ taxe notariale

i

Costuri adiționale mai puțin știute la achiziție: taxe notariale, comisioane etc.

Proprietăți recomandate

Detalii de contact

Boom Estate

Petru Stefan Administrator

3.44(3 review-uri)

Boom Estate
PRO

Abonează-te la newsletter să fii primul care primește cele mai noi recomandări de proprietăți și sfaturi de la experți.

CONTACT

Creează alertă

Salvează căutarea ca să primești pe email ultimele anunțuri publicate

Apartamente cu 3 camere de vânzare în zona Girocului, Timișoara