2

4 cam decomandat etaj 3din4 Girocului centrala proprie negociabil

135.000 €

Girocului, Timișoara

Nr. cam.:
4
Sup. utilă:
78 mp
Etaj:
3 / 4
An constr.:
1978
  • • Locație aproximativă

Descriere apartament

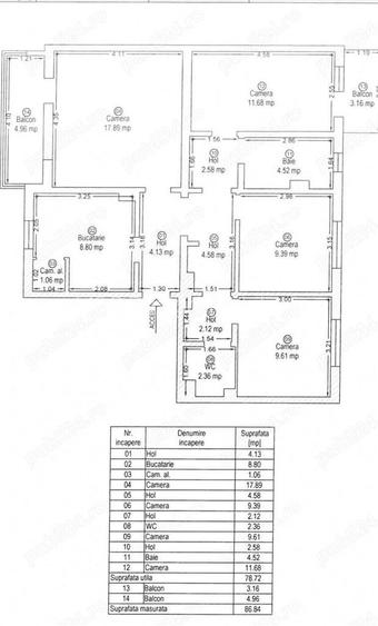
Va propunem spre vanzare un apartament cu 4 camere model conf 1 decomandat in zona Girocului la etajul 3 din 4 cu 2 apartamente pe nivel vedere pe doua parti baie cu geam WC serviciu 2 balcoane si 2 holuri. Incalzirea cu centrala proprie pe gaz. A fost recent renovat are parchet gresie faianta usa metalica la intrare. Pret solicitat de proprietar de 135000 euro negociabil. Se percepe comision. Pentru mai multe informatii si vizionari sunati la:
Citește mai mult Citește mai puțin
Confort 1 Decomandat 2 Balcoane / Terase / Logii Centrală proprie

Detalii apartament

ID anunț: X6SD103KO Copiat! 273044364 Copiat!
Actualizat în: 28 Aprilie 2026
Suprafață construită: 78 mp
Nr. bucătării: 1
Nr. băi: 2
Tip imobil: Bloc de apartamente
Tip tranzacție: De vânzare prin agent
Regim înălțime: P+4E
Modalitate de plată: Cash sau Credit

Utilități

Pereți
Faianță Vopsea lavabilă
Podele
Gresie Parchet
Ușă intrare
Metal
Bucătărie
Mobilată Utilată
Facilități imobil
Interfon
Utilități
Curent Apă Canalizare Gaze
Comision
standard

Disponibilitate proprietate:

Imediat

Puncte de interes

Mijloace transport
bus-station
Marasti
Stații autobuz aprox. 86 m
trolleybus-station
Statie Oituz T11, T17
Stații troleibuz aprox. 378 m
tram-station
Statie Piata Libertatii TV1, TV2, Tv4, Tv6
Stații tramvai aprox. 425 m
train-station
Gara de Est
Stații tren aprox. 1530 m
Școală
kindergarten
Gradinita Program Normal Nr. 22 (Lenau)
Gradinițe aprox. 180 m
university
Facultatea de Arte Plastice
Universități aprox. 194 m
school
Nikolaus Lenau clasele I-IV
Școli aprox. 194 m
kindergarten
Gradinita Program Prelungit Nr. 6
Gradinițe aprox. 424 m
Recreere
park
Piata Marasti
Parcuri aprox. 74 m
public-square
Piata Unirii
Piețe publice aprox. 266 m
supermarket
Carrefour Market
Supermarket aprox. 502 m
mall
Kappa Centrul Comercial
Mall aprox. 1031 m

Detalii despre preț și costuri

Prețul pe piață

Preț cerut: 135.000 €

Preț min. zonă
Preț max. zonă

61% dintre proprietățile similare ca zonă și nr. camere au prețul cerut mai mic. mai multe...

Bine de știut: prețul unei proprietăți este influențat și de alte caracteristici, cum ar fi: vechime, localizare, vecinătăți, suprafață, compartimentare, amenajări, dotări, etc. mai puțin...

Acces la informații premium după autentificare
Login Gratuit

Costuri cu achiziția

Fără credit
Credit ipotecar
Noua casă

i

Costuri adiționale mai puțin știute la achiziție: taxe notariale, comisioane etc.

Acces la informații premium după autentificare
Login Gratuit

Proprietăți similare

Apartament cu 3 camere decomandat, mobilat în Girocului
132.000 €
Timișoara, Girocului
3 camere
64 mp
Etaj 3 / 4
Apartament cu 3 camere decomandat în Girocului
142.500 €
Timișoara, Girocului
3 camere
73,3 mp
Parter
Apartament cu 3 camere decomandat în Girocului
128.000 €
Timișoara, Girocului
3 camere
62,2 mp
Parter

Detalii de contact

Abonează-te la newsletter să fii primul care primește cele mai noi recomandări de proprietăți și sfaturi de la experți.

Feedback apel

CONTACT

Creează alertă

Salvează căutarea ca să primești pe email ultimele anunțuri publicate

Apartamente cu 4+ camere de vânzare în zona Girocului, Timișoara