4

Bloc Nou/Girocului - Apartament decomandat cu 2 camere

99.900 €

Girocului, Timișoara

Nr. cam.:
2
Sup. utilă:
54,5 mp
Etaj:
Parter / 2
An constr.:
2016 (Finalizată)
  • • Locație aproximativă

Descriere apartament

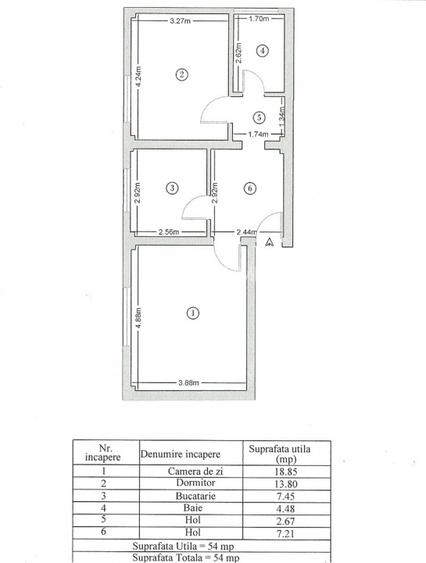
Se ofera spre vanzare un apartament decomandat cu 2 camere, situat la parter in zona Girocului, intr-un imobil finalizat in anul 2016. Dispune de o suprafata utila de 54,46 mp si este compartimentat astfel: - hol acces - living - bucatarie - dormitor - baie. Loc de parcare inscris in CF. Confortul termic este asigurat de centrala proprie si de aparatul de aer conditionat. Se vinde partial mobilat si utilat. Pretul solicitat este de 99.900 euro negociabil. Mai multe detalii: Cristi Derlean.
Citește mai mult Citește mai puțin
Confort 1 Decomandat Parțial mobilat Aer condiționat Calorifere Centrală proprie 1 Parcare Bine întreținut (Bună)

Detalii apartament

ID anunț: XE1A10049 Copiat! 270490336 Copiat!
Actualizat în: 12 Octombrie 2025
Suprafață construită: 60 mp
Nr. bucătării: 1
Nr. băi: 1
Structură rezistență: Cărămidă
Tip imobil: Bloc de apartamente
Regim înălțime: P+2E

Utilități

Destinație
Rezidențial
Pereți
Faianță Vopsea lavabilă
Podele
Mochetă Parchet
Rulouri/Obloane
Aluminiu
Ușă intrare
Metal
Uși interior
Lemn
Izolații termice
Exterior
Ferestre cu geam termopan
PVC
Contorizare
Contor căldură Contor gaz Apometre
Bucătărie
Mobilată Utilată
Electrocasnice
Aragaz Hotă Mașină spălat vase
Facilități imobil
Interfon
Utilități
Curent Apă Canalizare Gaze
Amenajare străzi
Asfaltate Iluminat stradal Mijloace de transport în comun
Comision
standard

Certificat energetic:

Clasa energetică: A

Disponibilitate proprietate:

imediat

Puncte de interes

Mijloace transport
bus-station
Mures
Stații autobuz aprox. 365 m
bus-station
Mures
Stații autobuz aprox. 375 m
trolleybus-station
Statie Maresal C-tin Prezan bucla T15, T19
Stații troleibuz aprox. 474 m
tram-station
Statie Mures Tv7
Stații tramvai aprox. 1124 m
Școală
kindergarten
Gradinita Goghita
Gradinițe aprox. 162 m
kindergarten
Gradinita Broscuta Fermecata
Gradinițe aprox. 619 m
university
Institutul de Cercetari pentru Energii Regenerabile
Universități aprox. 714 m
school
Colegiul Tehnic Azur
Școli aprox. 758 m
Recreere
park
Parcul de Sculptura, Fundatia Interart Triade
Parcuri aprox. 321 m
supermarket
Lidl
Supermarket aprox. 455 m
sports-ground
Teren sportiv
Terenuri sport aprox. 603 m
public-square
Piata Aron Cotrus
Piețe publice aprox. 1004 m

Detalii despre preț și costuri

Prețul pe piață

Preț cerut: 99.900 €

Preț min. zonă
Preț max. zonă

58% dintre proprietățile similare ca zonă și nr. camere au prețul cerut mai mic. mai multe...

Bine de știut: prețul unei proprietăți este influențat și de alte caracteristici, cum ar fi: vechime, localizare, vecinătăți, suprafață, compartimentare, amenajări, dotări, etc. mai puțin...

Insight premium disponibil după login

Costuri cu achiziția

Fără credit
Credit ipotecar
Noua casă

i

Costuri adiționale mai puțin știute la achiziție: taxe notariale, comisioane etc.

Insight premium disponibil după login

Proprietăți recomandate

Detalii de contact

CRIS HOME

Cristian Derlean administrator

CRIS HOME
PRO

Abonează-te la newsletter să fii primul care primește cele mai noi recomandări de proprietăți și sfaturi de la experți.

Feedback apel

CONTACT

Creează alertă

Salvează căutarea ca să primești pe email ultimele anunțuri publicate

Apartamente cu 2 camere de vânzare în zona Girocului, Timișoara