Girocului | 4 Camere | Decomandat | Renovat | Centrala proprie

133.000 €

Girocului, Timișoara

Nr. cam.:
4
Sup. utilă:
78 mp
Etaj:
3 / 4
An constr.:
1988
  • • Locație aproximativă

Descriere apartament

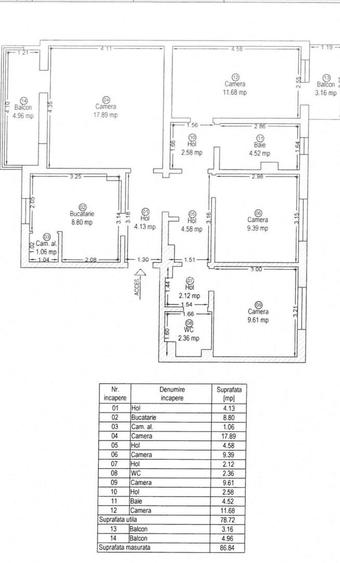
ImoWest Imobiliare va propune spre vanzare un apartament cu 4 camere, decomandat, în zona Girocului, la etajul 3/4. Imobilul se afla in zonă liniștită, cu 2 apartamente pe nivel si vedere pe două părți. Apartamentul este spațios și compus din: 3 dormitoare, sufragerie, bucătărie, debara, baie cu geam, WC serviciu, 2 balcoane și 2 holuri. Încălzirea se face prin centrala proprie pe gaz. A fost recent renovat, are parchet, gresie, faianță, ușă metalică la intrare.
Citește mai mult Citește mai puțin
Confort 1 Decomandat Mobilat 2 Balcoane / Terase / Logii Aer condiționat Centrală proprie

Detalii apartament

ID anunț: X84C101DN Copiat! 250441046 Copiat!
Actualizat în: 17 Aprilie 2026
Suprafață construită: 89 mp
Nr. bucătării: 1
Nr. băi: 2
Tip imobil: Bloc de apartamente
Regim înălțime: P+4E

Utilități

Pereți
Faianță Vopsea lavabilă
Podele
Gresie Parchet
Ușă intrare
Metal
Uși interior
Celulare
Contorizare
Apometre Contor căldură Contor gaz
Bucătărie
Mobilată
Electrocasnice
Frigider Hotă Mașină de spălat
Facilități imobil
Interfon
Utilități
Curent Apă Canalizare Gaze
Amenajare străzi
Iluminat stradal Mijloace de transport în comun Asfaltate
Comision
standard

Disponibilitate proprietate:

Imediat

Puncte de interes

Mijloace transport
tram-station
Drubeta
Stații tramvai aprox. 176 m
tram-station
Statie Drubeta Tv9
Stații tramvai aprox. 186 m
bus-station
Statie Martir Ioan Stanciu T15, T19, E3
Stații autobuz aprox. 684 m
trolleybus-station
Statie Maresal C-tin Prezan T15, T19
Stații troleibuz aprox. 768 m
Școală
school
Sediul ligii islamice si culturale din timisoara
Școli aprox. 54 m
kindergarten
Gradinita Barbie
Gradinițe aprox. 289 m
school
Scoala Iris
Școli aprox. 338 m
university
Centrul de Igiena U.M.F.
Universități aprox. 1154 m
Recreere
park
Parc
Parcuri aprox. 236 m
public-square
Piata Aron Cotrus
Piețe publice aprox. 252 m
sports-ground
Teren sportiv
Terenuri sport aprox. 356 m
supermarket
Profi
Supermarket aprox. 533 m

Detalii despre preț și costuri

Prețul pe piață

Preț cerut: 133.000 €

Preț min. zonă
Preț max. zonă

59% dintre proprietățile similare ca zonă și nr. camere au prețul cerut mai mic. mai multe...

Bine de știut: prețul unei proprietăți este influențat și de alte caracteristici, cum ar fi: vechime, localizare, vecinătăți, suprafață, compartimentare, amenajări, dotări, etc. mai puțin...

Insight premium disponibil după login

Costuri cu achiziția

Fără credit
Credit ipotecar
Noua casă

i

Costuri adiționale mai puțin știute la achiziție: taxe notariale, comisioane etc.

Insight premium disponibil după login

Proprietăți recomandate

Detalii de contact

ImoWest Imobiliare

Georgiana Negrescu Consultant Imobiliar

5.00(4 review-uri)

ImoWest Imobiliare
PRO

Abonează-te la newsletter să fii primul care primește cele mai noi recomandări de proprietăți și sfaturi de la experți.

Feedback apel

CONTACT

Creează alertă

Salvează căutarea ca să primești pe email ultimele anunțuri publicate

Apartamente cu 4+ camere de vânzare în zona Girocului, Timișoara