Lipovei | 3 Camere | Decomandat | Etaj Intermediar | Centrala Proprie

123.500 €

Lipovei, Timișoara

Nr. cam.:
3
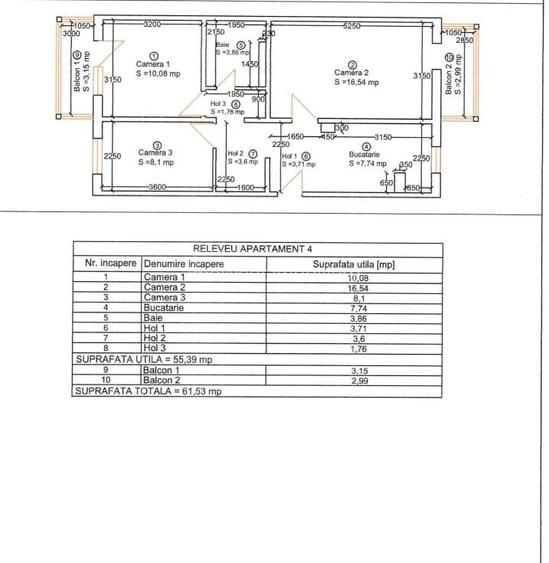
Sup. utilă:
55 mp
Etaj:
1 / 4
An constr.:
1978 (Finalizată)
  • • Locație aproximativă

Descriere apartament

ImoWest Imobiliare vă propune spre vânzare: Apartament cu 3 camere, situat în zona Lipovei, poziționat la etajul 1, într-un imobil bine întreținut. Locuința este decomandată, are o suprafață utilă de 55 mp (62 mp cu tot cu balcoane) și beneficiază de vedere pe două părți, oferind lumină naturală pe tot parcursul zilei. Compartimentare: – 3 camere – 1 baie – 2 balcoane – Boxă trecută în CF Apartamentul dispune de centrală termică proprie și se vinde mobilat și utilat conform fotografiilor. Proprietatea este potrivită atât pentru locuință proprie, cât și pentru investiție, datorită amplasării într-o zonă bine cotată, cu acces facil către puncte de interes. Pentru detalii și programarea unei vizionări, vă stăm la dispoziție. Pret: 123.500 Euro
Citește mai mult Citește mai puțin
Confort 1 Decomandat Mobilat Mobilat 2 Balcoane / Terase / Logii Aer condiționat Calorifere Centrală proprie Bine întreținut (Bună)

Detalii apartament

ID anunț: X84C102BC Copiat! 275163136 Copiat!
Actualizat în: 02 Martie 2026
Nr. bucătării: 1
Nr. băi: 1
Structură rezistență: Beton
Tip imobil: Bloc de apartamente
Regim înălțime: P+4E

Utilități

Pereți
Faianță Vopsea lavabilă
Podele
Gresie Parchet
Ușă intrare
Metal
Uși interior
Celulare
Ferestre cu geam termopan
Aluminiu
Contorizare
Apometre Contor căldură Contor gaz
Bucătărie
Mobilată Utilată
Electrocasnice
Aragaz Frigider Hotă Mașină de spălat TV
Facilități imobil
Acoperiș Interfon
Utilități
Curent Apă Canalizare Gaze
Amenajare străzi
Iluminat stradal Mijloace de transport în comun Asfaltate Betonate
Comision
standard

Disponibilitate proprietate:

Imediat

Puncte de interes

Mijloace transport
bus-station
Statie Stuparilor A40, E2
Stații autobuz aprox. 263 m
tram-station
Statie Arena Electrica retur Tv1, Tv2
Stații tramvai aprox. 700 m
train-station
Timisoara East Railway station area (en)
Stații tren aprox. 735 m
trolleybus-station
Statie Ion Ionescu de la Brad T14
Stații troleibuz aprox. 1067 m
Școală
kindergarten
Gradinita Gimini
Gradinițe aprox. 154 m
kindergarten
Gradinita Program Normal Nr. 4
Gradinițe aprox. 322 m
school
Scoala Generala Nr. 7 "Sfanta Maria"
Școli aprox. 922 m
school
Scoala Gimnaziala nr. 7 Sfanta Maria
Școli aprox. 922 m
Recreere
park
Parc
Parcuri aprox. 440 m
supermarket
Lidl
Supermarket aprox. 579 m
sports-ground
Teren sportiv
Terenuri sport aprox. 884 m
mall
Kappa Centrul Comercial
Mall aprox. 1334 m

Detalii despre preț și costuri

Prețul pe piață

Preț cerut: 123.500 €

Preț min. zonă 85.000 €
Preț max. zonă 187.566 €

85% dintre proprietățile similare ca zonă și nr. camere au prețul cerut mai mic. mai multe...

Bine de știut: prețul unei proprietăți este influențat și de alte caracteristici, cum ar fi: vechime, localizare, vecinătăți, suprafață, compartimentare, amenajări, dotări, etc. mai puțin...

Costuri cu achiziția

Fără credit
7.144 RON
Credit ipotecar
8.781 RON
Noua casă
770 RON+ taxe notariale

i

Costuri adiționale mai puțin știute la achiziție: taxe notariale, comisioane etc.

Proprietăți similare

Apartament cu 2 camere decomandat în Lipovei
116.000 €
Timișoara, Lipovei
2 camere
54 mp
Etaj 3 / 11
Apartament cu 3 camere decomandat, mobilat în Lipovei
119.999 €
Timișoara, Lipovei
3 camere
61 mp
Parter / 4
Apartament cu 2 camere semidecomandat, mobilat în Lipovei
128.900 €
Timișoara, Lipovei
2 camere
50 mp
Parter

Detalii de contact

ImoWest Imobiliare

Corina Bulican Consultant Imobiliar

ImoWest Imobiliare
PRO

Abonează-te la newsletter să fii primul care primește cele mai noi recomandări de proprietăți și sfaturi de la experți.

CONTACT

Creează alertă

Salvează căutarea ca să primești pe email ultimele anunțuri publicate

Apartamente cu 3 camere de vânzare în zona Lipovei, Timișoara