1

Apartament cu garaj

140.000 €

Lugojului, Timișoara

Nr. cam.:
3
Sup. utilă:
60 mp
Etaj:
2 / 4
An constr.:
1980
  • • Locație exactă

Descriere apartament

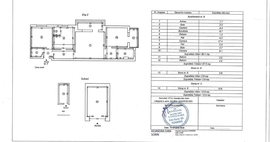
Apartament cu 3 camere confortabile, bucatarie spatioasa, 2 balcoane, baie cu fereastra, situat la etajul 2. Boxa are suprafata de 4mp, garajul este sub bloc, are apa si curent si este intabulat. Vederea este placuta, catre spatiu verde, orientare catre S-E. Blocul este retras de la trafic, inconjurat de spatiu verde, liniste deplina, parcare amenajata in fata.
Citește mai mult Citește mai puțin
Confort 1 Semidecomandat Parțial mobilat 2 Balcoane / Terase / Logii Aer condiționat Calorifere Centrală imobil Beci

Detalii apartament

ID anunț: X56J000N2 Copiat! 274818736 Copiat!
Actualizat în: 30 Martie 2026
Suprafață utilă totală: 68 mp
Nr. bucătării: 1
Nr. băi: 1
Tip imobil: Bloc de apartamente
Regim înălțime: P+4E+M

Utilități

Destinație
Rezidențial De vacanță
Pereți
Faianță Tapet Vopsea lavabilă
Podele
Parchet Gresie
Ușă intrare
Metal
Contorizare
Contor gaz Apometre Contor căldură
Alte spații utile
Debara
Facilități imobil
Interfon Acoperiș
Utilități
Gaze Apă Canalizare
Internet
Fibră optică
Amenajare străzi
Mijloace de transport în comun
Comision
standard

Vicii:

fara

Vecinătăți:

Piata Badea Cartan, Lidl, magazine, scoli, gradinite,

Alte detalii despre preț:

Pret negociabil.

Disponibilitate proprietate:

la intelegere

Puncte de interes

Mijloace transport
trolleybus-station
Statie Renasterii T11
Stații troleibuz aprox. 80 m
bus-station
Renasterii
Stații autobuz aprox. 102 m
tram-station
Statie General V. Economu Tv1, Tv2
Stații tramvai aprox. 408 m
train-station
Timisoara East Railway station area (en)
Stații tren aprox. 711 m
Școală
kindergarten
Grădinița Program Normal Nr. 16
Gradinițe aprox. 196 m
kindergarten
SoFi Day Care
Gradinițe aprox. 202 m
school
Colegiul Tehnic Regele Ferdinand I
Școli aprox. 265 m
university
Facultatea de Economie si de Administrarea a Afacerilor
Universități aprox. 1434 m
Recreere
supermarket
Profi City
Supermarket aprox. 264 m
park
Parc
Parcuri aprox. 269 m
sports-ground
Teren sportiv
Terenuri sport aprox. 347 m
mall
Kappa Centrul Comercial
Mall aprox. 1803 m

Detalii despre preț și costuri

Prețul pe piață

Preț cerut: 140.000 €

Preț min. zonă 75.000 €
Preț max. zonă 189.990 €

90% dintre proprietățile similare ca zonă și nr. camere au prețul cerut mai mic. mai multe...

Bine de știut: prețul unei proprietăți este influențat și de alte caracteristici, cum ar fi: vechime, localizare, vecinătăți, suprafață, compartimentare, amenajări, dotări, etc. mai puțin...

Costuri cu achiziția

Fără credit
7.711 RON
Credit ipotecar
9.418 RON
Noua casă
854 RON+ taxe notariale

i

Costuri adiționale mai puțin știute la achiziție: taxe notariale, comisioane etc.

Proprietăți recomandate

Detalii de contact

SC IOSEFIN IMOBILIARE SRL

Sonia Anghelescu consultant imobiliar

4.94(6 review-uri)

SC IOSEFIN IMOBILIARE SRL
PRO

Abonează-te la newsletter să fii primul care primește cele mai noi recomandări de proprietăți și sfaturi de la experți.

Feedback apel

CONTACT

Creează alertă

Salvează căutarea ca să primești pe email ultimele anunțuri publicate

Apartamente cu 3 camere de vânzare în zona Lugojului, Timișoara