Apartament 2 camere,curte comuna,zona Lunei

90.000 €

Lunei, Timișoara

Nr. cam.:
2
Sup. utilă:
68 mp
Etaj:
Parter
An constr.:
1935 (Finalizată)
  • • Locație aproximativă

Descriere apartament

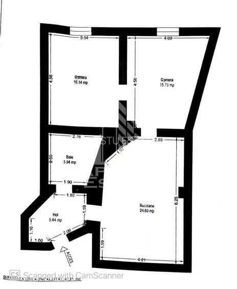
APOSTU ESTATE va propune spre vanzare un apartament la curte comuna, spatios cu 2 camere, situat in zona Printul Turcesc/Lunei. O optiune potrivita pentru cei care cauta un apartament bine pozitionat, intr-o zona linistita si accesibila a orasului. In curte mai sunt 3 apartamente. Cu o suprafata utila de 67,85mp, este compartimentat astfel: - hol acces - bucatarie spatioasa - baie - dormitor 1 -dormitor Confortul termic se realizeaza prin calorifere electrice, exista posibilitatea de montare a centralei proprii pe gaz. Apartamentul se vinde nemobilat. Distante: -Casa Judeteana de Pensii la 4 mi de mers pe jos -Profi la 2 min de mers pe jos -Mijloace de transport in comun,farmacie,biserica -Centrul orasului la 10 min cu masina -Iulius Mall la 12 min de mers cu masina Oferim consultanta si solutii financiare prin colaboratorii nostri. Va asteptam cu drag la o vizionare! Id intern: CP2821125
Citește mai mult Citește mai puțin
Confort 1 Semidecomandat Nemobilat Bine întreținut (Bună)

Detalii apartament

ID anunț: XBAF10PH8 Copiat! 275016785 Copiat!
Actualizat în: 18 Februarie 2026
Nr. bucătării: 1
Nr. băi: 1
Structură rezistență: Cărămidă
Tip imobil: Casă/Vilă
Regim înălțime: P

Utilități

Destinație
Rezidențial
Pereți
Faianță Vopsea lavabilă
Podele
Gresie Parchet
Ușă intrare
PVC
Contorizare
Apometre
Facilități imobil
Acoperiș
Utilități
Curent Apă Canalizare CATV Gaze Telefon
Internet
Cablu
Amenajare străzi
Iluminat stradal Mijloace de transport în comun Asfaltate
Comision
standard

Disponibilitate proprietate:

Imediat

Puncte de interes

Mijloace transport
bus-station
Statie Stefan cel Mare A21
Stații autobuz aprox. 256 m
tram-station
Statie Banatim Tv5, Tv6 retur
Stații tramvai aprox. 400 m
trolleybus-station
Statie Renasterii T11
Stații troleibuz aprox. 1306 m
train-station
Gara de Est
Stații tren aprox. 1827 m
Școală
school
Scoala Gimnaziala nr. 1
Școli aprox. 365 m
school
ȘCOALA GIMNAZIALĂ NR.1
Școli aprox. 378 m
kindergarten
Gradinita Program Normal Nr. 5
Gradinițe aprox. 514 m
university
Facultatea de Economie și de Administrare a Afacerilor
Universități aprox. 806 m
Recreere
park
Rabbit's Park (en)
Parcuri aprox. 298 m
public-square
Piata Aurel Vlaicu
Piețe publice aprox. 559 m
supermarket
Profi
Supermarket aprox. 573 m
sports-ground
Teren sportiv
Terenuri sport aprox. 996 m

Detalii despre preț și costuri

Prețul pe piață

Preț cerut: 90.000 €

Preț min. zonă 65.000 €
Preț max. zonă 139.000 €

93% dintre proprietățile similare ca zonă și nr. camere au prețul cerut mai mare. mai multe...

Bine de știut: prețul unei proprietăți este influențat și de alte caracteristici, cum ar fi: vechime, localizare, vecinătăți, suprafață, compartimentare, amenajări, dotări, etc. mai puțin...

Costuri cu achiziția

Fără credit
5.640 RON
Credit ipotecar
7.105 RON
Noua casă
599 RON+ taxe notariale

i

Costuri adiționale mai puțin știute la achiziție: taxe notariale, comisioane etc.

Proprietăți similare

Apartament cu 2 camere semidecomandat, mobilat în Dacia
88.990 €
Timișoara, Dacia
2 camere
54,59 mp
Mansardă / 5
Apartament cu 2 camere în Braytim
99.000 €
Timișoara, Braytim
2 camere
45 mp
Etaj 3 / 3
Apartament cu 2 camere decomandat în Aradului
94.900 €
Timișoara, Aradului
2 camere
51,48 mp
Etaj 4 / 4

Detalii de contact

APOSTU ESTATE

Anita Popescu

APOSTU ESTATE
PRO

Abonează-te la newsletter să fii primul care primește cele mai noi recomandări de proprietăți și sfaturi de la experți.

CONTACT

Creează alertă

Salvează căutarea ca să primești pe email ultimele anunțuri publicate

Apartamente cu 2 camere de vânzare în zona Lunei, Timișoara